Terreno - SVETVINČENAT - 136.000 EUR
| Posizione | SVETVINČENAT, Istria |
| Prezzo € | 136.000 |
| Superficie | 548 m2 |
| Distanza dal mare | 0 m |
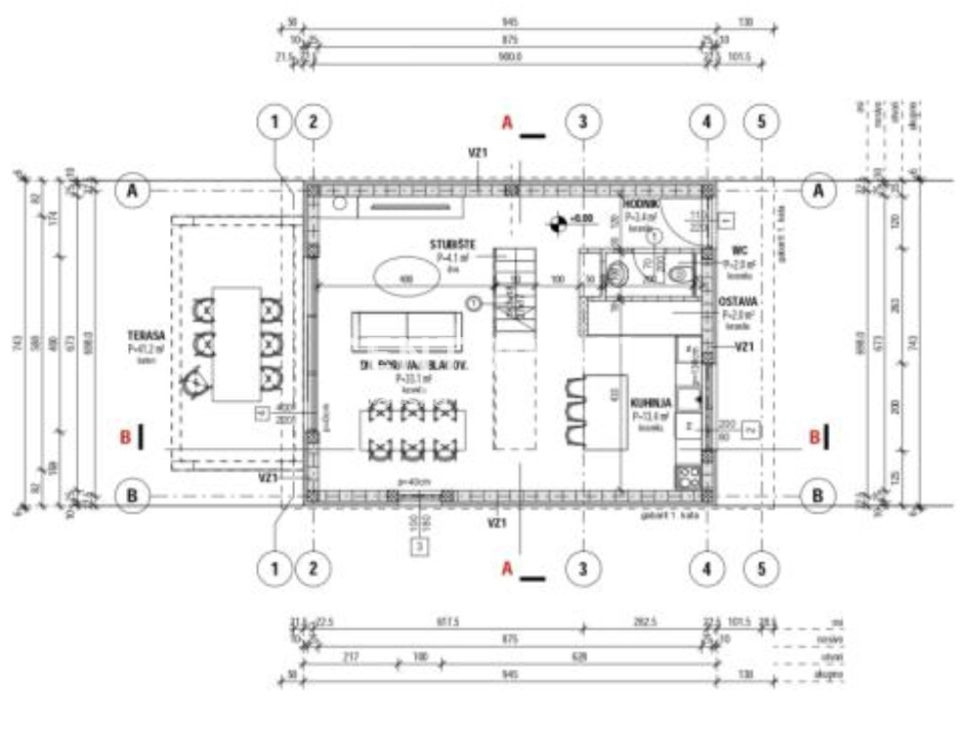
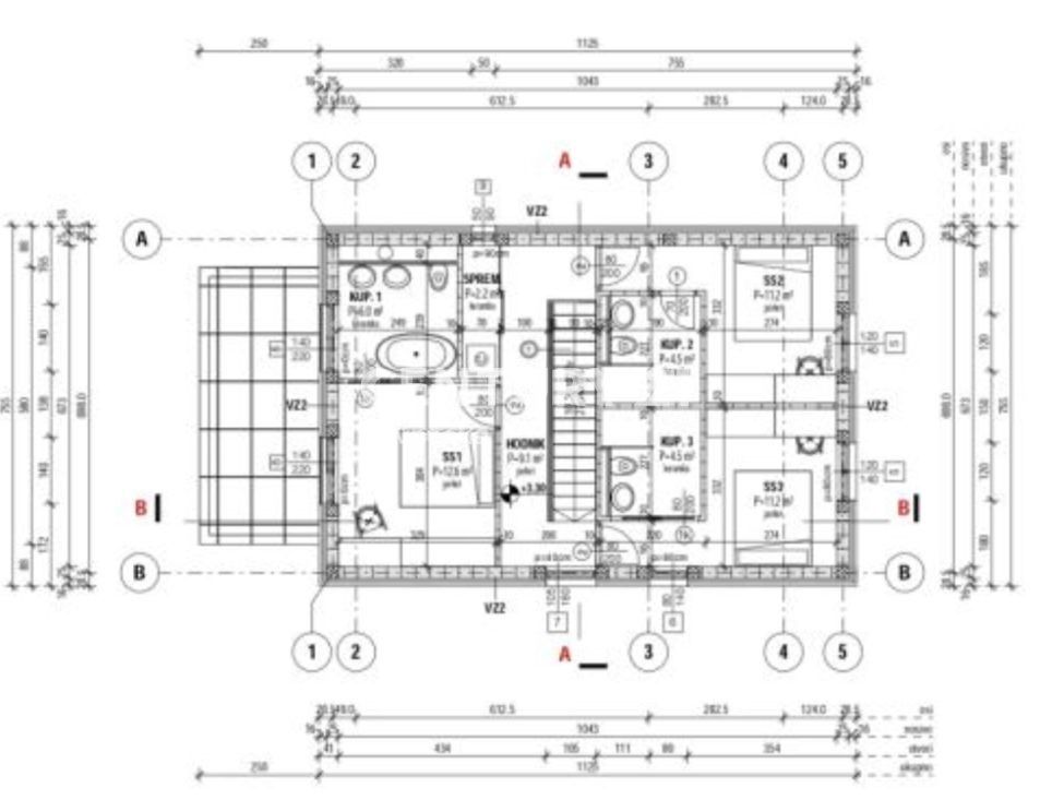
SVETVINČENAT, DINTORNI, ATTRAENTE TERRENO EDIFICABILE In un villaggio autoctono istriano nei pressi di Svetvinčent vendiamo un terreno edificabile con il progetto per una casa/edificio residenziale con piscina e permesso di costruire. Il terreno si trova vicino alla città rinascimentale di Svetvinčenta, che si distingue per il suo ricco patrimonio culturale, la diversa offerta gastronomica e turistica e numerosi eventi durante tutto l'anno. Il terreno si trova alla fine del paese in una strada senza uscita, ha una forma regolare, la superficie è di 548 m2. Ha accesso da strada pubblica, è delimitato da muretti a secco su 2 lati. Sul terreno citato è prevista la costruzione di un edificio residenziale indipendente, piano terra e primo piano, 120 mq netti, fabbricati ausiliari - piscina scoperta, ripostiglio con attrezzature della piscina, depuratore biologico, 2 posti auto. Al piano terra della casa sono previsti i seguenti locali: soggiorno, sala da pranzo e cucina open space, ripostiglio, wc e disimpegno. Al primo piano si accede tramite una scala interna, e ci sono 3 camere da letto al primo piano, ciascuna con il proprio bagno. La terrazza esterna è di 40 m2, la piscina è di 28 m2. Nelle immediate vicinanze del terreno ci sono case locali e case per le vacanze, quindi la futura casa è l'ideale per coloro che vogliono godere di tutti i vantaggi offerti da un tranquillo villaggio istriano o per gli investitori che possono ottenere un ottimo reddito dall'affitto di una casa per le vacanze . Sul terreno sono presenti gli allacci elettrici e idrici, oltre a diversi ulivi secolari, la cui resa garantisce un paio di litri di olio d'oliva all'anno per uso personale. Il prezzo di vendita comprende il progetto principale, permesso di costruzione valido, allacciamenti idrici ed elettrici, contributi utenze pagati, cantiere preparato e sgombrato. E' possibile contrattare con il venditore la realizzazione dell'immobile in questione in fase grezza o chiavi in mano. Distanza: aeroporto di Pola 20 km, mare 15 km, Rovigno 25 km
ID: 1119314