Terreno - SVETVINČENAT - 67.600 EUR
| Posizione | SVETVINČENAT, Istria |
| Prezzo € | 67.600 |
| Superficie | 547 m2 |
| Distanza dal mare | 0 m |
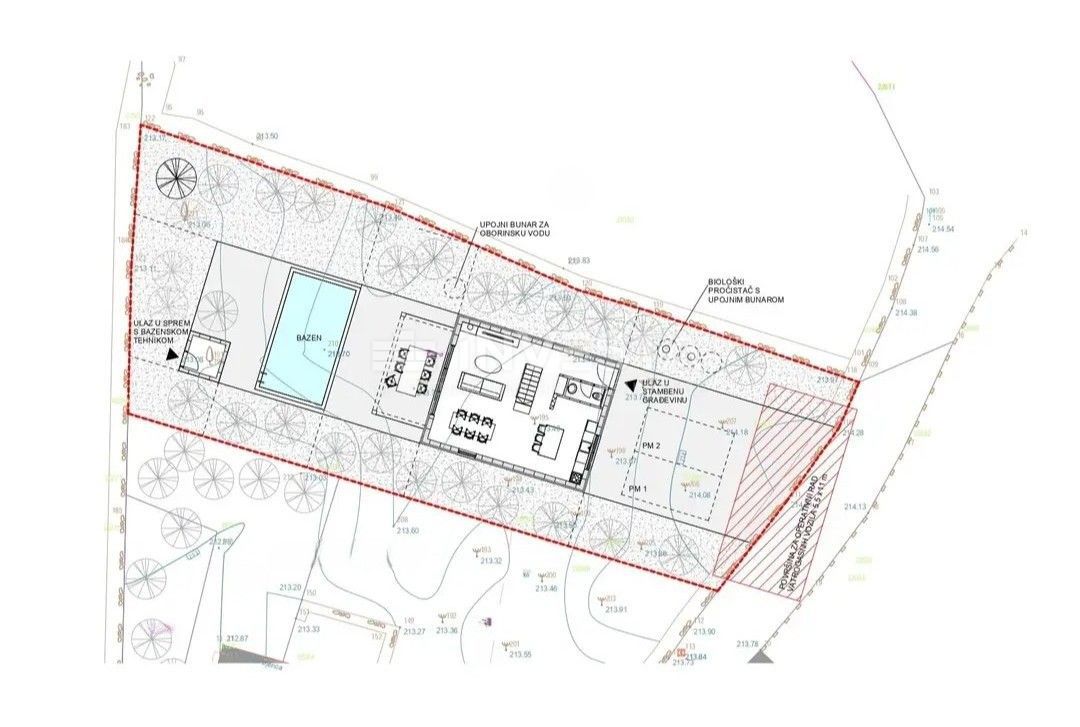
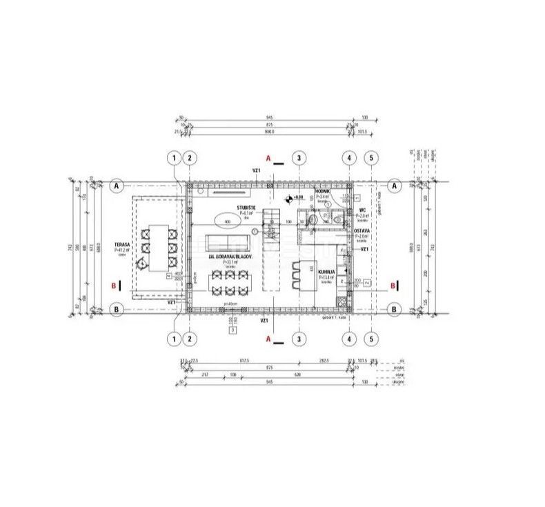
In vendita terreno edificabile con permesso di costruzione valido per una casa di 120 m² con piscina. Al piano terra si trovano l'ingresso, un bagno per gli ospiti, un ripostiglio, la cucina, la sala da pranzo e il soggiorno con accesso alla terrazza con vista sulla piscina e sulla natura. Una scala conduce al primo piano con tre camere da letto, ciascuna con il proprio bagno. Sono previsti due posti auto. Il terreno ha una forma regolare ed è accessibile direttamente dalla strada pubblica asfaltata. Sono state presentate le richieste per gli allacci di elettricità e acqua. È possibile utilizzare temporaneamente elettricità e acqua dal terreno confinante, poiché gli impianti si trovano proprio al confine, fino all'attivazione degli allacci ufficiali.
ID: 1179948