Appartamento - TAR - 200.640 EUR
| Posizione | TAR, TAR-VABRIGA, Istria |
| Prezzo € | 200.640 |
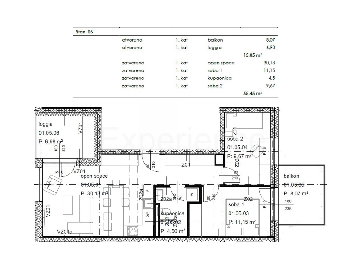
| Superficie | 63 m2 |
| Numero di camere | 3 |
| Bagni | 1 |
| Distanza dal mare | 0 m |
A Tar - a circa 2.500 m dal mare, in un ambiente molto tranquillo è in vendita un appartamento con la superficie di 62,70 m². L'appartamento è situato al primo piano di un edificio residenziale. Comprende: uno spazio aperto e luminoso in cui sono situati il soggiorno, cucina e sala da pranzo con accesso al balcone (6,98 m²), due camere da letto di cui una camera da letto ha l'accesso al balcone (8,07 m²) e bagno. Al piano terra dell'edificio si trova un deposito comune per biciclette. L'edificio è dotato di ascensore. L'appartamento dispone inoltre di due posti auto di fronte all'edificio. Caratteristiche tecniche:- lana isolante termica 18 cm,- costruzione in cemento armato resistente ai terremoti,- ascensore,- riscaldamento elettrico a pavimento in tutto l'appartamento e termostato in ogni stanza,- condizionatori d'aria in tutte le stanze,- Carpenteria in PVC con vetro a tre strati,- zanzariere,- tapparelle elettriche,- porta d'ingresso resistente al fuoco,- citofono con videochiamata,- ceramiche italiane di alta qualità,- sanitari Villeroy e Boch. Il vantaggio speciale di questo appartamento è la POSIZIONE, raggiungibile a piedi si trova la scuola, asilo, farmacia, diversi ristoranti, negozio di alimentari, supermercato e bar. Il completamento previsto della costruzione è fino a giugno 2026. Notando, non si paga la tassa di trasferimento immobiliare per un importo di 3% dal prezzo di acquisto concordato.
ID: 1177799