Appartamento - TAR - 231.000 EUR
| Posizione | TAR, TAR-VABRIGA, Istria |
| Prezzo € | 231.000 |
| Superficie | 70 m2 |
| Numero di camere | 3 |
| Bagni | 1 |
| Distanza dal mare | 0 m |
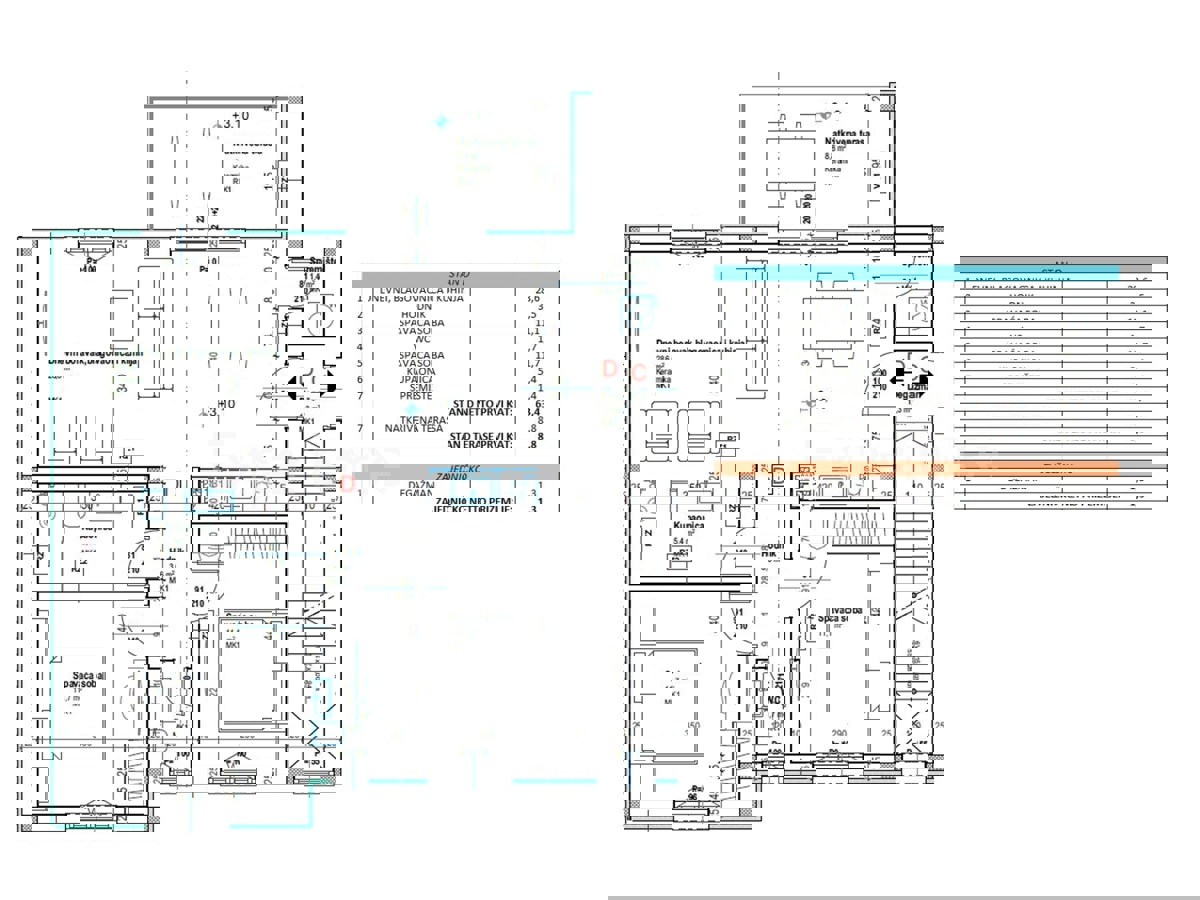
A Tar - a circa 2 km dal mare, in un ambiente molto tranquillo è in vendita un appartamento con la superficie di 72,20 m². L'appartamento è situato al primo piano di un edificio residenziale con solo quattro unità abitative. Comprende: corridoio, spazio aperto e luminoso dove si trovano il soggiorno, la cucina e sala da pranzo con accesso alla terrazza coperta (8,80 m²), due camere da letto, bagno, toilette e ripostiglio (1,40 m²). L'appartamento dispone inoltre di due posti auto di fronte all'edificio. Riscaldamento: il riscaldamento a pavimento è installato nel soggiorno, nella cucina e nel bagno e i condizionatori inverter sono installati in ogni stanza. Il vantaggio speciale di questo appartamento è la POSIZIONE, raggiungibile a piedi si trova la scuola, asilo, farmacia, diversi ristoranti, negozio di alimentari, supermercato e bar. Il completamento previsto della costruzione è entro luglio 2025.
ID: 1138269