Appartamento - TAR - 236.000 EUR
| Posizione | TAR, TAR-VABRIGA, Istria |
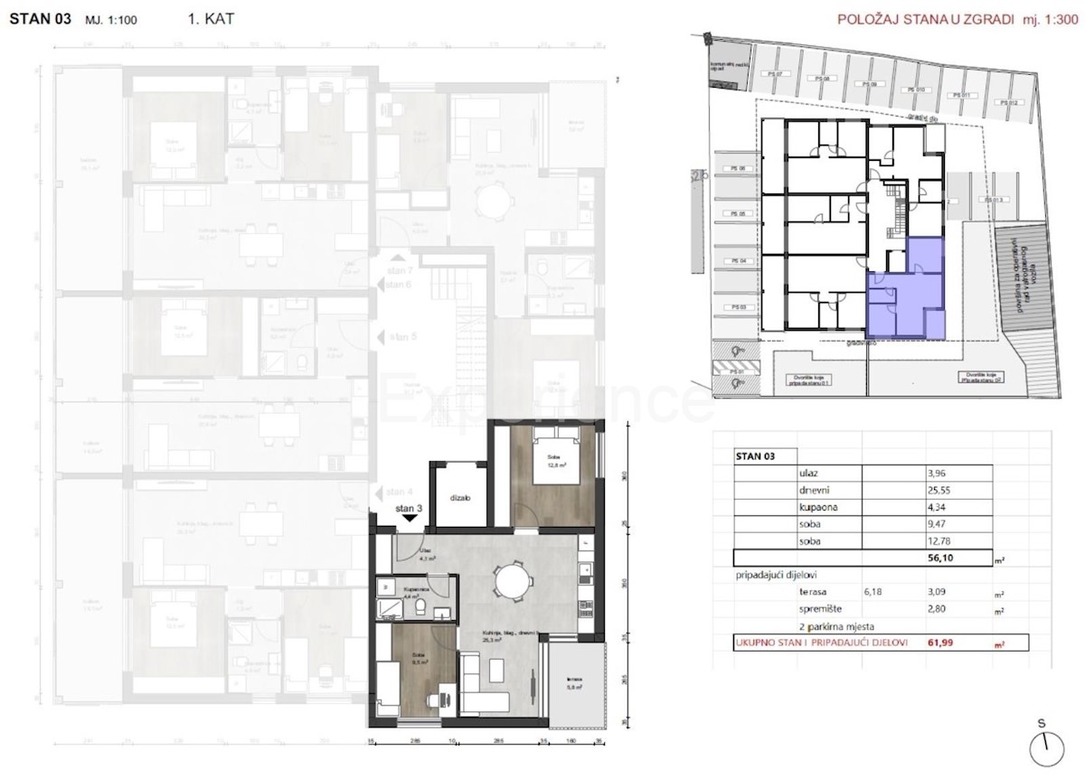
| Prezzo € | 236.000 |
| Superficie | 61 m2 |
| Numero di camere | 2 |
| Bagni | 1 |
| Distanza dal mare | 2000 m |
A Torre - cca. 2 km dal mare, in un ambiente tranquillo si trova un appartamento in costruzione, con la superficie di 61.99 m². L'appartamento è situato al primo piano di un edificio residenziale. Comprende: corridoio, un spazio aperto e luminoso in cui sono situati soggiorno, cucina e sala da pranzo con accesso al terrazzo coperto (6.18 m²), due camere da letto e bagno. L'appartamento dispone inoltre di un ripostiglio (2.80 m²) al piano terra dell'edificio e di 2 posti auto. Il riscaldamento è regolato con pompa di calore, mentre il raffreddamento è regolato con climatizzatori. Il completamento previsto della costruzione è fino a giugno 2026. Notando, non si paga la tassa di trasferimento immobiliare per un importo di 3% dal prezzo di acquisto concordato.
ID: 1021155