Appartamento - TAR - 396.000 EUR
| Posizione | TAR, TAR-VABRIGA, Istria |
| Prezzo € | 396.000 |
| Superficie | 104 m2 |
| Numero di camere | 3 |
| Bagni | 2 |
| Distanza dal mare | 2000 m |
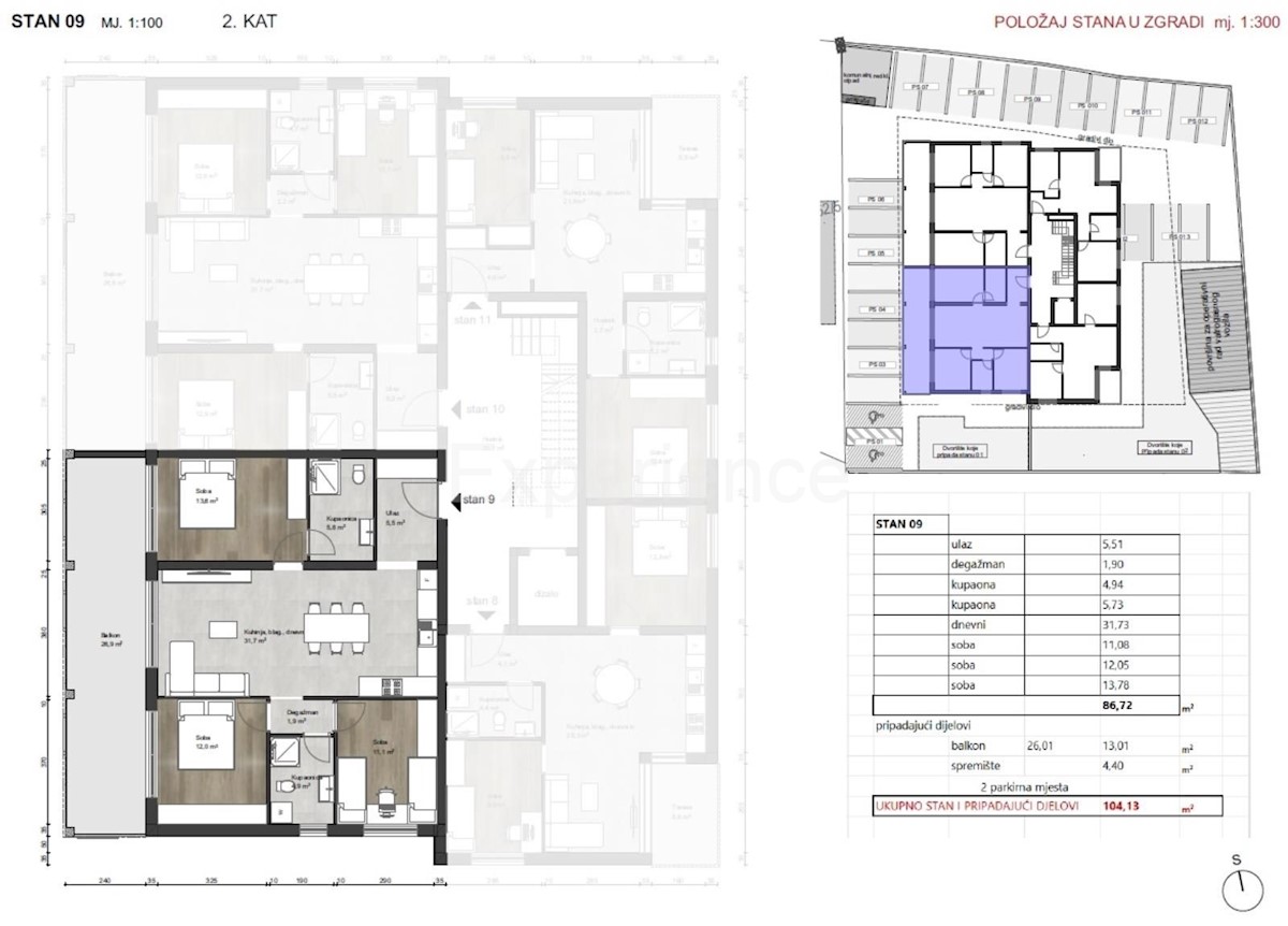
A Torre - cca. 2 km dal mare, in un ambiente tranquillo si trova un appartamento in costruzione, con la superficie di 104.13 m². L'appartamento è situato al secondo piano di un edificio residenziale. Comprende: corridoio, un spazio aperto e luminoso in cui sono situati soggiorno, cucina e sala da pranzo con accesso al spazioso terrazzo coperto (26 m²), tre camere da letto e due bagni. L'appartamento dispone inoltre di un ripostiglio (4.40 m²) al piano terra dell'edificio e di 2 posti auto. Il riscaldamento è regolato con pompa di calore, mentre il raffreddamento è regolato con climatizzatori. Il completamento previsto della costruzione è fino a giugno 2026. Notando, non si paga la tassa di trasferimento immobiliare per un importo di 3% dal prezzo di acquisto concordato.
ID: 1021343