Terreno - TAR - 390.000 EUR
| Posizione | TAR, TAR-VABRIGA, Istria |
| Prezzo € | 390.000 |
| Superficie | 1240 m2 |
| Distanza dal mare | 2000 m |
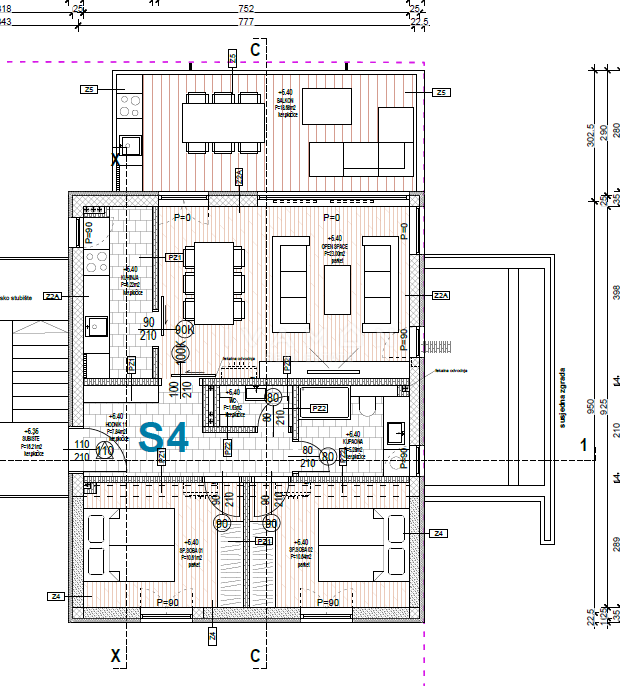
Vendiamo in esclusiva un terreno con permesso di costruzione e utenze già pagate. Si tratta di due lotti, ciascuno con permesso di costruzione per un edificio bifamiliare, con quattro appartamenti ognuno, oltre a scantinati e garage. Gli appartamenti sono estremamente funzionali, con una superficie che varia da 53 a 60 m². Ogni appartamento è composto da un ingresso, bagno, cucina, soggiorno con zona pranzo e un ampio terrazzo. A ciascun appartamento appartiene una grande cantina e due posti auto. Ogni edificio dispone anche di due garage, permettendo all'acquirente di scegliere tra un posto auto esterno e uno interno. Gli edifici hanno un design molto elegante, che conferisce un tocco di lusso.
ID: 1116893