Casa - TINJAN - 550.000 EUR
| Posizione | TINJAN, Istria |
| Prezzo € | 550.000 |
| Superficie | 127 m2 |
| Numero di camere | 4 |
| Superficie terrestre | 506 m2 |
| Bagni | 4 |
| Distanza dal mare | 8000 m |
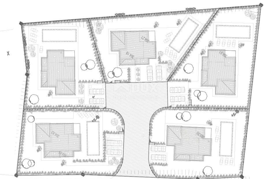
ISTRIA TINJAN - Nuova costruzione dallo stile e dal design senza tempo Presentiamo con orgoglio il progetto di un nuovo edificio situato vicino alla pittoresca cittadina di Tinjan. Si tratta di un progetto per la costruzione di un complesso privato di ville tipiche, progettate secondo il modello delle ville italiane con un tocco di stile costruttivo istriano. Le ville sono immerse in un ambiente dalla natura meravigliosa, un dolce paesaggio collinare e campi coltivati. Durante la costruzione verranno utilizzati i materiali più moderni, che confermano il livello di qualità e garantiscono il massimo comfort durante il soggiorno in ogni villa. Per l'arredamento delle ville verrà utilizzata una delle tecniche più moderne disponibili sul mercato, ovviamente parliamo di produttori di fama mondiale. Oltre a tutto ciò, gli investitori hanno prestato grande attenzione all'organizzazione dello spazio interno delle ville, al fine di garantire che ogni stanza svolga pienamente il ruolo previsto. Tutte le ville del complesso hanno la stessa superficie e organizzazione degli spazi, ma ovviamente lasciano spazio ai futuri proprietari di adattare la proprietà alle proprie esigenze e desideri in collaborazione con l'investitore. DESCRIZIONE DELLA PROPRIETÀ: Questa pittoresca villa di alta qualità è composta da un totale di 127,66 m2 di superficie abitabile, divisa in due piani, vale a dire; piano terra (73,73 m2) e primo piano (53,93 m2). Così, al piano terra della villa, si trova un ingresso che ci accoglie e conduce alla zona giorno, pensata come un open space senza pareti divisorie. Qui è previsto un ampio e confortevole soggiorno con camino a legna e una parete vetrata scorrevole attraverso la quale si estendono l'accesso e la vista sul giardino e sulla piscina. Accanto al soggiorno, leggermente separato, c'è lo spazio per la cucina con un'ampia sala da pranzo, dalla quale attraverso la parete in vetro si estende anche l'uscita sul terrazzo coperto. Oltre al soggiorno è presente anche la prima camera da letto, separata da un corridoio più piccolo, che dispone del proprio bagno e dell'accesso al giardino. Inoltre, al piano terra della villa, nel suddetto atrio, è presente un bagno per gli ospiti oltre ad una scala che conduce al primo piano della villa, dove si trovano 2 comode e spaziose camere da letto. Ogni camera ha il proprio bagno e l'accesso ad una terrazza comune. Al termine dei lavori il cortile sarà completamente paesaggistico e circondato da un muro. Avrete così la possibilità di trascorrere il vostro soggiorno all'aria aperta circondati da numerose piante mediterranee e da curate aree verdi, che saranno curate da un sistema di irrigazione automatico. Naturalmente la parte centrale del giardino sarà occupata da una comoda piscina con impianto di elettrolisi (acqua salata) e da una zona prendisole, mentre per i vostri animali domestici di latta non dovrete preoccuparvi perché è possibile parcheggiare fino a 2 auto. previsto nel giardino della villa. ULTERIORI INFORMAZIONI: * Le ville vengono vendute chiavi in mano senza mobili. *Gli acquirenti hanno il diritto di influenzare la costruzione. * La villa sarà dotata di condizionatori d'aria in ogni stanza, nonché di riscaldamento elettrico a pavimento in tutte le stanze. *L'immobile è soggetto a IVA, ciò significa che per le persone giuridiche il prezzo può essere calcolato meno l'importo dell'imposta. * La fine prevista dei lavori è la metà del 2025. Per qualsiasi ulteriore domanda, informazione necessaria o desideri fissare un appuntamento per visionare la villa, non esitate a contattarci con fiducia. Gentili clienti, la commissione d'agenzia viene addebitata in conformità con le Condizioni Generali di Contratto www.dux-nekretnine.hr/opci-uvjeti-poslovanja
ID: 1048544