Terreno - TRIBULJE - 358.000 EUR
| Posizione | TRIBULJE, KRK, Quarnaro |
| Prezzo € | 358.000 |
| Superficie | 989 m2 |
| Numero di camere | 11 |
| Bagni | 7 |
| Distanza dal mare | 3000 m |
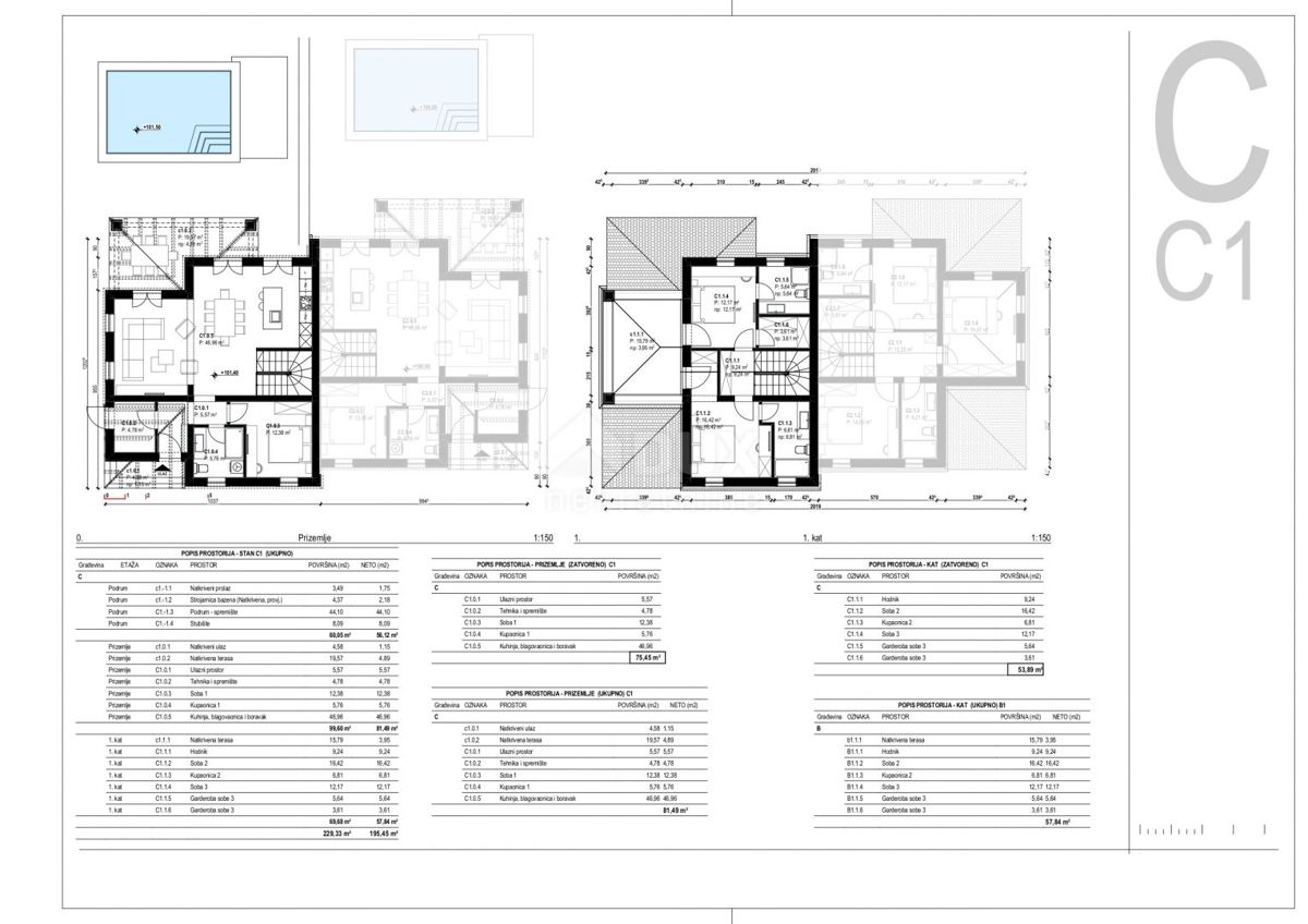
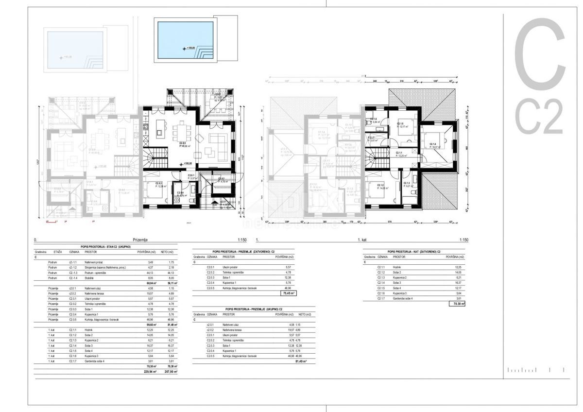
ISOLA DI KRK, TRIBULJE - terreno edificabile con progetto per una casa bifamiliare con piscina In vendita è un terreno edificabile con una superficie di 1.979,60. Progetto per la realizzazione di una villetta bifamiliare “C”, ciascuna con propria piscina, giardino e parcheggio per due auto ciascuna, suddivisa in piano terra e primo piano. Al piano terra della casa "C1" troviamo una zona giorno open space con cucina e sala da pranzo con accesso ad un terrazzo coperto, giardino e piscina, oltre ad una camera da letto e un bagno. Al primo piano della casa abbiamo altre due camere da letto, ciascuna con il proprio bagno e spogliatoio, dove entrambe le camere hanno accesso ad un terrazzo coperto. La superficie abitabile totale di ogni casa è di 231,18 mq. Ogni casa ha due posti auto nel cortile. Il progetto viene venduto con concessione edilizia, prezzo su richiesta, possibilità di accordo con il venditore sulla costruzione e vendita in fase chiavi in mano. Gentili clienti, la commissione d'agenzia viene addebitata secondo le Condizioni Generali. www.dux-nekretnine.hr/opci-uvjeti-poslovanja
ID: 1063026