Appartamento - TRIBUNJ - 432.193 EUR
| Posizione | TRIBUNJ, Sebenico-Dalmazia |
| Prezzo € | 432.193 |
| Superficie | 100 m2 |
| Numero di camere | 4 |
| Bagni | 2 |
| Vicino ai trasporti | Si |
| Distanza dal mare | 650 m |
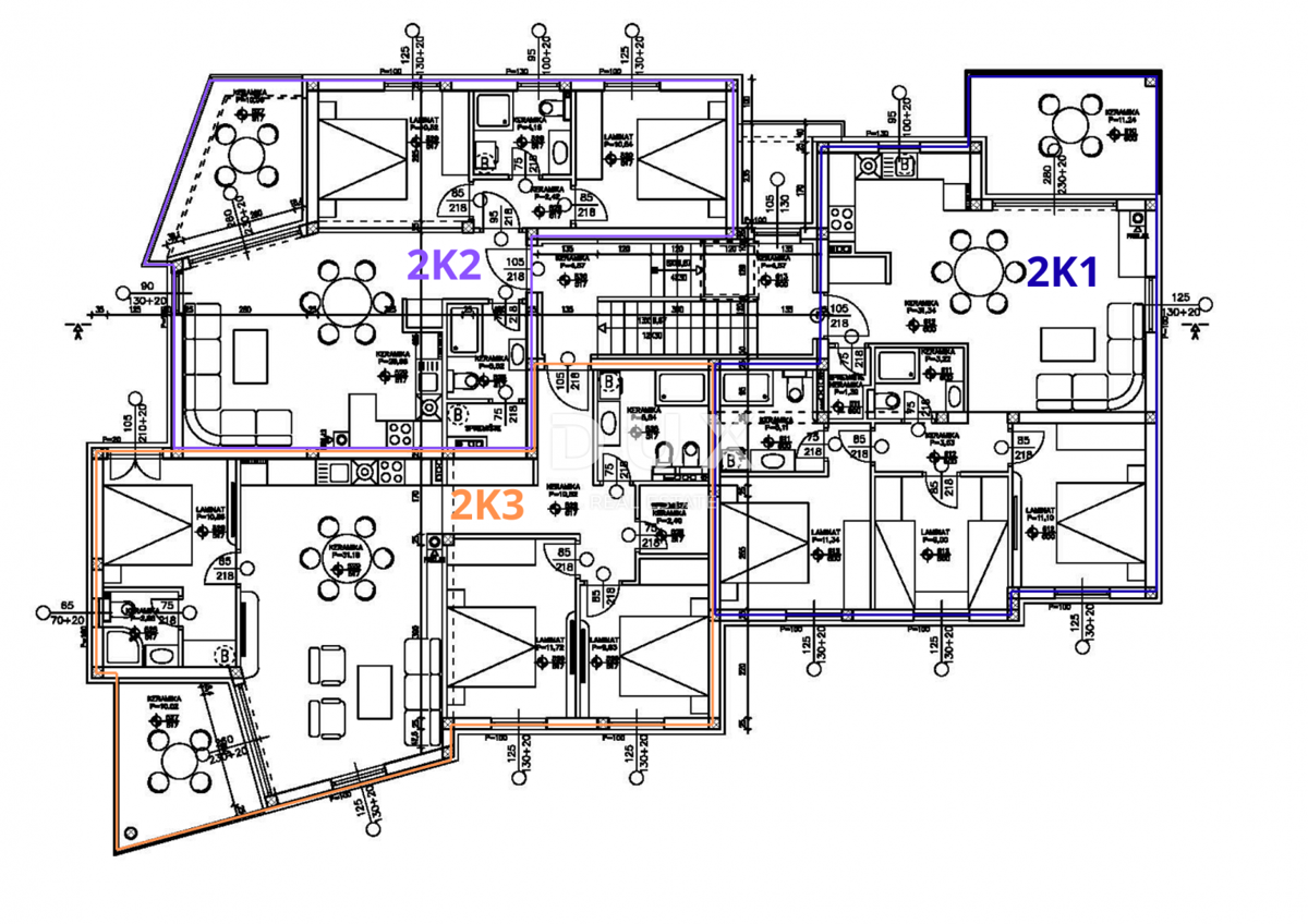
SEBENICO, TRIBUNJ - Attico in un lussuoso edificio di nuova costruzione, vista mare DUX sta mediando la vendita di un attico al secondo piano di un edificio di nuova costruzione a Tribunj, vicino a Sebenico. L'attico si trova in un condominio con un totale di 9 unità abitative. L'edificio si estende su quattro piani: un seminterrato (con ripostigli per ogni appartamento), un piano terra (tre unità abitative con piscina) e due piani (ciascuno con tre unità abitative con una splendida vista mare). L'edificio è attualmente in costruzione e il suo completamento è previsto entro la fine del 2026. L'appartamento 2K3 ha una superficie utile totale di 100,51 m² ed è composto da un soggiorno open space, cucina e sala da pranzo, da cui si accede a una terrazza con splendida vista mare, tre camere da letto e due bagni, di cui uno nella camera da letto principale, e un ulteriore ripostiglio. L'appartamento dispone inoltre di un ripostiglio al piano interrato e di un posto auto privato nel cortile condominiale. Per la costruzione vengono utilizzati esclusivamente materiali di altissima qualità e gli appartamenti vengono venduti chiavi in mano. L'investitore ha alle spalle numerosi progetti completati con successo, a dimostrazione della qualità della costruzione e delle finiture. Ogni appartamento sarà dotato di riscaldamento a pavimento in tutto l'appartamento, condizionatori split system in tutte le stanze, porte blindate, infissi in alluminio con triplo vetro, zanzariere e tapparelle elettriche, portefinestre alzanti e scorrevoli in alluminio, pavimenti rivestiti in pietra naturale, sanitari moderni, prese TV in tutte le camere da letto e nei soggiorni, ringhiere in vetro sulle terrazze e facciata in EPS con uno spessore minimo di 10 cm. L'immobile è situato in una splendida micro-località a soli 650 metri dalla spiaggia e a 1500 metri dal centro città e dal porto turistico. L'area circostante è dominata da un paesaggio mediterraneo incontaminato di campi, rocce carsiche, ulivi e pini, che rende questa posizione estremamente attraente e autentica. L'IVA è inclusa nel prezzo e l'acquirente è esente dal pagamento dell'imposta sugli immobili! Il centro di Vodice dista solo pochi chilometri, Sebenico solo 15 km, mentre l'aeroporto di Zara è a 58 km e quello di Spalato a 66 km, il che rende questa posizione eccezionalmente ben collegata. Anche i parchi nazionali di Krka e Kornati e il lago di Vrana si trovano nelle vicinanze. Tribunj è un pittoresco villaggio di pescatori e centro turistico non lontano da Vodice e Sebenico, noto per la sua autentica atmosfera mediterranea e il suo splendido porto turistico. È noto per il suo antico nucleo in pietra su un isolotto, le sue stradine strette e l'architettura tradizionale. La città offre una vacanza tranquilla con spiagge pulite, gastronomia autentica ed eventi vivaci come le corse degli asini. Per ulteriori informazioni o per organizzare una visita, non esitate a contattarci. Gentili clienti, la commissione d'agenzia viene addebitata in conformità con i Termini e Condizioni Generali: www.dux-nekretnine.hr/opci-uvjeti-poslovanja
ID: 1247532