Casa - TUŠKANAC - 1.600.000 EUR
| Posizione | TUŠKANAC, ZAGREB, Zagabria |
| Prezzo € | 1.600.000 |
| Superficie | 350 m2 |
| Numero di camere | 6 |
| Superficie terrestre | 690 m2 |
| Bagni | 7 |
| Distanza dal mare | 0 m |
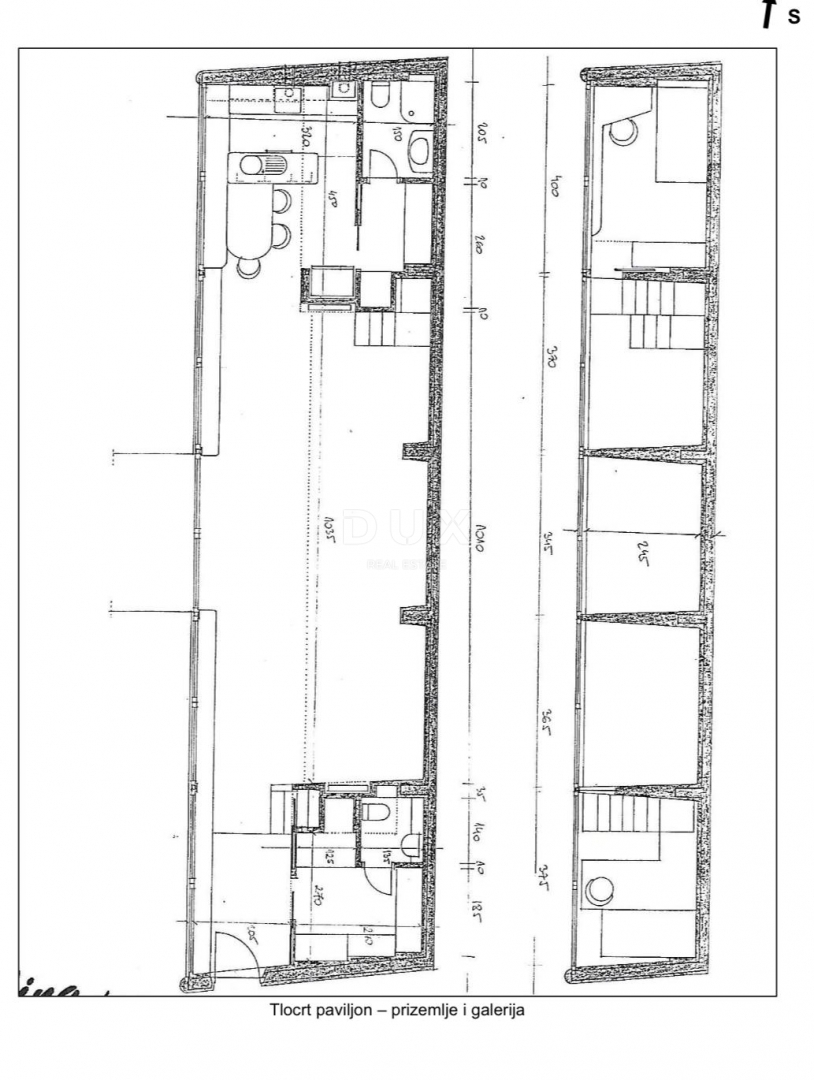
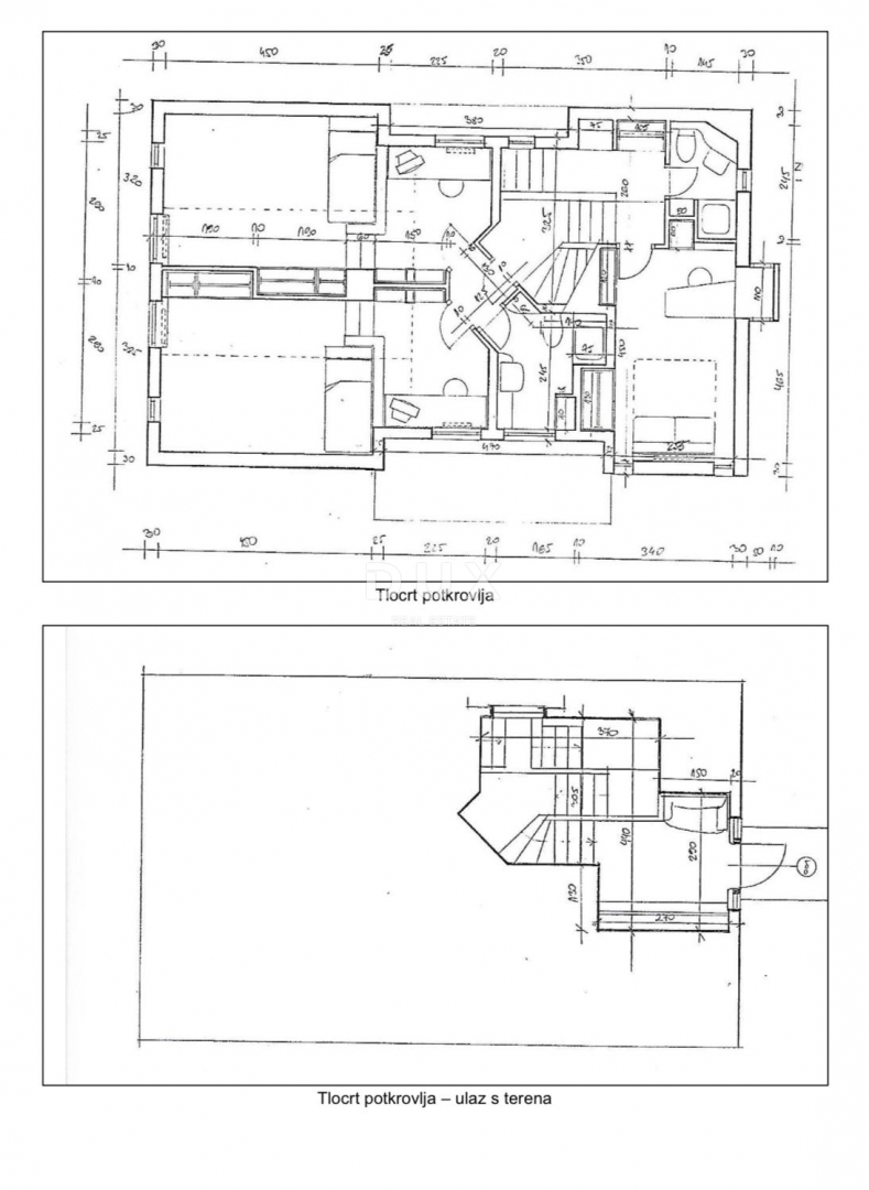
ZAGABRIA, CITTÀ ALTA - Una casa unica immersa nella natura Immersa nel verde, a soli 12 minuti a piedi da Ilica e dal centro di Zagabria, questa casa unica offre assoluta tranquillità e privacy, senza vicini e con vista sulla natura di Dubravkin put e Tuškanac. Accanto alla casa si trova anche uno spazio commerciale. L'edificio residenziale si estende su tre piani e ha una superficie totale di 262 m². Al primo piano della casa si trovano due camere da letto, uno studio e due bagni. L'ingresso al secondo piano conduce al soggiorno. L'ampio soggiorno è collegato a un'ampia terrazza immersa nella natura, creando una perfetta connessione tra interno ed esterno. La planimetria del secondo piano è completata da una cucina, una sala da pranzo e una camera da letto principale con bagno privato. Il terzo piano della casa è progettato come un'unità residenziale separata con due camere da letto. L'appartamento sopra menzionato è collegato al resto della casa tramite scale interne e dispone anche di un ingresso indipendente dall'esterno. Accanto alla casa si trova un edificio separato con uno spazio commerciale di 112 m², ideale per un team di lavoro di dieci persone. La planimetria dello spazio commerciale è composta da un ampio open space all'ingresso, due gallerie separate più piccole e un bagno con servizi igienici. Situata lungo la famosa passeggiata Dubravkin put, questa posizione offre un'eccezionale combinazione di privacy e accessibilità. Tutti i servizi cittadini sono nelle vicinanze e i trasporti pubblici (linea 105 dell'autobus) garantiscono rapidi collegamenti con il resto della città. Il progetto architettonico della casa e dell'edificio commerciale è firmato da un importante architetto e professore di Zagabria, che ha anche supervisionato l'intera costruzione. La struttura è stata costruita utilizzando un sistema di palificazione in combinazione con strutture metalliche e in cemento armato, mentre le scale di accesso sono in acciaio e legno, anch'esse fissate da fondazioni su pali. Grazie a questa soluzione, l'edificio non ha subito danni durante i terremoti di Zagabria, a conferma dell'eccezionale qualità e stabilità della costruzione. Grazie alla sua posizione unica immersa nella natura, ma a pochi passi dal centro, questa proprietà è la scelta perfetta per viverci, come residenza estiva o come investimento. Gentili clienti, la commissione di agenzia viene addebitata in conformità con i Termini e Condizioni Generali www.dux-nekretnine.hr/opci-uvjeti-poslovanja
ID: 1241534