Appartamento - UMAG - 297.000 EUR
| Posizione | UMAG, Istria |
| Prezzo € | 297.000 |
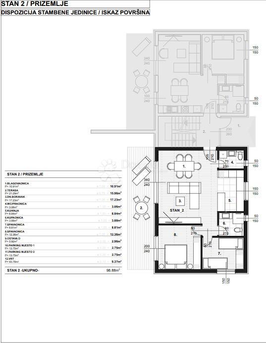
| Superficie | 99 m2 |
| Numero di camere | 3 |
| Superficie terrestre | 94 m2 |
| Bagni | 2 |
| Distanza dal mare | 2000 m |
Questo appartamento dal design moderno, situato nei dintorni di Umago, offre una combinazione ideale di comfort, funzionalità e qualità. Con una superficie di 98,88 m², l'appartamento presenta interni spaziosi e luminosi, tra cui un soggiorno open space con cucina e zona pranzo. L'appartamento è composto da due camere da letto confortevoli, un bagno moderno, un WC per gli ospiti e un pratico corridoio. Dal soggiorno si accede a una grande terrazza di 21,29 m², che porta a un cortile ben curato di 94 m², perfetto per il relax e le attività all'aperto. I vantaggi aggiuntivi di questo appartamento includono un ripostiglio nel seminterrato dell'edificio e due posti auto, aumentando ulteriormente la sua funzionalità. L'appartamento viene costruito con materiali di alta qualità, tra cui mattoni Phoroterm (spessore 25 cm) e una facciata con isolamento termico di 10 cm di spessore, che garantiscono efficienza energetica e durata. Gli infissi esterni saranno di alta qualità, di colore antracite, con tapparelle elettriche, e ogni stanza dell'appartamento sarà dotata di un sistema di climatizzazione multisplit, che permette il controllo separato della temperatura in ogni stanza. Per un comfort aggiuntivo, il riscaldamento sarà fornito da riscaldamento a pavimento elettrico. Questo appartamento offre uno spazio abitativo di alta qualità in una zona tranquilla, con il completamento dei lavori previsto per l'autunno 2025. È il posto ideale per una famiglia o per chi cerca uno spazio abitativo moderno e confortevole vicino a Umago.
ID: 1178621