Casa - UMAG - 699.000 EUR
| Posizione | UMAG, Istria |
| Prezzo € | 699.000 |
| Superficie | 126 m2 |
| Numero di camere | 3 |
| Superficie terrestre | 454 m2 |
| Bagni | 3 |
| Distanza dal mare | 1500 m |
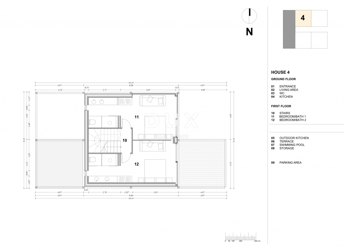
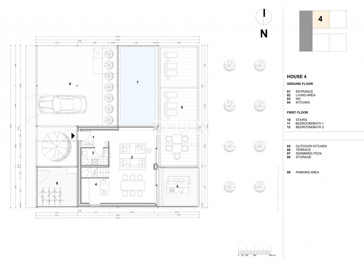
ISTRIA, UMAGO - Villa ecosostenibile vicino al mare Una villa moderna è in vendita in un ambiente tranquillo e verdeggiante non lontano da Umago, adatta ad acquirenti che cercano privacy, edilizia ecologica di qualità e vicinanza al mare. L'aeroporto di Pola è a 45 minuti, Trieste a 60 minuti e Venezia e Treviso a meno di due ore di auto. Le spiagge distano circa 1500 metri e nelle immediate vicinanze si trovano la Parenzana, cantine vinicole, uliveti, ristoranti, centri benessere e campi da golf. La villa ha una superficie totale di 454 metri quadrati, di cui 202 metri quadrati coperti. La superficie abitabile interna è di 105 metri quadrati, con ulteriori 65 metri quadrati di terrazze coperte, 16 metri quadrati di balcone coperto e 16 metri quadrati di deposito biciclette. L'esterno dispone di un giardino privato di 150 metri quadrati, un giardino d'ingresso di 16 metri quadrati, una piscina privata di 22 metri quadrati e due posti auto per una superficie totale di 64 metri quadrati. La villa è costruita con legno massello iQwood, un sistema che offre efficienza energetica, stabilità, buona regolazione dell'umidità e un microclima piacevole durante tutto l'anno. Questa costruzione ecosostenibile è ideale per gli acquirenti che cercano una soluzione sostenibile con un valore a lungo termine e costi di gestione ridotti. Il piano terra è composto da un soggiorno open space con ampie vetrate e accesso diretto alla terrazza, una cucina collegata alla sala da pranzo, un bagno di servizio e un bagno per gli ospiti. Lo spazio è pratico, luminoso e naturalmente collegato all'esterno. Il cortile comprende una piscina privata, una terrazza coperta e una cucina esterna coperta, che consente di utilizzare lo spazio in modo piacevole durante tutta la stagione. Il giardino privato offre tranquillità e intimità, e il deposito per le biciclette contribuisce ulteriormente alla praticità grazie alla vicinanza di famose piste ciclabili. Al piano superiore si trovano due camere da letto, entrambe con bagno privato. Riscaldamento a pavimento, aria condizionata, tapparelle elettriche e ampie vetrate garantiscono un elevato livello di comfort. Una delle camere ha accesso a un balcone coperto, ideale per rilassarsi e godersi la vista sul verde circostante. La villa è adatta come seconda casa, rifugio per famiglie o investimento, con un ottimo potenziale per affitti turistici di lusso. La piscina privata, il giardino e la costruzione sostenibile la distinguono ulteriormente sul mercato. Per ulteriori informazioni, planimetrie, visualizzazioni e per organizzare una visita, i dettagli sono disponibili su richiesta. Tali immobili si vendono solitamente rapidamente. Gentili clienti, la commissione di agenzia viene addebitata in conformità con i Termini e Condizioni Generali: www.dux-nekretnine.hr/opci-uvjeti-poslovanja
ID: 1238500