Appartamento - VABRIGA - 202.479 EUR
| Posizione | VABRIGA, TAR-VABRIGA, Istria |
| Prezzo € | 202.479 |
| Superficie | 50 m2 |
| Numero di camere | 2 |
| Superficie terrestre | 34 m2 |
| Bagni | 1 |
| Distanza dal mare | 900 m |
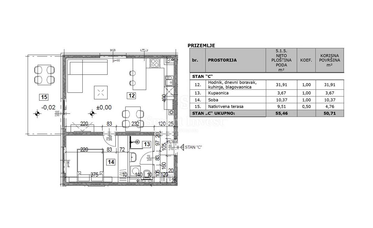
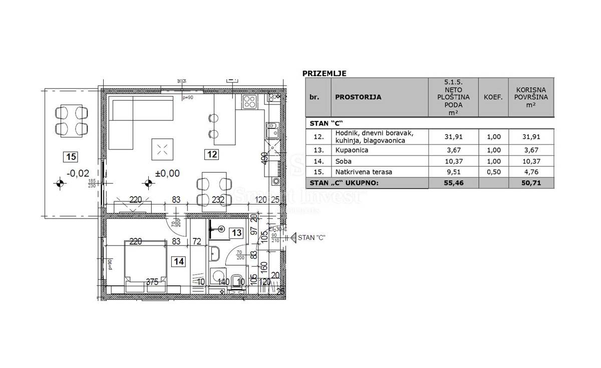
ISTRIA - PARENZO - ABREGA, In vendita è un confortevole appartamento, 1 camera da letto + soggiorno, con giardino di 34 m2, in un nuovo edificio con ascensore in una bella posizione vicino al mare - a soli 10 minuti a piedi dalla spiaggia più vicina ! L'edificio moderno è stato costruito da un investitore affidabile con molti anni di esperienza e una lista di referenze nell'edilizia residenziale. APPARTAMENTO C – con una superficie utile di 50,71 mq e un giardino di 34 mq è situato al piano terra ed è composto da un corridoio, soggiorno con cucina e zona pranzo, camera, bagno, e un terrazzo coperto di 9,51 mq (coefficiente 0,5=4,76 mq). L'appartamento dispone inoltre di un giardino di 34 mq, un ripostiglio di 1,74 mq e un posto auto di 12,48 mq. Gli appartamenti saranno dotati di riscaldamento/raffrescamento tramite pompa di calore e riscaldamento a pavimento nei bagni, e l'edificio avrà una facciata ETICS e un ascensore. Posizione molto attraente vicino a tutti i servizi quotidiani, a soli 10 minuti a piedi dalla spiaggia più vicina ea 10 minuti di auto dal centro di Parenzo. *Il prezzo indicato si riferisce ad un appartamento completamente finito chiavi in mano, senza mobili. Il prezzo include l'IVA al 25%, l'acquirente non paga l'imposta sul passaggio di proprietà. In caso di acquisto su una persona giuridica registrata in Croazia è possibile rimborsare l'IVA completa dopo l'acquisto. Per ulteriori informazioni e per un appuntamento di visione chiamare: +385/91/320-0021
ID: 950573