Tutti tipi
Case
Appartamenti
Terreni
Uffici
Provincia
...
Istria
Quarnaro
Spalato-Dalmazia-Sud
Ragusa
Sebenico-Dalmazia
Zara-Dalmazia-Nord
Zagabria
Bjelovarsko-bilogorska
Brodsko-posavska
Karlovac
Koprivniško-križevska
Krapinsko-zagorska
Ličko-senjska
Međimurje
Osijek-Baranja
Požeško-slavonska
Sisačko-moslavačka
Varaždinska
Virovitiško-podravska
Vukovarsko-srijemska
Zagabria-Dintorni
Comune
...
NOVIGRAD
POREČ
VIŠNJAN
UMAG
VIŽINADA
BALE
ŽMINJ
MEDULIN
KANFANAR
BARBAN
ROVINJ
BUJE
BUZET
GRAČIŠĆE
MARČANA
PAZIN
SVETVINČENAT
GROŽNJAN
KRŠAN
LUPOGLAV
CEROVLJE
TINJAN
LABIN
LANIŠĆE
RAŠA
MOTOVUN
BRTONIGLA
SVETA NEDELJA
KAŠTELIR - LABINCI
OPRTALJ
SVETI LOVREČ
PULA
FAŽANA
FUNTANA
VODNJAN
LIŽNJAN
PIĆAN
KAROJBA
SVETI PETAR U ŠUMI
TAR-VABRIGA
VRSAR
CittÃ
...
TAR
VABRIGA
Tipo
Tutti
Case
Appartamenti
Terreni
Uffici
Prezzo
da
a
Distanza dal mare (m)
da
a
Criterio
Più recenti
Meno recenti
Più costosi
Meno costosi
Cerca
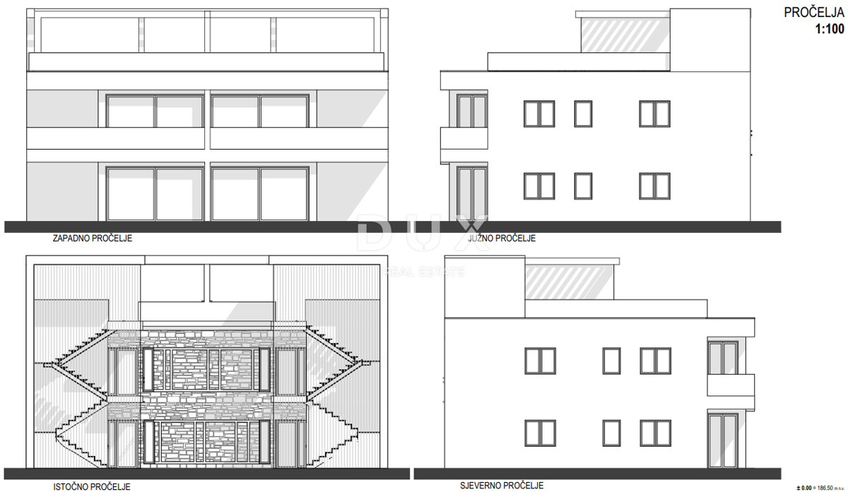
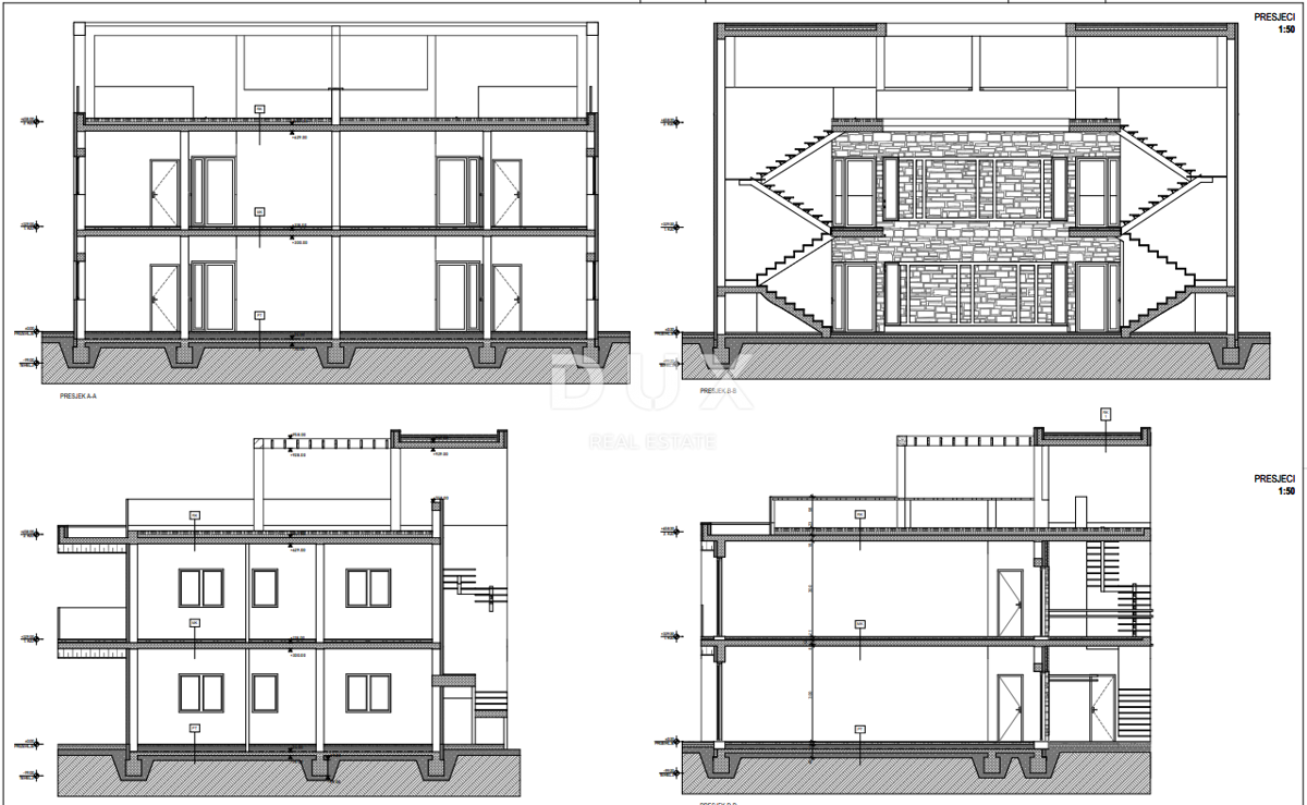
Appartamento - VABRIGA - 625.000 EUR
Previous
Next
Posizione
VABRIGA, TAR-VABRIGA, Istria
Prezzo €
625.000
Superficie
104 m
2
Numero di camere
3
Bagni
2
Vicino ai trasporti
Si
Distanza dal mare
1000 m
ID: 1243940
Invia messaggio
Nome
E-mail
Tel.
2 + 1 =
Messaggio
Invia
Annulla