Casa - VIR - 360.000 EUR
| Posizione | VIR, Zara-Dalmazia-Nord |
| Prezzo € | 360.000 |
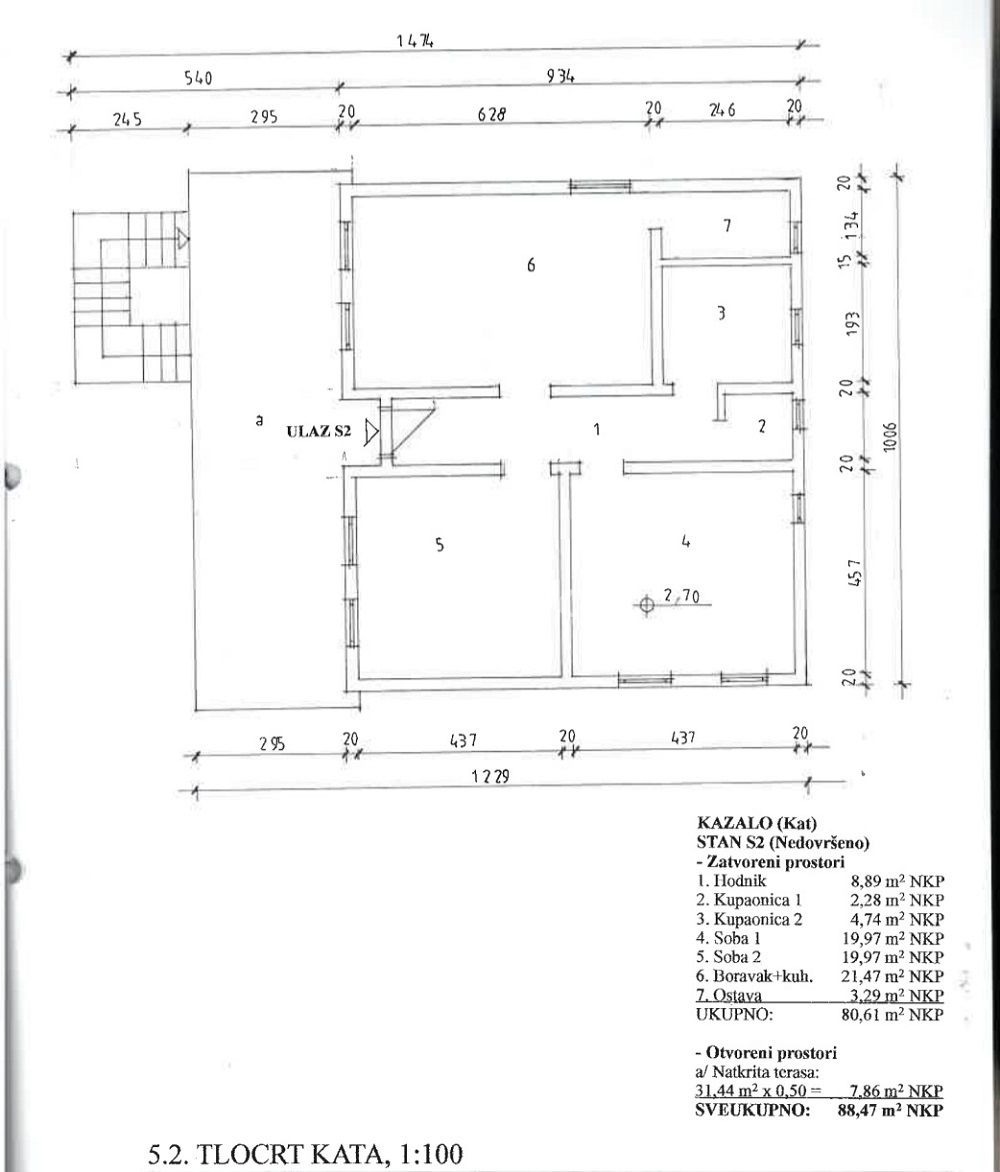
| Superficie | 182 m2 |
| Numero di camere | 4 |
| Superficie terrestre | 336 m2 |
| Bagni | 4 |
| Distanza dal mare | 320 m |
Proprietà familiare composta da due unità abitative separate, costruite su un bellissimo e ampio giardino con vegetazione.Piano terra: terrazza coperta, cucina con sala da pranzo e soggiorno, due bagni, due camere da letto, ripostiglio. (spazio arredato)Scala esterna per il primo piano: al primo piano si trova lo stesso spazio del piano terra, che deve essere completato (le vetrate sono state rimosse, pavimento e sanitari devono essere decorati e tinteggiati).Acqua: cisterna d'acqua da 15 m³, pozzo trivellato, allaccio elettrico.A soli 320 metri dal mare e dalla spiaggia attrezzata.Servizi necessari: negozio, bar, ristorante nelle immediate vicinanze.
ID: 1191533