Appartamento - VIŠKOVO - 255.000 EUR
Posizione | VIŠKOVO, Quarnaro |
Prezzo € | 255.000 |
Superficie | 91 m2 |
Numero di camere | 4 |
Bagni | 2 |
Distanza dal mare | 0 m |
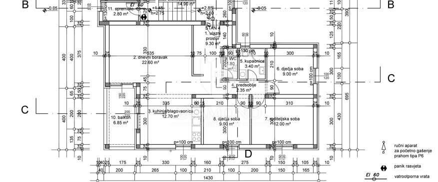
Al secondo, e ultimo piano di una piccola palazzina residenziale, si trova un ampio appartamento ideale per una vita familiare confortevole. L'edificio si trova in una strada tranquilla e l'appartamento ha una superficie di 91,80 m², con uno spazio ben distribuito che offre il massimo del comfort per la famiglia. L'appartamento è composto da un ampio soggiorno con angolo cottura e zona pranzo, tre camere da letto, un bagno, un WC separato, una loggia e un ripostiglio. Questa disposizione degli spazi offre funzionalità e privacy, rendendolo perfetto per la vita familiare. Un vantaggio particolare di questo appartamento è la sua posizione tranquilla, che garantisce silenzio e privacy, pur essendo vicino a tutte le comodità quotidiane. L'appartamento è dotato di moderni sistemi di riscaldamento e climatizzazione, con le unità esterne situate sul tetto dell'edificio. L'appartamento dispone anche di due posti auto, uno dei quali è dotato di infrastruttura per la ricarica di veicoli elettrici, rendendolo ideale per chi desidera utilizzare veicoli elettrici. Nelle immediate vicinanze si trovano scuola, asilo, negozi, farmacia, fermata dell'autobus e ufficio postale, il che rende ulteriormente questa posizione ideale per la vita familiare. L'edificio è in fase di costruzione e il completamento dei lavori è previsto per gennaio 2026. Questa è un'ottima opportunità per acquistare un appartamento moderno in una posizione tranquilla, con eccellenti infrastrutture, ideale per il comfort familiare. Per maggiori informazioni e visite, non esitate a contattarci.
ID: 1163515