Appartamento - VIŠKOVO - 259.000 EUR
| Posizione | VIŠKOVO, Quarnaro |
| Prezzo € | 259.000 |
| Superficie | 89 m2 |
| Numero di camere | 3 |
| Superficie terrestre | 1 m2 |
| Bagni | 2 |
| Vicino ai trasporti | Si |
| Distanza dal mare | 0 m |
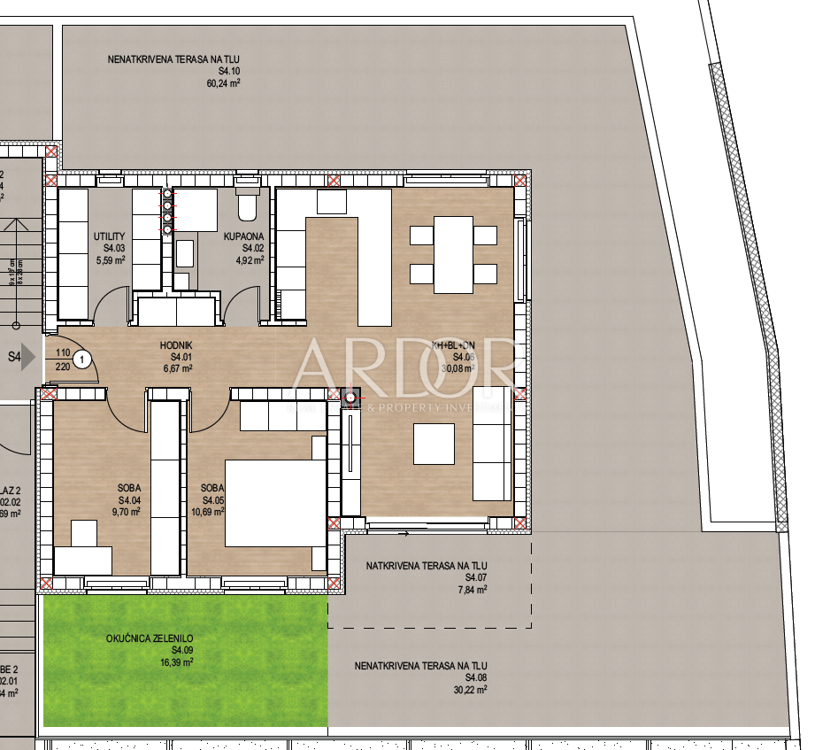
In una posizione tranquilla e verdeggiante a Donji Jugi (Viškovo), offriamo un moderno appartamento al piano terra di un nuovo edificio che unisce il comfort della vita moderna alla privacy del proprio giardino. L'appartamento offre una casa ideale per famiglie, coppie o acquirenti che desiderano godersi la natura e la qualità di una nuova vita. L'appartamento è angolare e orientato su tre lati, rendendo tutti gli ambienti ariosi e soleggiati durante tutto il giorno. Si compone di due comode camere da letto, un soggiorno open space con sala da pranzo e cucina con accesso diretto a un'ampia terrazza e giardino, un bagno con WC e una lavanderia separata con cabina armadio. Particolare attenzione è rivolta al comfort e all'efficienza energetica. L'intero appartamento è dotato di riscaldamento a pavimento tramite pompa di calore, mentre i condizionatori sono presenti nel soggiorno e in ogni stanza. L'appartamento dispone di due posti auto, un ripostiglio e, come valore aggiunto, un camino esterno in mattoni con lavandino e presa di corrente, situato lungo il muro perimetrale del giardino, perfetto per socializzare e godersi l'aria aperta. La costruzione è in corso secondo i più alti standard e il completamento è previsto per febbraio 2026, con il trasferimento a maggio 2026. La vendita avviene chiavi in mano, senza costi aggiuntivi di adattamento, e l'acquirente è esente dal pagamento dell'imposta sugli immobili. È inoltre prevista la possibilità di un rimborso IVA del 50% per gli acquirenti che acquistano il loro primo immobile. Il prezzo è di 259.000 €, mentre il prezzo è di 269.000 € se acquistato a credito. Questa proprietà offre tutto ciò che una famiglia moderna desidera: una posizione tranquilla, un giardino privato, efficienza energetica e un design moderno, con una splendida vista su Castua e sul Monte Maggiore. Un'opportunità ideale per una vita di qualità e spensierata in un nuovo edificio a Viškovo. Gentili acquirenti, in conformità con la Legge sull'intermediazione immobiliare, la visita dell'immobile è possibile solo previa firma di un contratto di mediazione. In caso di acquisto, l'acquirente è tenuto a pagare una commissione di agenzia.
ID: 1235642