Casa - VIŠNJAN - 399.000 EUR
| Posizione | VIŠNJAN, Istria |
| Prezzo € | 399.000 |
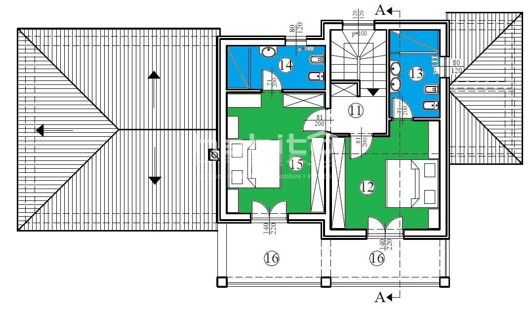
| Superficie | 165 m2 |
| Numero di camere | 4 |
| Superficie terrestre | 555 m2 |
| Bagni | 3 |
| Distanza dal mare | 0 m |
Istria, zona Parenzo - Casa con piscina in fase Roh-bau, 165 m² Una posizione tranquilla vicino a Visignano. Una casa familiare di 165 m² su un terreno di 555 m² con una piscina di 7x4 m. La casa è composta da 3 camere da letto, 3 bagni, un WC per gli ospiti, un ripostiglio, una spaziosa cucina con sala da pranzo e un soggiorno con camino. Godetevi le ampie terrazze coperte e un cortile spazioso. La casa si trova a soli 2,5 km dal centro di Visignano e a 13 km dal mare e da Parenzo. C'è la possibilità di acquistare la casa finita al prezzo di 690.000 €. Un'occasione ideale per personalizzare gli interni a proprio piacimento.
ID: 1205110