Appartamento - VODICE - 181.940 EUR
| Posizione | VODICE, Sebenico-Dalmazia |
| Prezzo € | 181.940 |
| Superficie | 64 m2 |
| Numero di camere | 3 |
| Bagni | 1 |
| Vicino alla spiaggia | Si |
| Distanza dal mare | 0 m |
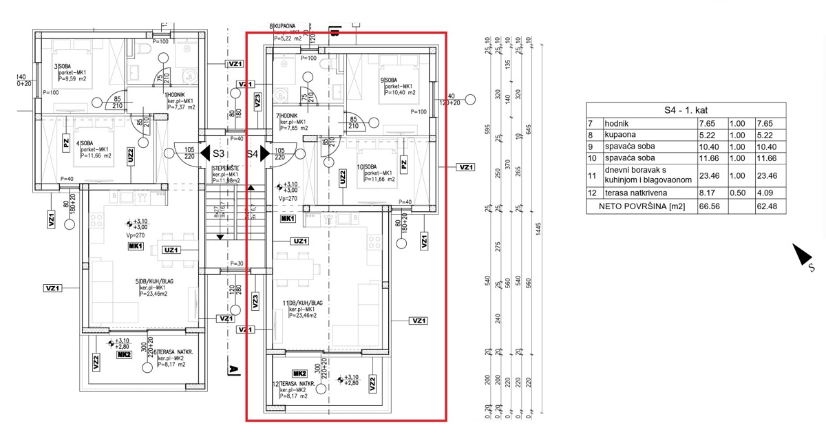
Vodice-**NUOVA COSTRUZIONE** in vendita appartamenti in un piccolo edificio residenziale. L’edificio dal design moderno è costruito con materiali di qualità e sarà dotato secondo gli ultimi standard edilizi. Tra le dotazioni si evidenziano: facciata in polistirene espanso da 10 cm, infissi in PVC, vetro triplo, tapparelle con alzate elettriche, zanzariere su tutte le aperture, riscaldamento a pavimento elettrico in bagno e soggiorno, climatizzatori (riscaldamento/raffreddamento) in soggiorno e camere da letto... L’edificio con un totale di 4 unità abitative si trova in una posizione tranquilla, circondato da case familiari e piccoli edifici residenziali, a circa 1400 m dal centro di Vodice e a circa 1800 m dalla spiaggia più vicina. Attualmente è in costruzione e il termine previsto per il completamento è l’estate 2026. Sono ancora disponibili in vendita gli appartamenti S2 al piano terra e S4 al piano superiore. APPARTAMENTO S4 SUPERFICIE (calcolo secondo coefficienti) – TOTALE 64,98 m2 - Superficie abitabile: 58,39 m2 - Terrazza coperta: 4,09 m2 (superficie reale 8,17 m2) - Posto auto: 2,50 m2 (superficie reale 12,5 m2) (possibilità di acquistare un posto auto aggiuntivo). DISTRIBUZIONE DEI LOCALI - Ingresso/corridoio - Bagno - 2 camere da letto - Soggiorno - Cucina e sala da pranzo - Uscita sulla terrazza - L’appartamento ha una disposizione funzionale e moderna, con particolare attenzione agli spazi giorno e all’area esterna – perfetto per vivere tutto l’anno. altro disponibile : Appartamento S1 - venduto Appartamento S2 - superficie 77,54 m2, composto da: ingresso/corridoio, bagno, 2 camere da letto, cucina e sala da pranzo e soggiorno, uscita sulla terrazza di 18 m2, giardino di 35,90 m2, 1 posto auto. = 217.112,00 € Appartamento S3 - venduto
ID: 1252517