Appartamento - VODICE - 183.810 EUR
| Posizione | VODICE, Sebenico-Dalmazia |
| Prezzo € | 183.810 |
| Superficie | 55 m2 |
| Numero di camere | 3 |
| Bagni | 1 |
| Distanza dal mare | 0 m |
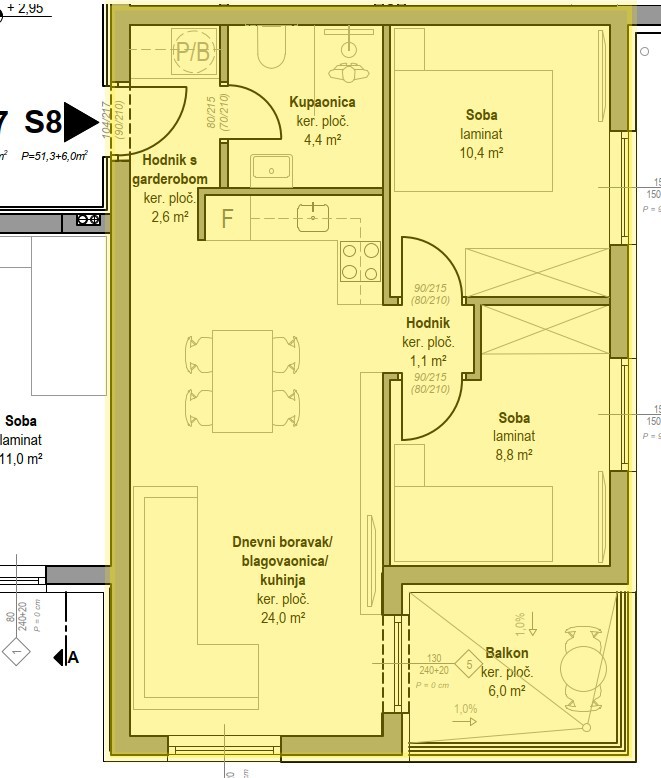
VODICE, edificio in prevendita / prenotazione appartamenti, edificio in fase di progettazione, inizio costruzione aprile 2026, termine consegna estate 2027, proponiamo un grazioso appartamento bilocale al primo piano dell’edificio, di superficie 55,70 m2 composto da ingresso, bagno, camera da letto 1, camera da letto 2, cucina con sala da pranzo e soggiorno, terrazza e un posto auto davanti all’edificio. = 183.810,00 €, IVA inclusa nel prezzo di vendita. L’edificio sarà costruito con materiali di qualità secondo gli ultimi standard edilizi e sarà dotato di facciata in polistirene espanso, porta d’ingresso antieffrazione e antincendio, infissi in PVC antracite con alzavetro elettrici, zanzariere, porte interne bianche, condizionatori nelle camere e nel soggiorno, pavimenti in laminato nelle camere, il resto dell’appartamento sarà rifinito con ceramica di alta qualità, riscaldamento a pavimento elettrico nel bagno. L’edificio dista dal centro città 1200 m dal centro, 700 m dal mare e 800 m dalla spiaggia Hangar. - il prezzo dell’appartamento è comprensivo di IVA, pertanto gli acquirenti sono esenti dal pagamento dell’imposta di registro sugli immobili - per questa proprietà gli acquirenti sono esenti dalla commissione d’agenzia - immobile in fase di prenotazione, alla partenza dei lavori sarà stipulato un preliminare di compravendita. - per ulteriori informazioni siamo a vostra completa disposizione.
ID: 1258910