Appartamento - VODICE - 210.000 EUR
| Posizione | VODICE, Sebenico-Dalmazia |
| Prezzo € | 210.000 |
| Superficie | 55 m2 |
| Numero di camere | 2 |
| Superficie terrestre | 20 m2 |
| Bagni | 1 |
| Distanza dal mare | 500 m |
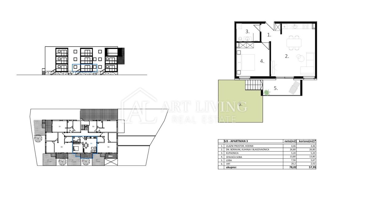
In un’ottima posizione, a soli circa 500 metri dal mare e 400 metri dai negozi e dal centro di Vodice, è iniziata la costruzione di un edificio residenziale moderno e di alta qualità con 14 unità abitative distribuite su tre piani: piano terra, primo piano e secondo piano. Nel seminterrato si trovano i posti auto coperti, mentre davanti all’edificio ci sono parcheggi all’aperto. L’appartamento SJ3, con una superficie abitabile netta totale di 55,93 m², si trova al piano terra dell’edificio residenziale-commerciale. È composto da ingresso, soggiorno con cucina e zona pranzo, una camera da letto, un bagno e una loggia di 7,56 m². All’appartamento appartengono inoltre un posto auto esterno e un giardino privato di 20,20 m². Tutti gli appartamenti saranno costruiti in modo moderno e funzionale e dotati di sistemi di riscaldamento e raffreddamento di alta qualità. La proprietà si trova in una zona tranquilla, vicina a tutti i servizi principali, ed è un’ottima opportunità per chi cerca un immobile moderno adatto sia come abitazione e casa vacanze sia per affitti turistici. L’acquirente è esentato dal pagamento dell’imposta sul trasferimento immobiliare. Il completamento dei lavori è previsto per giugno 2026. Cari clienti, la visita dell’immobile è possibile solo previa firma del contratto di mediazione, che costituisce la base per le ulteriori attività relative alla compravendita e al pagamento della provvigione, in conformità con la legge sulla mediazione immobiliare. L’agenzia ART LIVING REAL ESTATE, come intermediario autorizzato, addebita una commissione del 3% + IVA al momento della firma del contratto preliminare o del contratto di compravendita. NOTA: Non siamo responsabili per eventuali errori nelle descrizioni degli immobili, anche se cerchiamo di essere il più precisi e accurati possibile. CODICE AGENZIA: 1479
ID: 1234735