Appartamento - VODICE - 217.112 EUR
| Posizione | VODICE, Sebenico-Dalmazia |
| Prezzo € | 217.112 |
| Superficie | 77 m2 |
| Numero di camere | 3 |
| Bagni | 1 |
| Vicino alla spiaggia | Si |
| Distanza dal mare | 0 m |
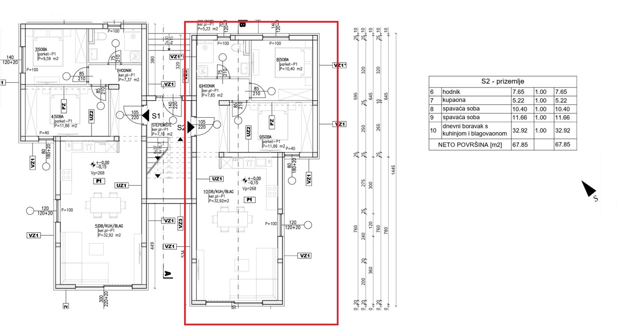
Vodice-**NUOVA COSTRUZIONE** in vendita appartamenti in un piccolo edificio residenziale. L’edificio di aspetto moderno è costruito con materiali di qualità e sarà dotato secondo gli ultimi standard edilizi. Tra le dotazioni si evidenziano: facciata in polistirene espanso da 10 cm, infissi in PVC, vetro triplo, tapparelle con azionamento elettrico, zanzariere su tutte le aperture, riscaldamento a pavimento elettrico in bagno e soggiorno, condizionatori (riscaldamento/raffreddamento) in soggiorno e camere da letto... L’edificio con un totale di 4 unità abitative si trova in una posizione tranquilla, circondato da case unifamiliari e piccoli edifici residenziali, a circa 1400 m dal centro di Vodice e a circa 1800 m dalla spiaggia più vicina. Attualmente è in costruzione e il termine previsto per il completamento è l’estate 2026. Sono ancora disponibili per la vendita gli appartamenti S2 al piano terra e S4 al piano superiore. Gli appartamenti hanno una disposizione moderna e funzionale e sono ideali per la vita familiare, per le vacanze o come investimento. APPARTAMENTO S2 SUPERFICIE (calcolata secondo coefficienti) – TOTALE 77,54 m2 - Superficie abitabile: 67,85 m2 - terrazza: 3,60 m2 (superficie reale 18 m2) - giardino: 3,59 m2 (superficie reale 35,90 m2) - posto auto: 2,50 m2 (superficie reale 12,5 m2) DISTRIBUZIONE DEI LOCALI - ingresso - bagno - 2 camere da letto - cucina, sala da pranzo e soggiorno - uscita sulla terrazza di 18 m2 - giardino di 35,90 m2 - 1 posto auto (possibilità di acquistare un posto auto aggiuntivo) - L’appartamento ha una disposizione funzionale e moderna, con particolare attenzione agli spazi giorno e alle aree esterne – perfetto per soggiornare tutto l’anno. altro disponibile: APPARTAMENTO S1 - venduto APPARTAMENTO S3 - venduto APPARTAMENTO S4 - superficie 64,98 m2 composto da: ingresso, bagno, 2 camere da letto, soggiorno, cucina e sala da pranzo, terrazza, 1 posto auto, prezzo = 181.940,00 €
ID: 1252516