Appartamento - VODICE - 244.692 EUR
| Posizione | VODICE, Sebenico-Dalmazia |
| Prezzo € | 244.692 |
| Superficie | 85 m2 |
| Numero di camere | 4 |
| Bagni | 1 |
| Distanza dal mare | 0 m |
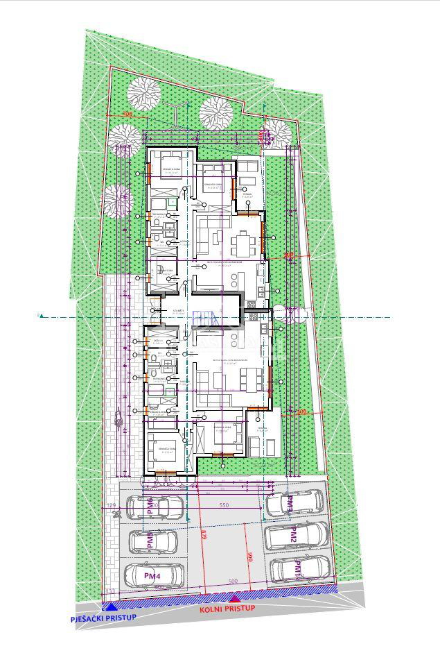
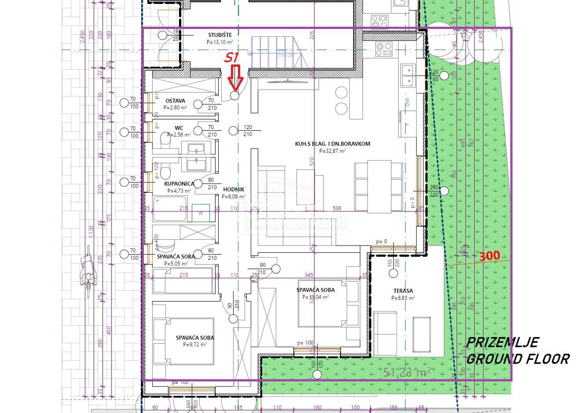
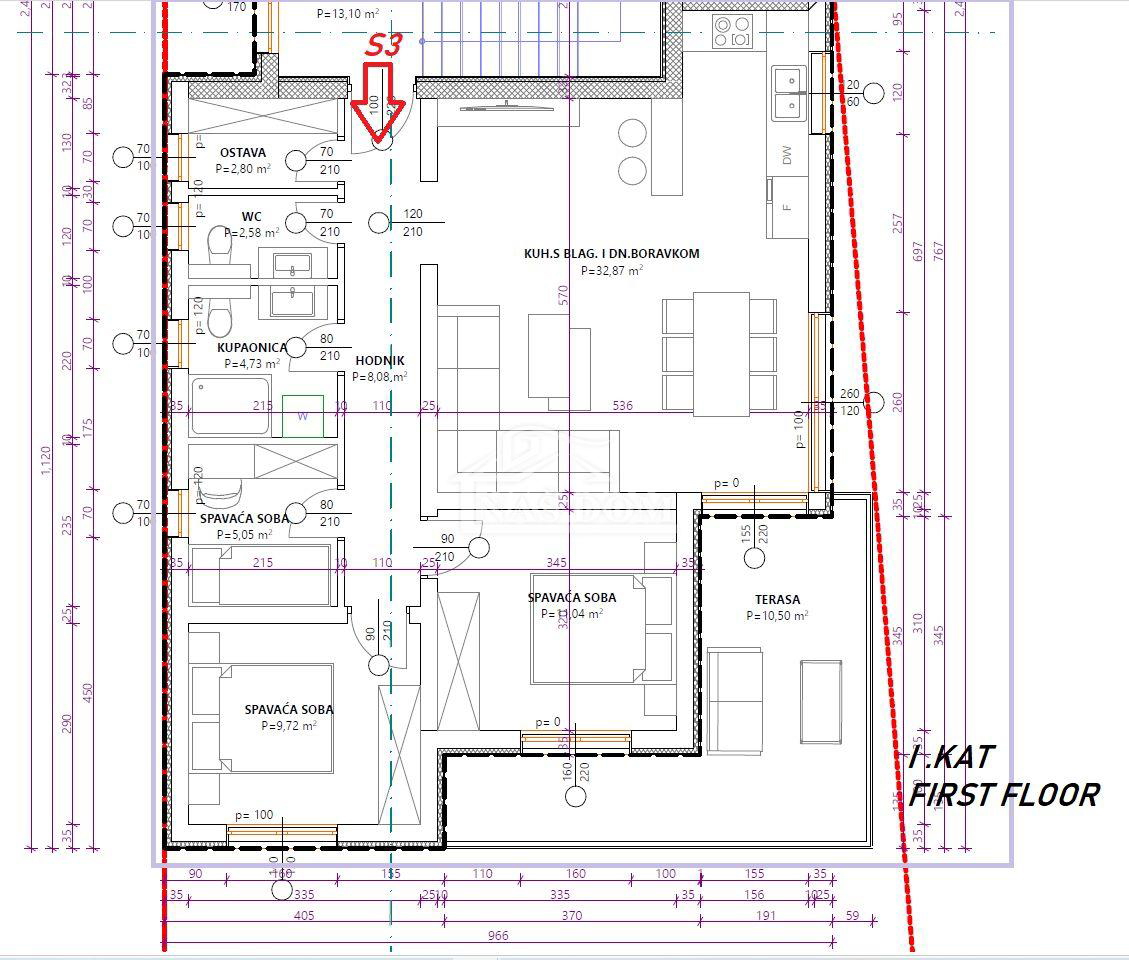
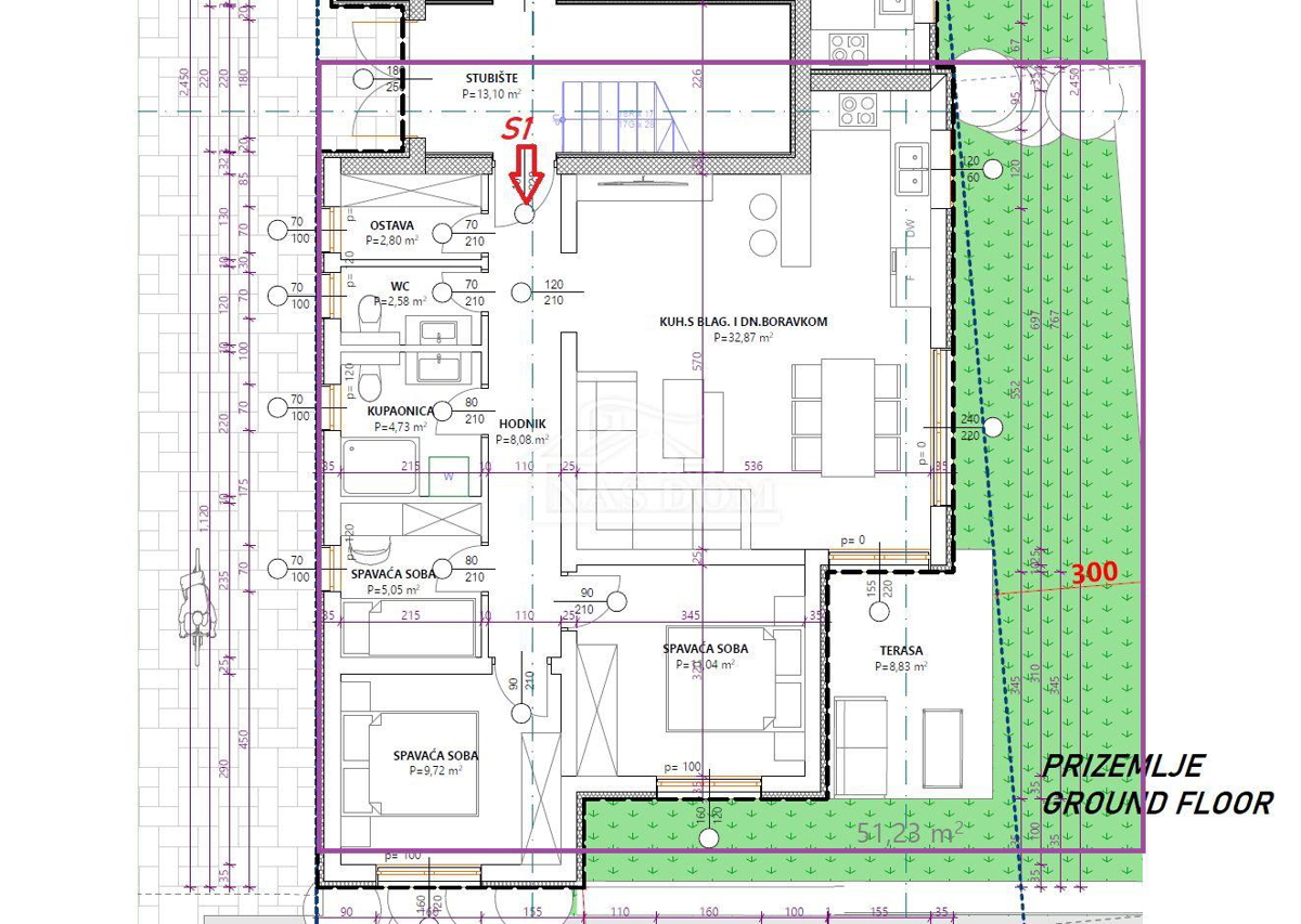
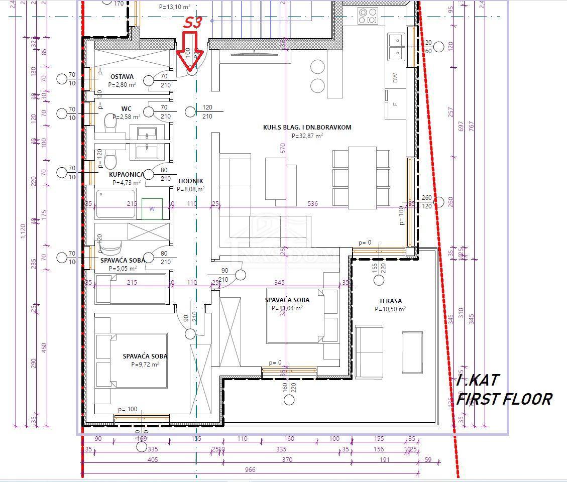
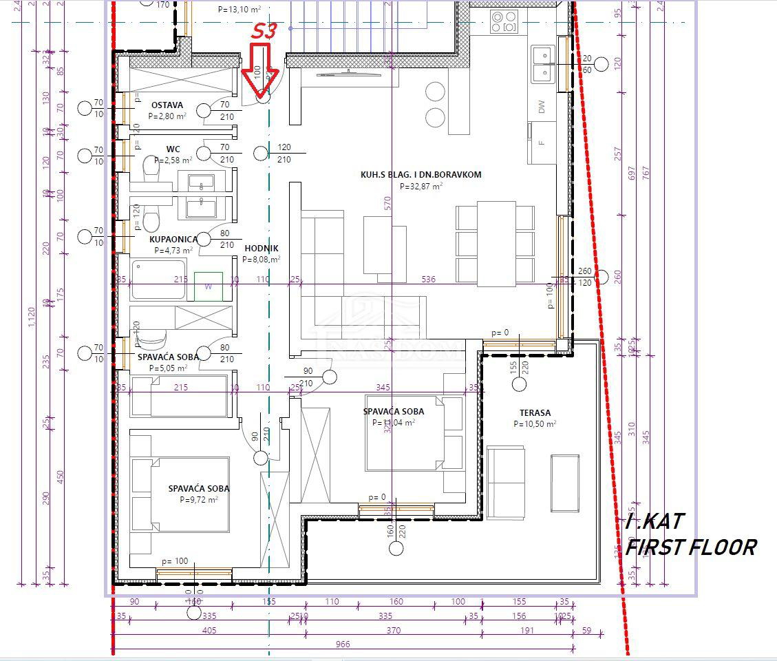
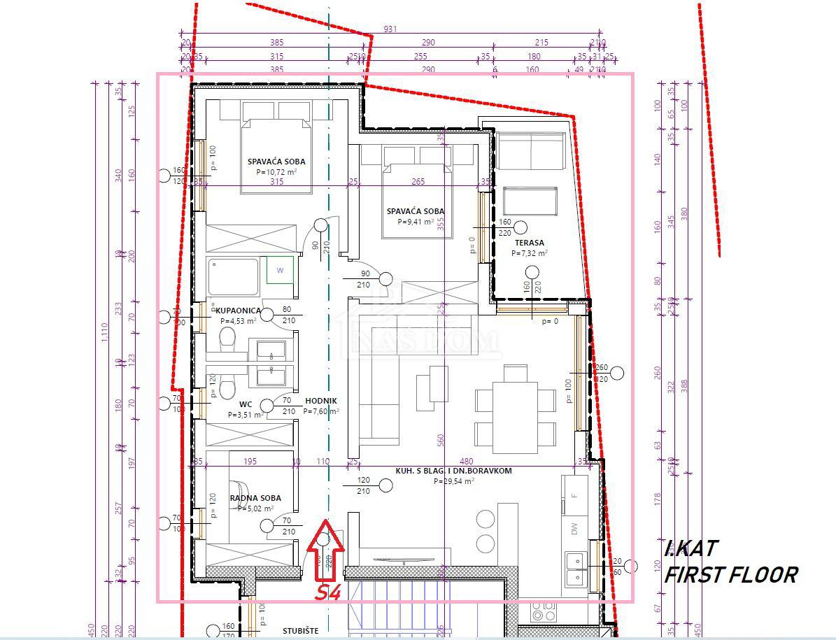
Vodice-**NUOVA COSTRUZIONE** in vendita appartamenti in un piccolo edificio residenziale in una posizione tranquilla. L'edificio dal design moderno ha due piani: piano terra + primo piano. Ad ogni piano si trovano due appartamenti. L'edificio è attualmente in costruzione con materiali di alta qualità e sarà dotato secondo gli ultimi standard di costruzione: facciata in polistirolo, serramenti in PVC color antracite, persiane con sollevatori elettrici, piastrelle in ceramica, sanitari moderni in bagno, riscaldamento a pavimento nei bagni, aria condizionata nel soggiorno e nelle camere da letto.... La data di completamento prevista per la costruzione è nell'estate del 2025. Ogni appartamento ha un posto auto, e gli appartamenti al piano terra hanno anche una corrispondente parte di giardino. L'edificio si trova in una posizione tranquilla, a circa 1500 m dalla spiaggia e a circa 1100 m dal centro città. Appartamento S3 di superficie netta utile totale di 84,89 m2 si trova al piano dell'edificio e consiste in: ingresso, corridoio, tre camere da letto, bagno, wc, ripostiglio, cucina con soggiorno e soggiorno con accesso alla terrazza coperta di 16,03 m2. All'appartamento appartiene un posto auto. PREZZO: 244.692 € ALTRO DISPONIBILE NELL'EDIFICIO PIANO TERRA Appartamento S1 di superficie netta utile totale di 88,89 m2 si trova al piano terra dell'edificio e consiste in: ingresso, corridoio, tre camere da letto, bagno, wc, ripostiglio, cucina con soggiorno e soggiorno con accesso alla terrazza coperta. All'appartamento appartiene un posto auto e giardino di 51,23 m2. PREZZO: 248.892 € Appartamento S2 di superficie netta utile totale di 90,23 m2 si trova al piano terra dell'edificio e consiste in: ingresso, corridoio, tre camere da letto, bagno, wc, cucina con soggiorno e soggiorno con accesso alla terrazza coperta di 8,60 m2. All'appartamento appartiene un posto auto e giardino di 131 m2. PREZZO: 252.644 € PRIMO PIANO Appartamento S4 di superficie netta utile totale di 76,55 m2 si trova al piano dell'edificio e consiste in: ingresso, corridoio, tre camere da letto, wc, bagno, cucina con soggiorno e soggiorno con accesso alla terrazza coperta di 7,32 m2. All'appartamento appartiene un posto auto. PREZZO: 214.340 €
ID: 1123784