Appartamento - VODICE - 250.667 EUR
| Posizione | VODICE, Sebenico-Dalmazia |
| Prezzo € | 250.667 |
| Superficie | 74 m2 |
| Numero di camere | 3 |
| Bagni | 1 |
| Vicino alla spiaggia | Si |
| Distanza dal mare | 0 m |
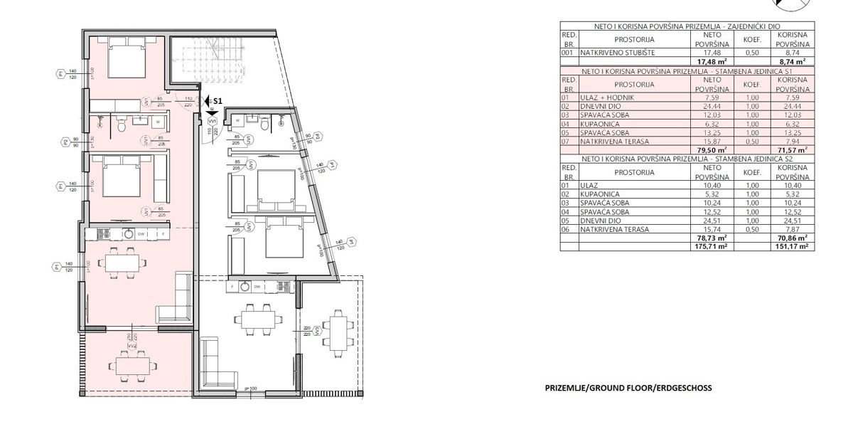
Vodice - in vendita appartamenti in nuova costruzione. L'edificio con un totale di 6 unità abitative ha tre piani: piano terra + primo piano + secondo piano. Ogni piano contiene due appartamenti. L'edificio dal design moderno è attualmente in costruzione con materiali di qualità e la data prevista per il completamento e il contemporaneo trasferimento è l'estate 2026. Gli appartamenti vengono venduti con la formula chiavi in mano. Sono orientati a est-sudest e si trovano in una posizione tranquilla, a circa 750 m dal centro e dalla spiaggia più vicina. L'acquirente non paga l'imposta sulla compravendita immobiliare. L'APPARTAMENTO S1 si trova al piano terra dell'edificio e ha una superficie netta abitabile totale di 71,57 m2. È composto da ingresso, corridoio, due camere da letto, bagno, cucina con sala da pranzo, soggiorno e terrazza di 15,87 m2. All'appartamento appartiene un posto auto e un giardino di 130 m2. PREZZO: 250.667,00 € (IVA inclusa nel prezzo dell'immobile) ALTRE DISPONIBILITÀ: S2 - PIANO TERRA - 73,86 m2 = 248.466,00 € RISERVATO S3 - PRIMO PIANO - 73,86 m2 = 236.352,00 € S4 - PRIMO PIANO - 73,05 m2 = 233.760,00 € S5 - VENDUTO S6 - VENDUTO
ID: 1206021