Appartamento - VODICE - 284.164 EUR
| Posizione | VODICE, Sebenico-Dalmazia |
| Prezzo € | 284.164 |
| Superficie | 74 m2 |
| Numero di camere | 3 |
| Bagni | 1 |
| Distanza dal mare | 0 m |
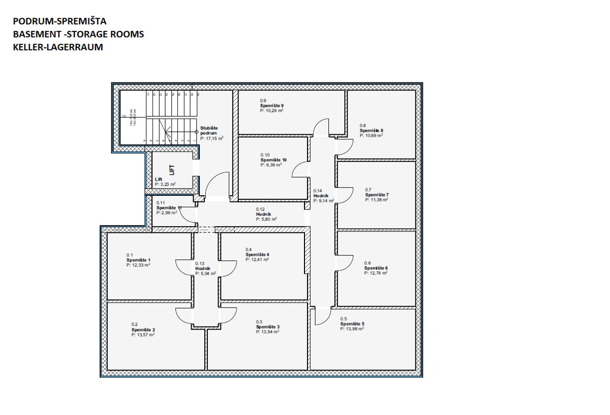
Vodice - in vendita appartamenti in edificio di design moderno. L'edificio con un totale di 10 appartamenti è composto da 4 piani: seminterrato + piano terra + primo piano + secondo piano. L'edificio viene costruito con materiali moderni e di alta qualità e sarà dotato secondo gli ultimi standard: facciata in polistirolo, infissi in PVC colore antracite, persiane con motori elettrici, pavimenti in pietra, sanitari da bagno moderni, riscaldamento a pavimento, climatizzatori inverter in tutte le stanze e nel soggiorno.... L'edificio dispone di ascensore. Ad ogni appartamento appartiene una cantina situata nel seminterrato dell'edificio e un posto auto. Gli appartamenti al piano terra hanno un piccolo giardino, mentre gli appartamenti al primo e secondo piano godranno di vista mare. È possibile acquistare un posto auto aggiuntivo al prezzo di 7.500,00 €. L'inizio previsto dei lavori è all'inizio del 2025 e la conclusione nell'estate del 2026. L'edificio si trova in una zona tranquilla, la spiaggia più vicina dista circa 700 m e il centro di Vodice 750 m. L'acquirente non paga l'imposta sulla compravendita immobiliare. S1 appartamento al piano terra con superficie totale di 74,78 m2 composto da ingresso, wc/lavanderia, corridoio, bagno, due camere da letto, cucina con sala da pranzo e soggiorno e terrazza parzialmente coperta di 19,71 m2. All'appartamento appartiene una porzione di giardino, una cantina nel seminterrato e un posto auto. PREZZO: 284.164,00 € (IVA inclusa nel prezzo dell'appartamento). ALTRO DISPONIBILE NELL'EDIFICIO PIANO TERRA: S2 appartamento con superficie totale di 84,25 m2 composto da ingresso, wc/lavanderia, corridoio, bagno, due camere da letto, cucina con sala da pranzo e soggiorno e terrazza coperta di 17,41 m2. All'appartamento appartiene una porzione di giardino, una cantina nel seminterrato e un posto auto. PREZZO: 320.150,00 € (IVA inclusa nel prezzo dell'appartamento) S3 appartamento con superficie totale di 84,20 m2 composto da ingresso, wc/lavanderia, bagno, corridoio, due camere da letto, cucina con sala da pranzo e soggiorno e terrazza coperta di 15,91 m2. All'appartamento appartiene una porzione di giardino, una cantina nel seminterrato e un posto auto. PREZZO: 336.800,00 € (IVA inclusa nel prezzo dell'appartamento). S4 appartamento con superficie totale di 83,73 m2 composto da ingresso, corridoio, wc/lavanderia, bagno, due camere da letto, cucina con sala da pranzo e soggiorno e terrazza coperta di 16,73 m2. All'appartamento appartiene una cantina nel seminterrato e un posto auto. PREZZO: 334.920,00 € (IVA inclusa nel prezzo dell'appartamento). PRIMO PIANO S5 appartamento al primo piano con superficie totale di 120,89 m2 composto da ingresso, corridoio, wc/lavanderia, due camere da letto, bagno 1, camera da letto con bagno 2, cucina con sala da pranzo e soggiorno e terrazza coperta di 16,90 m2. All'appartamento appartiene una cantina nel seminterrato e un posto coperto. PREZZO: 507.738,00 € (IVA inclusa nel prezzo dell'appartamento). S6 appartamento al primo piano con superficie totale di 93,76 m2 composto da ingresso, bagno, ripostiglio, lavanderia, corridoio, bagno 2, due camere da letto, cucina con sala da pranzo e soggiorno, terrazza coperta di 15,84 m2. All'appartamento appartiene una cantina nel seminterrato e un posto auto. PREZZO: 393.792,00 € (IVA inclusa nel prezzo dell'appartamento). S7 appartamento al primo piano con superficie totale di 125,48 m2 composto da ingresso, corridoio, lavanderia, bagno 1, due camere da letto, camera da letto con bagno privato 2, cucina con sala da pranzo e soggiorno, terrazza coperta di 21,52 m2. All'appartamento appartiene una cantina nel seminterrato e un posto auto. PREZZO: 527.016,00 € (IVA inclusa nel prezzo dell'appartamento). SECONDO PIANO S8 appartamento al secondo piano con superficie totale di 117,72 m2 composto da ingresso, lavanderia/ripostiglio, bagno 1, corridoio, due camere da letto, camera da letto con bagno 2, cucina con sala da pranzo e soggiorno e terrazza coperta di 14,17 m2. All'appartamento appartiene una cantina nel seminterrato dell'edificio e un posto auto. PREZZO: 529.740,00 € (IVA inclusa nel prezzo dell'appartamento). S9 appartamento al secondo piano con superficie totale di 93,76 m2 composto da ingresso, bagno, ripostiglio, lavanderia, bagno 2, corridoio, due camere da letto, cucina con sala da pranzo e soggiorno e terrazza coperta di 12,55 m2. All'appartamento appartiene una cantina nel seminterrato e un posto auto. PREZZO: 421.920,00 € (IVA inclusa nel prezzo dell'appartamento). S10 appartamento al secondo piano con superficie totale di 125,50 m2 composto da ingresso, corridoio, lavanderia, bagno 1, due camere da letto, camera da letto con bagno privato 2, cucina con sala da pranzo e soggiorno, terrazza coperta di 17,20 m2. All'appartamento appartiene una cantina nel seminterrato e un posto auto. PREZZO: 564.750,00 € (IVA inclusa nel prezzo dell'appartamento).
ID: 1223539