Tutti tipi
Case
Appartamenti
Terreni
Uffici
Provincia
...
Istria
Quarnaro
Spalato-Dalmazia-Sud
Ragusa
Sebenico-Dalmazia
Zara-Dalmazia-Nord
Zagabria
Bjelovarsko-bilogorska
Brodsko-posavska
Karlovac
Koprivniško-križevska
Krapinsko-zagorska
Ličko-senjska
Međimurje
Osijek-Baranja
Požeško-slavonska
Sisačko-moslavačka
Varaždinska
Virovitiško-podravska
Vukovarsko-srijemska
Zagabria-Dintorni
Comune
...
MURTER
SKRADIN
ŠIBENIK
CIVLJANE
VODICE
DRNIŠ
ROGOZNICA
UNEŠIĆ
RUŽIĆ
KNIN
PIROVAC
PRIMOŠTEN
PROMINA
TRIBUNJ
BISKUPIJA
CittÃ
...
ČISTA MALA
ČISTA VELIKA
GAĆELEZI
PRVIĆ LUKA
PRVIĆ ŠEPURINE
SRIMA
VODICE
Tipo
Tutti
Case
Appartamenti
Terreni
Uffici
Prezzo
da
a
Distanza dal mare (m)
da
a
Criterio
Più recenti
Meno recenti
Più costosi
Meno costosi
Cerca
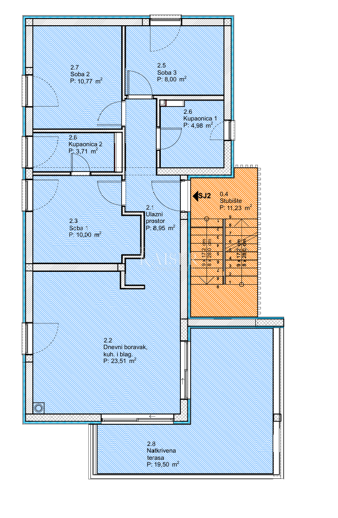
Appartamento - VODICE - 330.000 EUR
Previous
Next
Posizione
VODICE, Sebenico-Dalmazia
Prezzo €
330.000
Superficie
69 m
2
Numero di camere
4
Bagni
4
Distanza dal mare
300 m
ID: 1245081
Invia messaggio
Nome
E-mail
Tel.
3 + 8 =
Messaggio
Invia
Annulla