Appartamento - VODICE - 356.152 EUR
| Posizione | VODICE, Sebenico-Dalmazia |
| Prezzo € | 356.152 |
| Superficie | 96 m2 |
| Numero di camere | 3 |
| Bagni | 2 |
| Vicino alla spiaggia | Si |
| Distanza dal mare | 0 m |
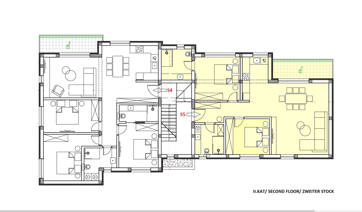
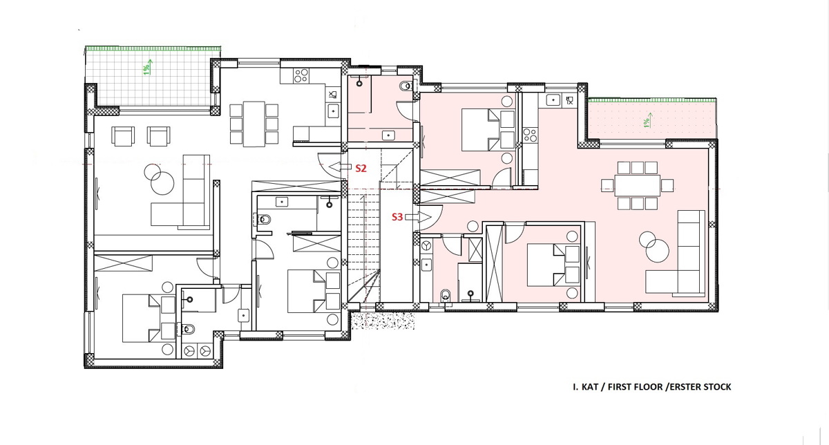
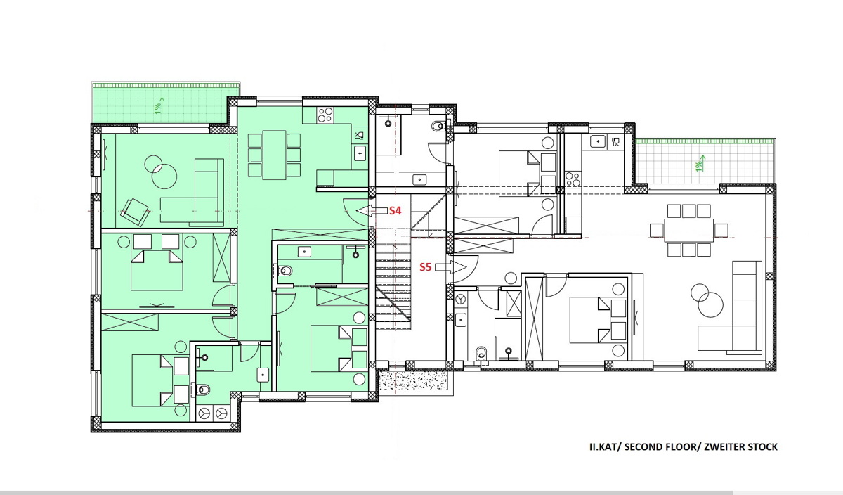
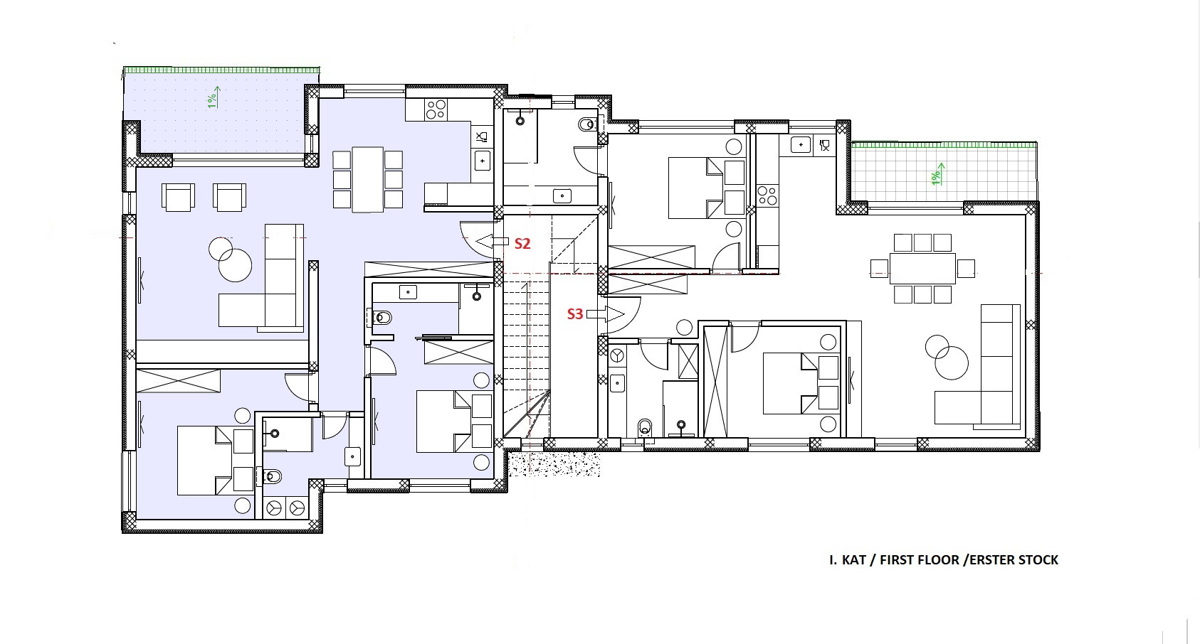
Vodice - in vendita appartamenti in nuova costruzione in una posizione attrattiva. L’edificio dal design moderno dispone di un totale di 5 unità abitative e complessivamente 4 piani: piano terra+1° piano+2° piano+terrazza sul tetto. Attualmente è in costruzione con materiali di alta qualità e sarà dotato secondo gli ultimi standard edilizi. Tra le dotazioni si evidenziano: facciata in EPS da 10 cm, infissi esterni in PVC bianchi marca Gaelan, tapparelle con alzate elettriche, vetro triplo, pareti scorrevoli, ceramica, laminato nelle camere, riscaldamento a pavimento elettrico nei bagni, cucina e soggiorno, climatizzatori nelle camere da letto e nel soggiorno, collegamento per la ricarica di veicoli elettrici nel garage, collegamento elettrico e idrico sulle terrazze sul tetto e scarico per cucina estiva, preinstallazione per pannelli solari sulle pergole (a richiesta - con supplemento) Il termine previsto per il completamento dei lavori è l’estate 2026. Gli appartamenti si trovano in una delle migliori posizioni vicino alla spiaggia recentemente rinnovata e godono di vista mare. La spiaggia dista circa 400 m. L’appartamento S2 al primo piano ha una superficie utile totale di 96,26 m2 ed è composto da ingresso, corridoio, bagno, camera da letto, camera da letto con bagno privato, cucina, sala da pranzo e soggiorno, loggia di 3,64 m2 e terrazza coperta di 6,74 m2. All’appartamento appartiene un ripostiglio al piano terra di 2,45 m2 e due posti auto esterni nel cortile dell’edificio. PREZZO: 356.162,00 € ALTRO DISPONIBILE NELL’EDIFICIO: PIANO TERRA S1 VENDUTO 1° PIANO L’appartamento S3 al primo piano ha una superficie utile totale di 105,69 m2 ed è composto da ingresso, bagno, camera da letto, camera da letto con bagno privato, cucina, sala da pranzo e soggiorno e terrazza coperta di 7,52 m2. All’appartamento appartiene un ripostiglio al piano terra di 3,37 m2, un garage di 15,73 m2 e un giardino di 121 m2. PREZZO: 391.053,00 € 2° PIANO L’appartamento S4 ha una superficie utile totale di 126,58 m2 ed è composto da ingresso, disimpegno, bagno, due camere da letto, camera da letto con bagno privato, cucina con sala da pranzo e soggiorno e terrazza coperta di 6,73 m2. All’appartamento appartiene anche una terrazza sul tetto di 102,17 m2 (netto 25,54 m2), un ripostiglio al piano terra di 2,69 m2 e un garage di 15,73 m2. PREZZO: 468.346,00 € L’appartamento S5 ha una superficie utile totale di 119,77 m2 ed è composto da ingresso, disimpegno, bagno, camera da letto, camera da letto con bagno privato, cucina con sala da pranzo e soggiorno e terrazza coperta di 7,52 m2. All’appartamento appartiene anche una terrazza sul tetto di 94,91 m2 (netto 25,36 m2), un ripostiglio al piano terra di 6,05 m2 e un garage di 15,73 m2. PREZZO: 443.149,00 €
ID: 1243555