Appartamento - VODICE - 358.000 EUR
| Posizione | VODICE, Sebenico-Dalmazia |
| Prezzo € | 358.000 |
| Superficie | 96 m2 |
| Numero di camere | 2 |
| Superficie terrestre | 140 m2 |
| Bagni | 3 |
| Distanza dal mare | 650 m |
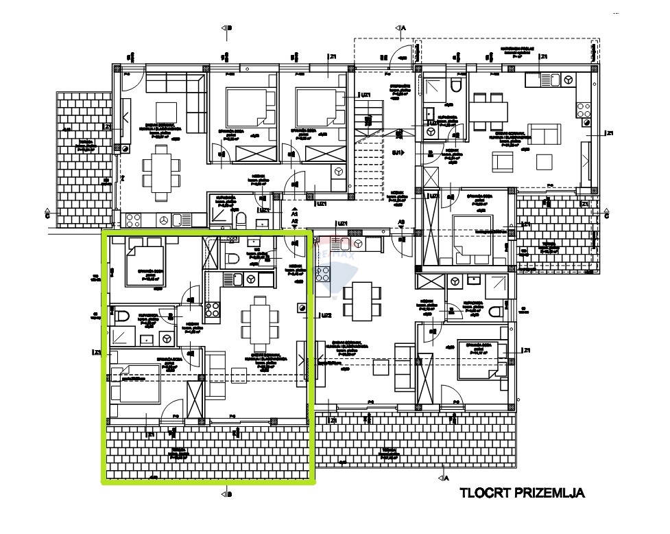
L'appartamento A2 si trova al piano terra di un edificio residenziale con dieci appartamenti. L'appartamento ha una superficie di 96,76 m² ed è composto da ingresso, soggiorno, cucina e sala da pranzo, bagno/WC, ulteriore bagno, due camere da letto, una terrazza di 18,55 m², un giardino di 140 m² e un posto auto annesso. L'edificio sarà pronto per essere abitato a fine giugno 2026. La distanza dall'edificio al mare e alla spiaggia è di circa 650 metri. Per ulteriori informazioni e per visitare l'immobile, si prega di contattare l'agenzia. Descrizione della zona Vodice è un centro turistico, noto per la sua vivacità e la varietà dell'offerta turistica. Si trova sulla costa, in un'ampia baia, 11 km a nord-ovest di Sebenico, capoluogo della Contea di Sebenico e Tenin. Vodice oggi conta 10.000 abitanti ed è un luogo ideale per vivere e trascorrere le vacanze, dove ognuno troverà qualcosa per sé.
ID: 1227696