Appartamento - VODICE - 390.208 EUR
| Posizione | VODICE, Sebenico-Dalmazia |
| Prezzo € | 390.208 |
| Superficie | 121 m2 |
| Numero di camere | 4 |
| Bagni | 1 |
| Distanza dal mare | 0 m |
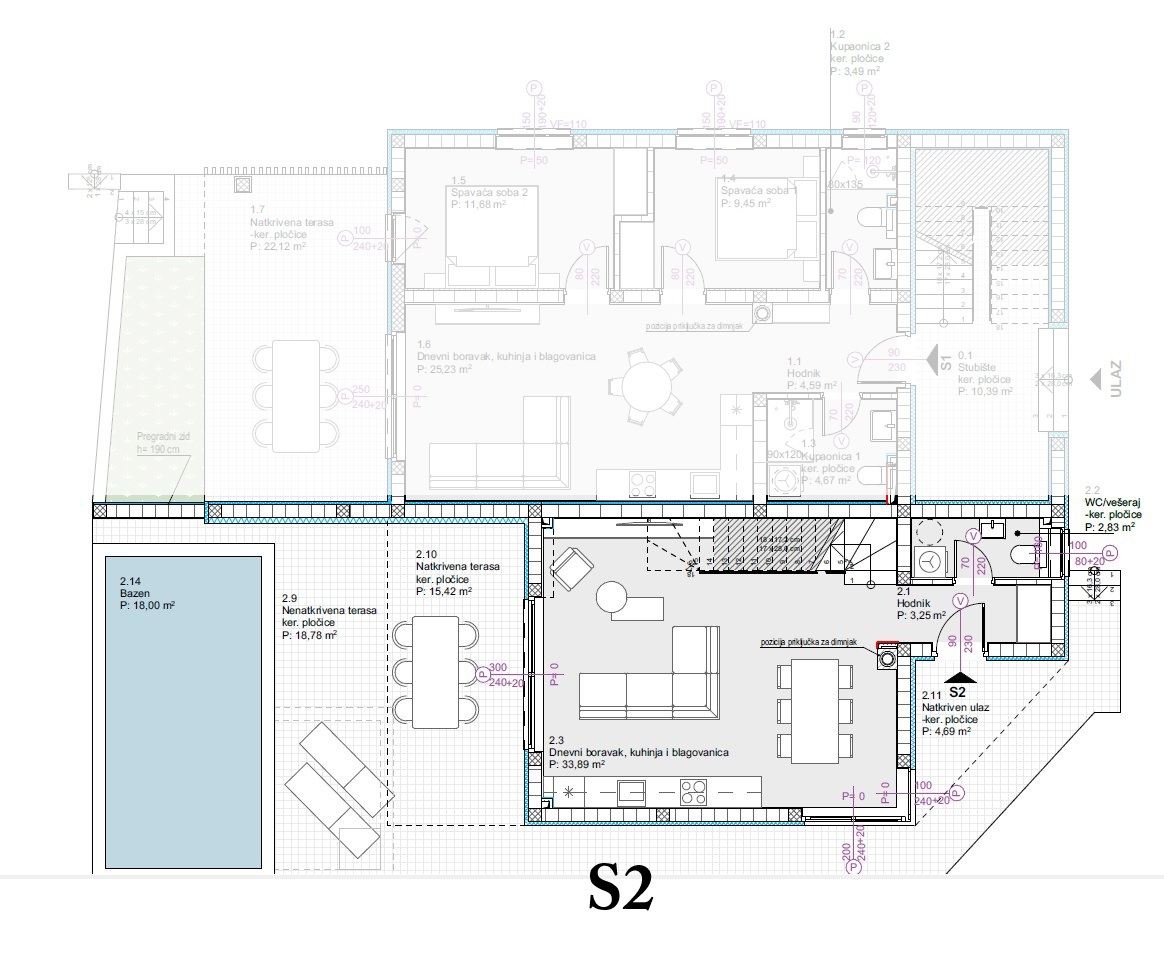
APPARTAMENTO S2 – LUSSUOSO APPARTAMENTO SU DUE LIVELLI CON PISCINA PRIVATA E GIARDINO – NUOVA COSTRUZIONE VODICE In vendita appartamento S2 all’interno di una moderna nuova costruzione con un totale di quattro unità abitative. L’edificio si trova in una zona tranquilla a Vodice, a 1200 m dalla spiaggia Vruje e a 1500 m dal centro città. L’edificio è attualmente in fase di grezzo, con consegna prevista per la primavera 2027. L’appartamento S2 è un ampio appartamento su due livelli con una superficie netta utile totale di 121,94 m2 (con coefficienti inclusi), e comprende piscina privata, giardino e due posti auto. Gli acquirenti sono esenti dal pagamento della provvigione d’agenzia. DISTRIBUZIONE: Piano terra: - ingresso coperto - corridoio - WC/lavanderia - cucina e sala da pranzo - soggiorno con uscita sulla terrazza coperta - terrazza scoperta - piscina privata - giardino - scala interna per il piano superiore Primo piano: - corridoio - camera da letto 1 con uscita sulla terrazza coperta - camera da letto 2 - bagno - camera da letto 3 con uscita sulla terrazza coperta L’appartamento è progettato per una vita familiare confortevole o come proprietà di lusso per le vacanze con un alto livello di privacy e funzionalità. ARREDI E SPECIFICHE: - infissi in alluminio e PVC - aria condizionata in tutti gli ambienti - riscaldamento a pavimento nei bagni e nel soggiorno - piastrelle e sanitari di alta qualità - piscina privata con impianto completo - facciata in polistirolo ad alta efficienza energetica - due posti auto inclusi nel prezzo - vista mare Appartamento S1 – Piano terra – 75,37 m2 I 241.184,00€ Appartamento bilocale al piano terra con due bagni, soggiorno, cucina con sala da pranzo, terrazza coperta e giardino privato (28,98 m2). Un posto auto incluso nel prezzo. Appartamento S2 – Su due livelli con piscina – 121,94 m2 I 390.208,00€ Appartamento su due piani (piano terra e primo piano) con tre camere da letto, due bagni, WC aggiuntivo, piscina privata, giardino e due terrazze coperte. Due posti auto inclusi. Appartamento S3 – Primo piano – 70,82 m2 I 233.706,00€ VENDUTO Appartamento S4 – Attico – 129,57 m2 I 414.592,00€ L’appartamento occupa l’intero ultimo piano dell’edificio. Dispone di tre camere da letto, due bagni, WC aggiuntivo, ampio soggiorno con cucina e sala da pranzo e tre terrazze coperte con vista aperta sul mare e sulla città. Due posti auto inclusi nel prezzo. POSIZIONE – VODICE Vodice è una delle località più ambite per vivere e trascorrere le vacanze sull’Adriatico, con infrastrutture sviluppate, spiagge pulite e una varietà di servizi per tutte le età. La vicinanza a Šibenik, al Parco Nazionale Krka e alle isole Kornati, oltre a un buon collegamento stradale, aumenta ulteriormente il valore di questa proprietà.
ID: 1281672