Appartamento - VODICE - 391.053 EUR
| Posizione | VODICE, Sebenico-Dalmazia |
| Prezzo € | 391.053 |
| Superficie | 105 m2 |
| Numero di camere | 3 |
| Bagni | 2 |
| Vicino alla spiaggia | Si |
| Distanza dal mare | 0 m |
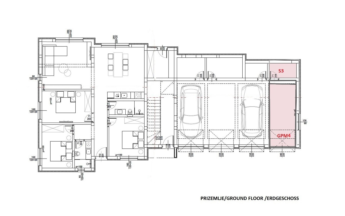
In una delle location più richieste a Vodice, a pochi minuti a piedi dal mare, si trova un moderno edificio residenziale con un totale di soltanto 5 unità abitative – che garantisce ai futuri proprietari privacy, tranquillità ed esclusività. L’edificio si sviluppa su quattro piani (piano terra + primo piano + secondo piano + terrazza sul tetto), e ogni appartamento è progettato con particolare attenzione alla funzionalità, al comfort e al massimo sfruttamento della luce naturale. L’edificio è costruito secondo i più alti standard di edilizia moderna, utilizzando materiali collaudati e di qualità che garantiscono durata, efficienza energetica e un soggiorno confortevole durante tutto l’anno. Particolare attenzione è stata posta sulla qualità e sul comfort abitativo: - Facciata in EPS da 10 cm – eccellente isolamento termico ed efficienza energetica - Infissi esterni in PVC (bianchi) – profilo Gealan di alta qualità - Vetro triplo per un ulteriore isolamento acustico e termico - Tapparelle con alzate elettriche - Grandi pareti scorrevoli che permettono un’abbondanza di luce naturale - Ceramiche di qualità dal design moderno - Laminato nelle camere da letto - Riscaldamento a pavimento elettrico nei bagni, cucina e soggiorno - Climatizzatori nelle camere da letto e nel soggiorno - Collegamento in garage per la ricarica di veicoli elettrici (EV) - Sulle terrazze sul tetto: collegamento elettrico e idrico e scarico per cucina estiva - Preinstallazione per pannelli solari sulle pergole (con supplemento) Gli appartamenti si trovano nelle immediate vicinanze della spiaggia recentemente ristrutturata (circa 400 m) e offrono una meravigliosa vista sul mare, rendendo questa proprietà estremamente attraente sia per uso abitativo che per affitto turistico. L’appartamento S3 al primo piano ha una superficie utile totale di 105,69 m² ed è composto da ingresso, bagno, camera da letto, camera da letto con bagno privato, cucina, sala da pranzo e soggiorno, oltre a una terrazza coperta di 7,52 m². All’appartamento appartengono una cantina al piano terra di 3,37 m², un garage di 15,73 m² e un giardino di 121 m². PREZZO: 391.053,00 € ALTRO DISPONIBILE NELL’EDIFICIO: PIANO TERRA S1 VENDUTO PRIMO PIANO L’appartamento S2 al primo piano ha una superficie utile totale di 96,26 m² ed è composto da ingresso, corridoio, bagno, camera da letto, camera da letto con bagno privato, cucina, sala da pranzo e soggiorno, loggia di 3,64 m² e terrazza coperta di 6,74 m². All’appartamento appartengono una cantina al piano terra di 2,45 m² e due posti auto esterni nel cortile dell’edificio. PREZZO: 356.162,00 € SECONDO PIANO L’appartamento S4 ha una superficie utile totale di 126,58 m² ed è composto da ingresso, disimpegno, bagno, due camere da letto, camera da letto con bagno privato, cucina con sala da pranzo e soggiorno, oltre a una terrazza coperta di 6,73 m². All’appartamento appartiene anche una terrazza sul tetto di 102,17 m² (netto 25,54 m²), una cantina al piano terra di 2,69 m² e un garage di 15,73 m². PREZZO: 468.346,00 € L’appartamento S5 ha una superficie utile totale di 119,77 m² ed è composto da ingresso, disimpegno, bagno, camera da letto, camera da letto con bagno privato, cucina con sala da pranzo e soggiorno, oltre a una terrazza coperta di 7,52 m². All’appartamento appartiene anche una terrazza sul tetto di 94,91 m² (netto 25,36 m²), una cantina al piano terra di 6,05 m² e un garage di 15,73 m². PREZZO: 443.149,00 €
ID: 1264498