Appartamento - VODICE - 414.592 EUR
| Posizione | VODICE, Sebenico-Dalmazia |
| Prezzo € | 414.592 |
| Superficie | 129 m2 |
| Numero di camere | 4 |
| Bagni | 2 |
| Distanza dal mare | 0 m |
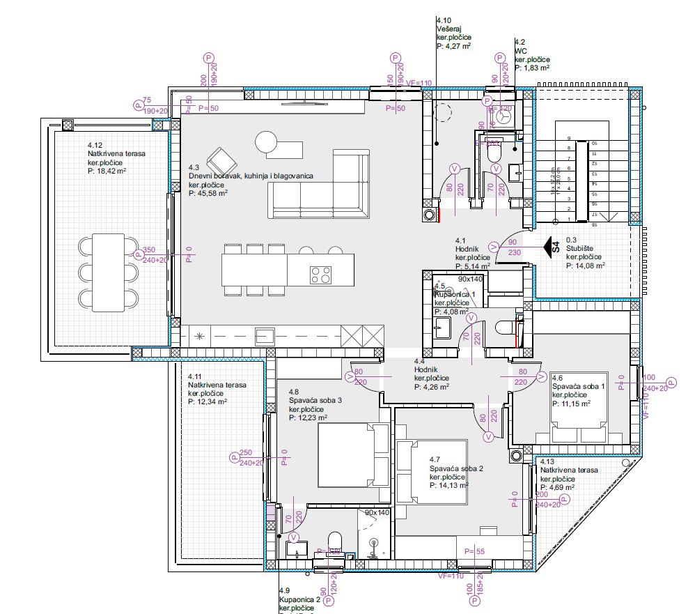
APPARTAMENTO S4 – PENTHOUSE CON TRE TERRAZZE E VISTA PANORAMICA – VODICE L’appartamento S4 occupa l’intero ultimo piano dell’edificio – un attico che offre esclusività, privacy e una delle migliori viste sul mare e sulla città di Vodice. L’edificio si trova in una posizione tranquilla, a 1200 m dal mare. L’edificio è attualmente in fase di grezzo avanzato, con prevista consegna in primavera 2027. Gli acquirenti sono esenti dal pagamento della provvigione agenziale. L’appartamento ha una superficie netta utile di 129,57 m2 ed è composto da: - ampio soggiorno open-space, cucina e sala da pranzo con accesso a una grande terrazza coperta con vista panoramica - camera da letto 1 - camera da letto 2 con accesso alla propria terrazza coperta - camera da letto 3 con accesso alla propria terrazza coperta con vista sul mare - due bagni - bagno di servizio - lavanderia - due posti auto Dotazioni e specifiche: - Infissi in PVC - Climatizzazione in tutti gli ambienti - Riscaldamento a pavimento nei bagni - Piastrelle e sanitari di alta qualità - Facciata in polistirene per l’efficienza energetica Questo appartamento offre il massimo del lusso e della privacy, perfetto per acquirenti che cercano una proprietà esclusiva in una posizione di prestigio. ALTRE DISPONIBILITÀ : Appartamento S1 – Piano terra – 75,37 m2 I 241.184,00€ Appartamento bilocale al piano terra con due bagni, soggiorno, cucina con sala da pranzo, terrazza coperta e giardino privato (28,98 m2). Nel prezzo è incluso un posto auto. Appartamento S2 – Duplex con piscina – 121,94 m2 I 390.208,00€ Appartamento su due livelli (piano terra e primo piano) con tre camere da letto, due bagni, WC aggiuntivo, piscina privata, giardino e due terrazze coperte. Inclusi due posti auto. Appartamento S3 – Primo piano – 70,82 m2 I 233.706,00€ VENDUTO Appartamento S4 – Penthouse – 129,57 m2 I 414.592,00€ L’appartamento occupa l’intero ultimo piano dell’edificio. Dispone di tre camere da letto, due bagni, un WC aggiuntivo, un ampio soggiorno con cucina e sala da pranzo e tre terrazze coperte con vista aperta sul mare e sulla città. Nel prezzo sono inclusi due posti auto. Informazioni su Vodice: Vodice è una delle località turistiche più ambite sulla costa croata, nota per il mare pulito, lunghe passeggiate, spiagge curate e una ricca offerta di ristoranti, caffè e attività per tutte le età. La vicinanza a Šibenik, ai parchi nazionali e l’ottima connessione stradale rendono questa posizione estremamente attraente per vivere e investire.
ID: 1282101