Appartamento - VODICE - 564.750 EUR
| Posizione | VODICE, Sebenico-Dalmazia |
| Prezzo € | 564.750 |
| Superficie | 125 m2 |
| Numero di camere | 4 |
| Bagni | 2 |
| Distanza dal mare | 0 m |
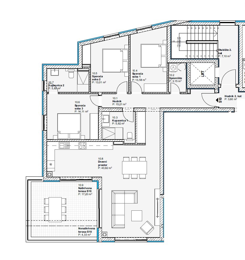
VODICE – APPARTAMENTO S10, SECONDO PIANO – NUOVA COSTRUZIONE MODERNA CON ASCENSORE, VISTA MARE – 125,50 m2 In vendita l’appartamento S10 al secondo piano di un moderno edificio residenziale con ascensore, situato in una posizione tranquilla e attraente a Vodice, a soli 700 m dalla spiaggia e 750 m dal centro città. L’edificio dal design contemporaneo comprende un totale di 10 appartamenti (seminterrato + piano terra + 1° piano + 2° piano) ed è costruito con materiali di qualità e secondo i più recenti standard edilizi. L’inizio previsto dei lavori è all’inizio del 2025, con completamento previsto per l’estate 2026. L’appartamento S10 al II piano, con una superficie totale di 125,50 m2, è composto da: ingresso, corridoio, lavanderia, bagno 1, due camere da letto, camera da letto con bagno privato 2, cucina con zona pranzo e soggiorno, oltre a una terrazza coperta di 17,20 m2. All’appartamento appartengono una cantina nel seminterrato e un posto auto. PREZZO: 564.750,00 € (IVA inclusa nel prezzo dell’appartamento). DOTAZIONI E STANDARD: - facciata in polistirene espanso - infissi in PVC colore antracite - tapparelle con motori elettrici - rivestimenti pavimentali in pietra - sanitari moderni per il bagno - riscaldamento a pavimento - condizionatori inverter in tutte le stanze e nel soggiorno - ascensore nell’edificio TUTTI GLI APPARTAMENTI DISPONIBILI NELL’EDIFICIO: PIANO TERRA: Appartamento S1 con superficie totale di 74,78 m2 composto da ingresso, WC/lavanderia, corridoio, bagno, due camere da letto, cucina con zona pranzo e soggiorno, oltre a terrazza parzialmente coperta di 19,71 m2. All’appartamento appartiene una porzione di giardino, una cantina nel seminterrato e un posto auto. PREZZO: 291.642,00 € (IVA inclusa nel prezzo dell’appartamento). Appartamento S2 con superficie totale di 84,25 m2 composto da ingresso, WC/lavanderia, corridoio, bagno, due camere da letto, cucina con zona pranzo e soggiorno, oltre a terrazza coperta di 17,41 m2. All’appartamento appartiene una porzione di giardino, una cantina nel seminterrato e un posto auto. PREZZO: 345.425,00 € (IVA inclusa nel prezzo dell’appartamento). Appartamento S3 con superficie totale di 84,20 m2 composto da ingresso, WC/lavanderia, bagno, corridoio, due camere da letto, cucina con zona pranzo e soggiorno, oltre a terrazza coperta di 15,91 m2. All’appartamento appartiene una cantina nel seminterrato e un posto auto. PREZZO: 336.800,00 € (IVA inclusa nel prezzo dell’appartamento). Appartamento S4 con superficie totale di 83,73 m2 composto da ingresso, corridoio, WC/lavanderia, bagno, due camere da letto, cucina con zona pranzo e soggiorno, oltre a terrazza coperta di 16,73 m2. All’appartamento appartiene una cantina nel seminterrato e un posto auto. PREZZO: 334.920,00 € (IVA inclusa nel prezzo dell’appartamento). 1° PIANO: Appartamento S5 al 1° piano con superficie totale di 120,89 m2 composto da ingresso, corridoio, WC/lavanderia, due camere da letto, bagno 1, camera da letto con bagno privato 2, cucina con zona pranzo e soggiorno, oltre a terrazza coperta di 16,90 m2. All’appartamento appartiene una cantina nel seminterrato e un posto auto coperto. PREZZO: 507.738,00 € (IVA inclusa nel prezzo dell’appartamento). Appartamento S6 – VENDUTO Appartamento S7 al 1° piano con superficie totale di 125,48 m2 composto da ingresso, corridoio, lavanderia, bagno 1, due camere da letto, camera da letto con bagno privato 2, cucina con zona pranzo e soggiorno, oltre a terrazza coperta di 21,52 m2. All’appartamento appartiene una cantina nel seminterrato e un posto auto. PREZZO: 527.016,00 € (IVA inclusa nel prezzo dell’appartamento). 2° PIANO: Appartamento S8 - VENDUTO Appartamento S9 al 2° piano con superficie totale di 93,76 m2 composto da ingresso, bagno 1, ripostiglio, lavanderia, bagno 2, corridoio, due camere da letto, cucina con zona pranzo e soggiorno, oltre a terrazza coperta di 12,55 m2. All’appartamento appartiene una cantina nel seminterrato e un posto auto. PREZZO: 421.920,00 € (IVA inclusa nel prezzo dell’appartamento). Appartamento S10 al 2° piano con superficie totale di 125,50 m2 composto da ingresso, corridoio, lavanderia, bagno 1, due camere da letto, camera da letto con bagno privato 2, cucina con zona pranzo e soggiorno, oltre a terrazza coperta di 17,20 m2. All’appartamento appartiene una cantina nel seminterrato e un posto auto. PREZZO: 564.750,00 € (IVA inclusa nel prezzo dell’appartamento).
ID: 1263509