Casa - VODICE - 540.000 EUR
| Posizione | VODICE, Sebenico-Dalmazia |
| Prezzo € | 540.000 |
| Superficie | 168 m2 |
| Numero di camere | 4 |
| Bagni | 3 |
| Distanza dal mare | 0 m |
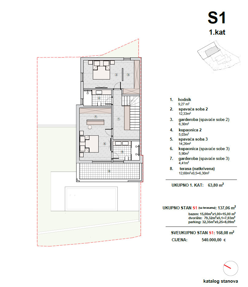
Vodice-**NUOVA COSTRUZIONE** in vendita case a schiera di lusso con piscine e vista mare. La casa di architettura moderna sarà costruita con materiali di qualità e sarà dotata secondo gli ultimi standard costruttivi. Tra le dotazioni si evidenziano: - facciata in polistirolo, - infissi in PVC, - tapparelle con alzate elettriche, - porte finestre scorrevoli a sollevamento, - rivestimenti ceramici a pavimento in bagni, cucina e soggiorno, - pavimenti in laminato nelle camere da letto, - sanitari moderni per bagno, - scaldabagno elettrico per acqua calda, - climatizzatore INVERTER per riscaldamento/raffreddamento nelle camere da letto e soggiorno, - riscaldamento a pavimento con pompa di calore, - sistema di videosorveglianza... Ogni casa ha una piscina, una parte di giardino adeguata e due posti auto. L'inizio previsto dei lavori è settembre 2025 e il completamento previsto è estate 2026. L’immobile si trova in una zona tranquilla da cui si gode una splendida vista sul mare e dintorni, a 650 m dalla spiaggia e 1100 m dal centro di Vodice. Casa S1 di superficie netta totale di 137,06 m2 si compone di due piani: piano terra + piano superiore. Il piano terra di superficie netta 73,26 m2 è composto da ingresso, bagno, camera da letto, cucina con sala da pranzo e soggiorno open space con uscita su terrazza coperta di 14,20 m2 a cui segue la piscina di 15 m2. Tramite scala interna si accede al piano superiore dell’appartamento di superficie netta 63,80 m2 che è composto da corridoio, camera da letto con guardaroba, bagno e camera matrimoniale con guardaroba e bagno privato e terrazza coperta di 12,60 m2. All’appartamento appartengono anche cortile/giardino di 79,32 m2 e posto auto di 32,35 m2. PREZZO: 540.000,00€ ALTRO DISPONIBILE: Casa S2 di superficie netta totale 193,67 m2 si compone di tre piani: piano terra + piano superiore + terrazza sul tetto. Il piano terra di superficie netta 75,04 m2 è composto da ingresso, bagno, camera da letto, cucina con sala da pranzo e soggiorno open space con uscita su terrazza coperta di 13,18 m2 a cui segue la piscina di 15 m2. Tramite scala interna si accede al piano superiore dell’appartamento di superficie netta 67,55 m2 che è composto da corridoio, camera da letto, bagno e camera matrimoniale con guardaroba e bagno privato e terrazza coperta di 12,60 m2. Tramite scala interna si accede all’ultimo piano che è composto da corridoio e terrazza sul tetto di superficie netta totale 21,63 m2 che comprende terrazza coperta e scoperta. All’appartamento appartengono anche cortile/giardino di 50,93 m2 e posto auto di 37,43 m2. PREZZO: 635.000,00€ Casa S3 di superficie netta utile totale di 204,04 m2 si compone di tre piani: piano terra, piano superiore e terrazza sul tetto con casetta sul tetto. Il piano terra di superficie netta 78,17 m2 è composto da ingresso, locale deposito, bagno, camera da letto, cucina con sala da pranzo e soggiorno open space con uscita su terrazza coperta di 12,14 m2 a cui segue piscina di 15 m2 e giardino. Tramite scala interna si accede al piano superiore della casa che è composto da corridoio, bagno, camera da letto con uscita su terrazza scoperta di 4,60 m2 e camera matrimoniale con bagno e uscita su terrazza coperta di 10,67 m2. Tramite scala interna si accede al secondo piano della casa che è composto da corridoio, terrazza coperta di 9,70 m2 e terrazza scoperta di 66,30 m2. Alla casa appartengono giardino/cortile di 87,31 m2 e posto auto di 34,56 m2. PREZZO: 660.000,00€
ID: 1255428