Casa - VODICE - 550.000 EUR
| Posizione | VODICE, Sebenico-Dalmazia | 
| Prezzo € | 550.000 | 
| Superficie | 157 m2 | 
| Numero di camere | 5 | 
| Superficie terrestre | 200 m2 | 
| Bagni | 3 | 
| Distanza dal mare | 0 m | 
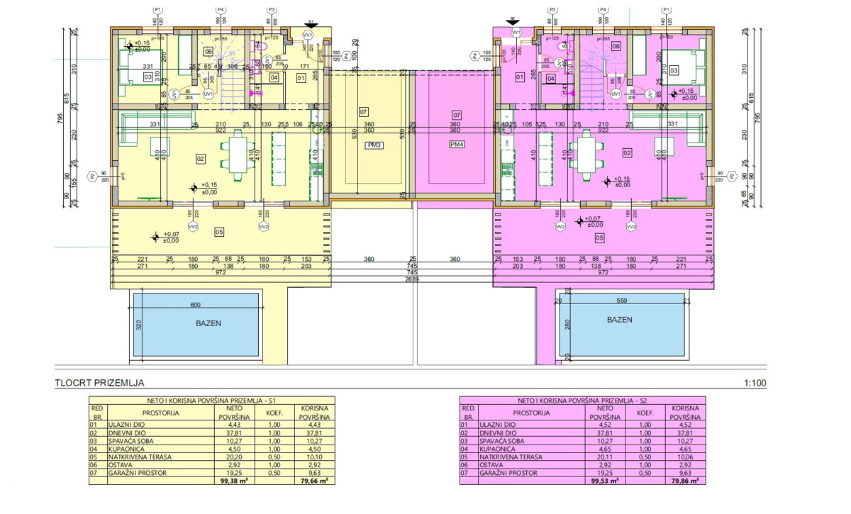
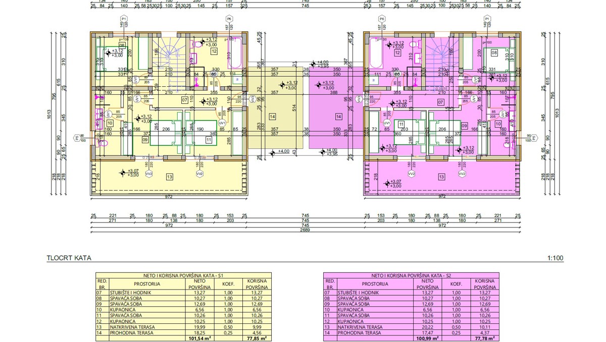
Vodice-**NUOVA COSTRUZIONE** in vendita casa S2 con garage e piscina in una posizione tranquilla. La casa ha una superficie utile totale abitabile di 157,64m2 ed è composta da due piani: piano terra + primo piano. Il piano terra con una superficie netta utile abitabile di 79,86m2 è composto da ingresso, camera da letto, bagno, ripostiglio e zona giorno con uscita su una terrazza coperta di 20,11m2 e garage di 19,25m2. Il primo piano della casa ha una superficie netta utile abitabile di 77,78m2 ed è composto da scala e corridoio, bagno, camera da letto matrimoniale con bagno privato, due camere da letto, terrazza coperta di 20,22m2 e terrazza praticabile sopra il garage di 17,47m2. Casa di aspetto moderno attualmente in costruzione con materiali di qualità e sarà dotata secondo gli ultimi standard edilizi. Il termine previsto per il completamento è l’estate 2026. Si trova in una posizione tranquilla a circa 650 m dal centro del paese e a 800 m dalla spiaggia più vicina.
ID: 1209382
 
         
                             
                             
                             
                             
                             
                             
                             
                             
                             
                             
                             
                             
                             
                             
                             
                             
                             
                             
                             
                             
                             
                             
                             
                             
                             
                             
                             
                             
                             
                             
                             
                            