Casa - VODICE - 635.000 EUR
| Posizione | VODICE, Sebenico-Dalmazia |
| Prezzo € | 635.000 |
| Superficie | 193 m2 |
| Numero di camere | 5 |
| Bagni | 3 |
| Vicino alla spiaggia | Si |
| Distanza dal mare | 0 m |
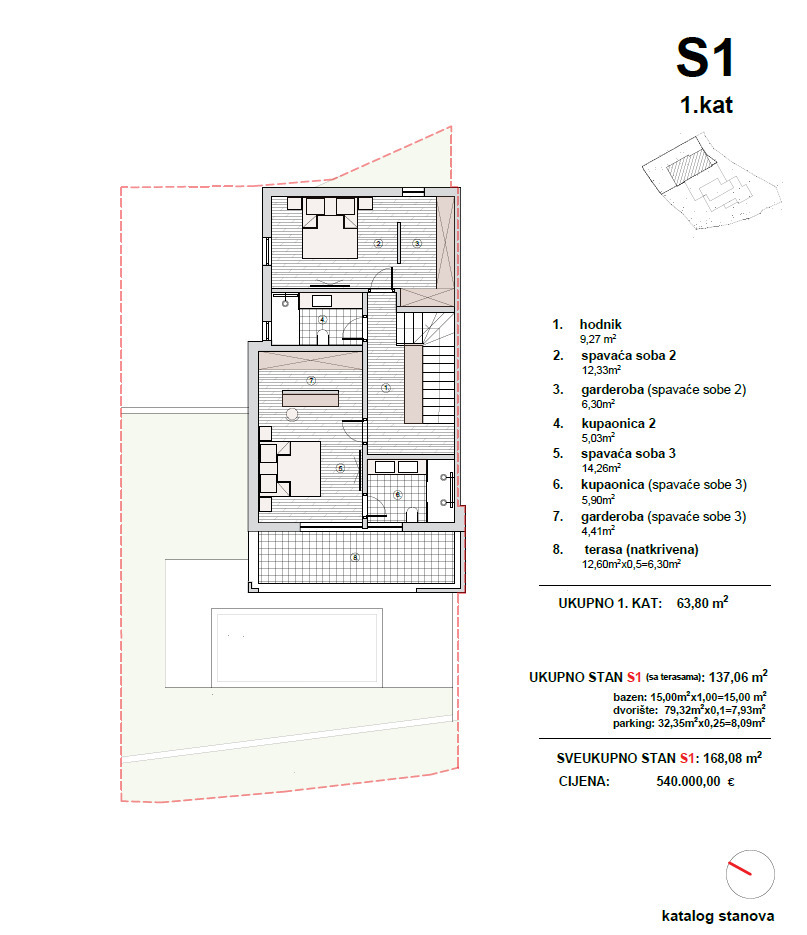
Vodice-**NUOVA COSTRUZIONE** in vendita case a schiera di lusso con piscine, terrazze sul tetto e vista mare. La casa di architettura moderna sarà costruita con materiali di qualità e sarà dotata secondo gli ultimi standard costruttivi. Tra le dotazioni si evidenziano: - facciata in polistirene espanso, - infissi in PVC, - tapparelle con alzate elettriche, - porte scorrevoli alzanti, - rivestimenti in ceramica nei bagni, cucina e soggiorno, - laminati nelle camere da letto, - sanitari moderni per il bagno, - scaldabagno elettrico per acqua calda, - climatizzatore INVERTER per riscaldamento/raffreddamento nelle camere da letto e nel soggiorno, - riscaldamento a pavimento con pompa di calore, - videosorveglianza... Ogni casa dispone di piscina, giardino di pertinenza e due posti auto. L'inizio previsto dei lavori è settembre 2025 e il completamento previsto è giugno 2026. L’immobile si trova in una zona tranquilla con una splendida vista sul mare e sui dintorni, a 650 m dalla spiaggia e a 1100 m dal centro di Vodice. L’appartamento S2 con una superficie netta totale di 193,67 m2 è composto da tre piani: piano terra + piano superiore + terrazza sul tetto. Il piano terra con superficie netta di 75,04 m2 comprende ingresso, bagno, camera da letto, cucina con sala da pranzo e soggiorno open space con uscita sulla terrazza coperta di 13,18 m2, a cui segue la piscina di 15 m2. Tramite scala interna si accede al piano superiore dell’appartamento con superficie netta di 67,55 m2 composto da corridoio, camera da letto, bagno e camera matrimoniale con guardaroba e bagno privato, oltre a terrazza coperta di 12,60 m2. Tramite scala interna si accede all’ultimo piano che comprende corridoio e terrazza sul tetto con superficie netta totale di 21,63 m2, composta da terrazza coperta e scoperta. All’appartamento appartengono anche cortile/giardino di 50,93 m2 e posto auto di 37,43 m2. PREZZO: 635.000,00 € ALTRE DISPONIBILITÀ: La casa S1 con superficie netta totale di 137,06 m2 è composta da due piani: piano terra + piano superiore. Il piano terra con superficie netta di 73,26 m2 comprende ingresso, bagno, camera da letto, cucina con sala da pranzo e soggiorno open space con uscita sulla terrazza coperta di 14,20 m2, a cui segue la piscina di 15 m2. Tramite scala interna si accede al piano superiore con superficie netta di 63,80 m2 composto da corridoio, camera da letto con guardaroba, bagno e camera matrimoniale con guardaroba e bagno privato, oltre a terrazza coperta di 12,60 m2. All’appartamento appartengono anche cortile/giardino di 79,32 m2 e posto auto di 32,35 m2. PREZZO: 540.000,00 € La casa S3 con superficie netta utile totale di 204,04 m2 è composta da tre piani: piano terra, piano superiore e terrazza sul tetto con casetta sul tetto. Il piano terra con superficie netta di 78,17 m2 comprende ingresso, ripostiglio, bagno, camera da letto, cucina con sala da pranzo e soggiorno open space con uscita sulla terrazza coperta di 12,14 m2, a cui seguono piscina di 15 m2 e giardino. Tramite scala interna si accede al piano superiore della casa composto da corridoio, bagno, camera da letto con uscita su terrazza scoperta di 4,60 m2 e camera matrimoniale con bagno e uscita su terrazza coperta di 10,67 m2. Tramite scala interna si accede al secondo piano della casa composto da corridoio, terrazza coperta di 9,70 m2 e terrazza scoperta di 66,30 m2. Alla casa appartengono giardino/cortile di 87,31 m2 e posto auto di 34,56 m2. PREZZO: 660.000,00 €
ID: 1196867