Terreno - VODICE - 730.000 EUR
| Posizione | VODICE, Sebenico-Dalmazia |
| Prezzo € | 730.000 |
| Superficie | 748 m2 |
| Distanza dal mare | 0 m |
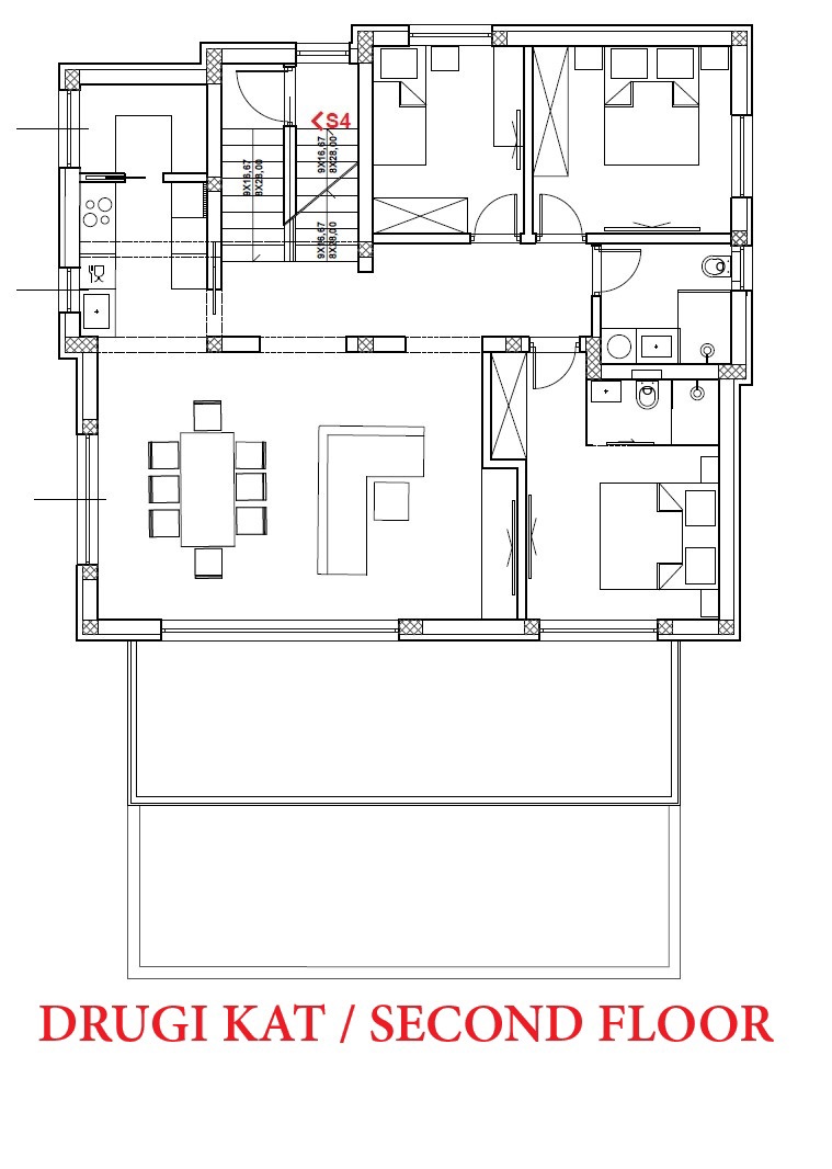
In vendita terreno edificabile di alta qualità di superficie 748 m2 in una delle migliori posizioni a Vodice. Opportunità ideale per investitori – il terreno dispone di permesso di costruzione definitivo per la realizzazione di un edificio moderno con 4 unità abitative e terrazza sul tetto, e i allacciamenti alle utenze sono direttamente sul terreno (acqua, elettricità), il che accelera notevolmente l'inizio dei lavori di costruzione. POSIZIONE - a soli 200 m dalla spiaggia recentemente ristrutturata Vodice – Tribunj - 1000 m dal centro di Vodice - zona tranquilla, micro posizione eccellente - vicinanza alla spiaggia, al lungomare e a tutti i servizi PROGETTO – COSTRUZIONE APPROVATA L’edificio è previsto su 4 piani: PIANO TERRA - Appartamento S1 – monolocale, 44,95 m2 - Appartamento S2 – bilocale, 64,45 m2 PRIMO PIANO - Appartamento S3 – trilocale, 102,23 m2 SECONDO PIANO - Appartamento S4 – trilocale, 104,07 m2 PISOLO SUL TETTO - ampia terrazza sul tetto di 126,66 m2, di pertinenza dell’appartamento S4 - ideale per jacuzzi, solarium o zona lounge INOLTRE - 6 posti auto - allacciamenti alle utenze sul terreno (pronto per costruzione) - progetto architettonico moderno, ideale per appartamenti di lusso
ID: 1242149