Appartamento - VODNJAN - 252.200 EUR
| Posizione | VODNJAN, Istria |
| Prezzo € | 252.200 |
| Superficie | 66 m2 |
| Numero di camere | 3 |
| Bagni | 2 |
| Vicino ai trasporti | Si |
| Distanza dal mare | 300 m |
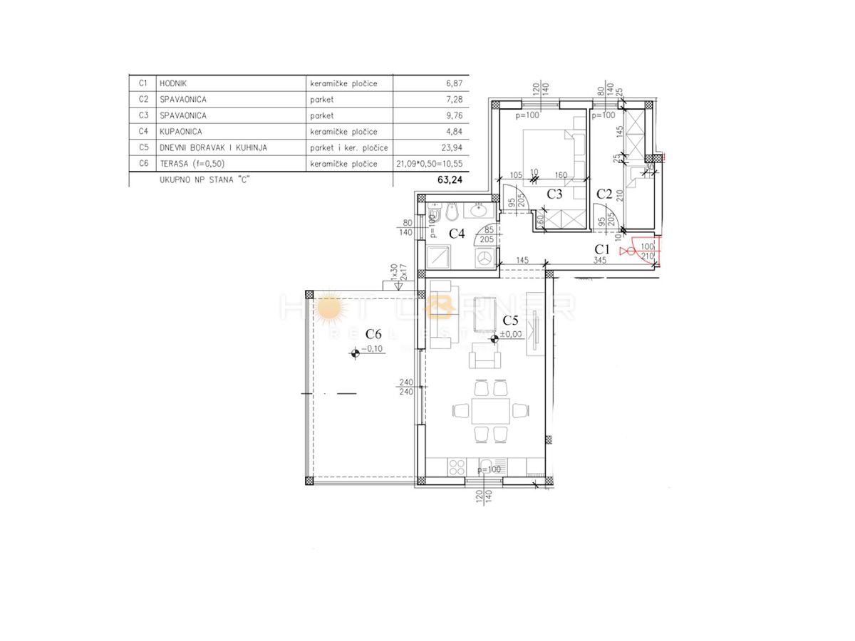
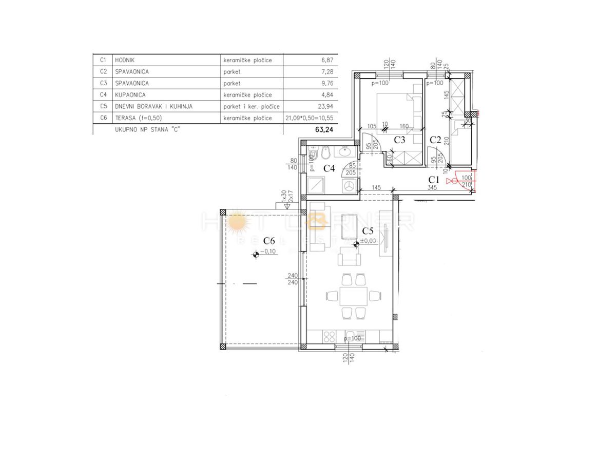
In vendita un bellissimo appartamento moderno in una nuova costruzione a Barbariga, Vodnjan, superficie 63,52 m2, al piano terra di un piccolo edificio residenziale con solo 6 appartamenti. L'edificio si trova a soli 300 m dal mare e dalla spiaggia. L'appartamento è situato al piano terra ed è composto da ingresso (5,79 mq), ripostiglio sottoscala (4,64 mq, superficie netta ridotta 2,32 mq), 2 camere da letto (10,88 mq e 11,11 mq), soggiorno con cucina e sala da pranzo (24,80 m2), bagno (5,57 m2) e terrazza (6,10 m2, superficie netta ridotta 3,05 m2). Un totale di 63,52 m2, La costruzione di alta qualità e il design moderno consentiranno una piacevole vita familiare, ma impressioneranno sicuramente i turisti in cerca di una vacanza. Posizione eccellente, vicino al mare e alle spiagge, nonché a tutti i servizi e le attrazioni. L'appartamento sarà dotato di porte d'ingresso antieffrazione, carpenteria esterna in PVC con persiane, condizionatori inverter, laminato nelle camere da letto e nel soggiorno e piastrelle in ceramica di alta qualità nelle altre stanze dell'appartamento. Citofono, prese ed interruttori, antenna, servizi igienici, boiler, doccia. Le uscite sui terrazzi saranno realizzate con pareti scorrevoli. Facciata Demit sull'edificio. L'appartamento dispone inoltre di 1 posto auto esterno. Tutti gli appartamenti in offerta: PIANTERRENO: Appartamento A al piano terra = 63,52 mq + posto auto esterno = 66,50 mq = 266.600,00 euro Appartamento B al piano terra = 67,88 mq + posto auto esterno = 71,01 mq = 284.040,00 euro Appartamento C al piano terra = 63,24 mq + posto auto esterno = 66,37 mq = 265.480,00 euro 1° PIANO: Appartamento D al 1° piano = 59,79 mq + posto auto esterno = 62,92 mq = 251.680,00 euro Appartamento E al 1° piano = 67,88 mq + posto auto esterno = 71,01 mq = 284.040,00 euro Appartamento F al 1° piano = 71,81 mq + posto auto esterno = 74,94 mq = 299.760,00 euro Proprietà in ordine 1/1, senza gravami. Al prezzo d'acquisto concordato l'acquirente paga la commissione d'agenzia concordata secondo le condizioni contrattuali e gli onorari della società. Contatto: Decano +385 99 369 9053
ID: 1129267