Appartamento - VOLOSKO - 750.000 EUR
| Posizione | VOLOSKO, OPATIJA, Quarnaro |
| Prezzo € | 750.000 |
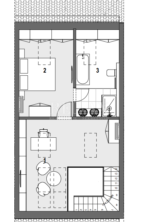
| Superficie | 104 m2 |
| Numero di camere | 3 |
| Bagni | 2 |
| Vicino ai trasporti | Si |
| Distanza dal mare | 20 m |
Questo bellissimo appartamento moderno a due piani in prima fila sul mare si trova a Volosko, Opatija. Questo confortevole appartamento viene venduto completamente arredato. L'appartamento è composto da un ingresso, una camera da letto, un bagno, una cucina open space con sala da pranzo e soggiorno da dove saliamo le scale fino all'alta mansarda dove arriviamo alla sala da dove andiamo alla camera con il bagno. Riscaldamento a pavimento, ceramiche italiane di qualità, mobili di qualità, completamente climatizzato. L'appartamento dispone di una parte di giardino in cortile e di un posto auto in garage, raggiungibile con l'ascensore dall'appartamento. Questa proprietà, a soli 20 m a piedi dalla spiaggia, è un investimento ideale per vivere e/o locazione turistica. Tutti i servizi necessari si trovano a 2 km.
ID: 917429