Ufficio - VOLOSKO - 266.400 EUR
| Posizione | VOLOSKO, OPATIJA, Quarnaro |
| Prezzo € | 266.400 |
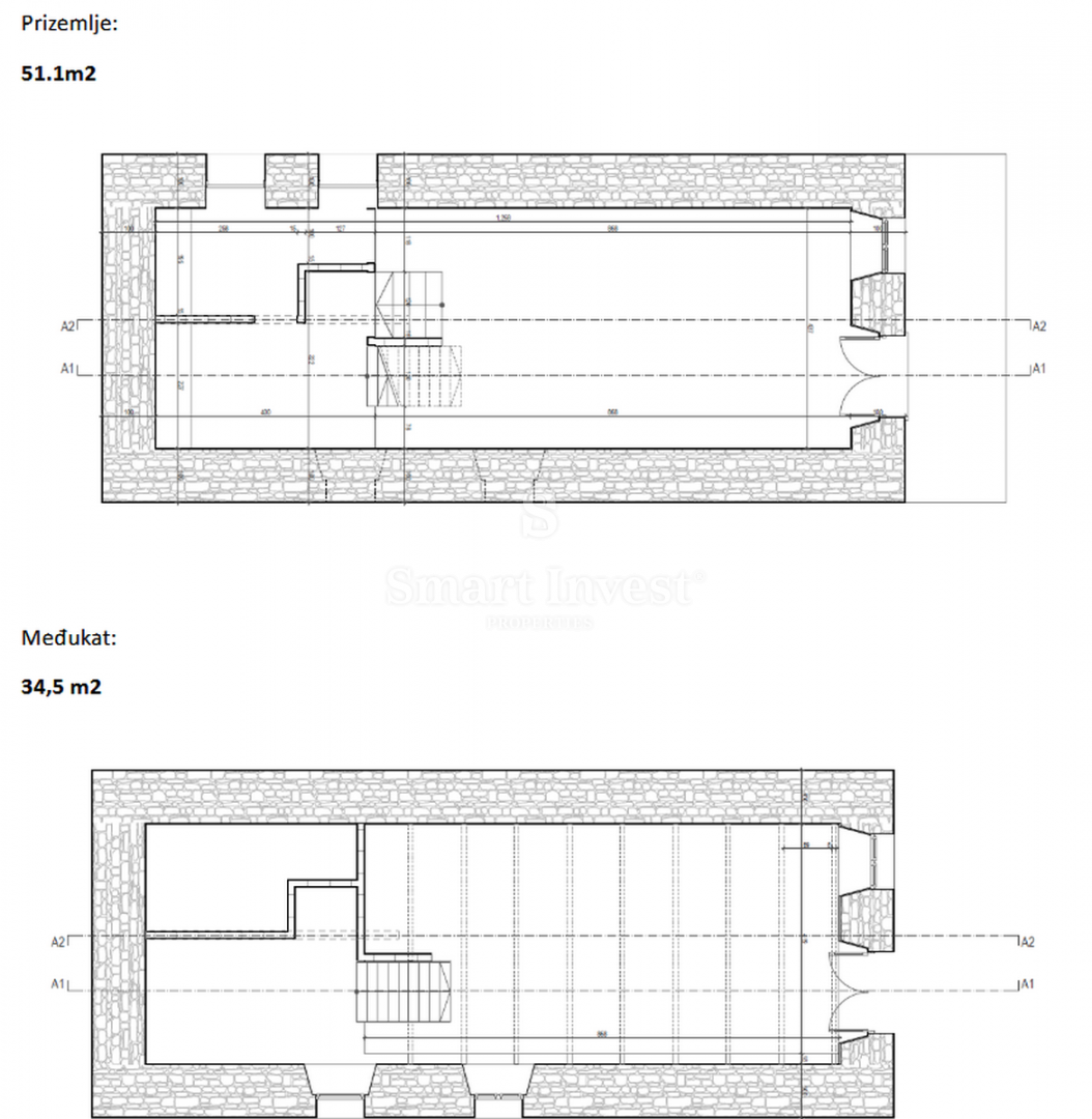
| Superficie | 85 m2 |
| Numero di camere | 3 |
| Bagni | 1 |
| Vicino ai trasporti | Si |
| Distanza dal mare | 200 m |
VOLOSKO, uno spazio commerciale sulla strada principale! In vendita uno spazio commerciale composto da un piano terra di 51,10 m² e un soppalco di 34,50 m². Si trova accanto alla strada principale, in una zona frequentata. È in fase di ristrutturazione completa, con nuovi impianti elettrici, idraulici e fognari, nuovi serramenti in alluminio e un nuovo soffitto con isolamento acustico. Il proprietario ha predisposto un progetto per 2 appartamenti (4+2) + un monolocale. L'edificio dispone di 2 ingressi indipendenti (dalla strada e dal corridoio) e allacciamenti elettrici, idrici e fognari separati per ogni ingresso. L'altezza è inferiore a 2,96 m e superiore a 1,56 m. Per ulteriori informazioni e per fissare un appuntamento per una visita, chiamare il numero: +385/99/320-0008
ID: 1186519