Terreno - VRBNIK - 170.000 EUR
| Posizione | VRBNIK, KRK, Quarnaro |
| Prezzo € | 170.000 |
| Superficie | 885 m2 |
| Vicino ai trasporti | Si |
| Distanza dal mare | 0 m |
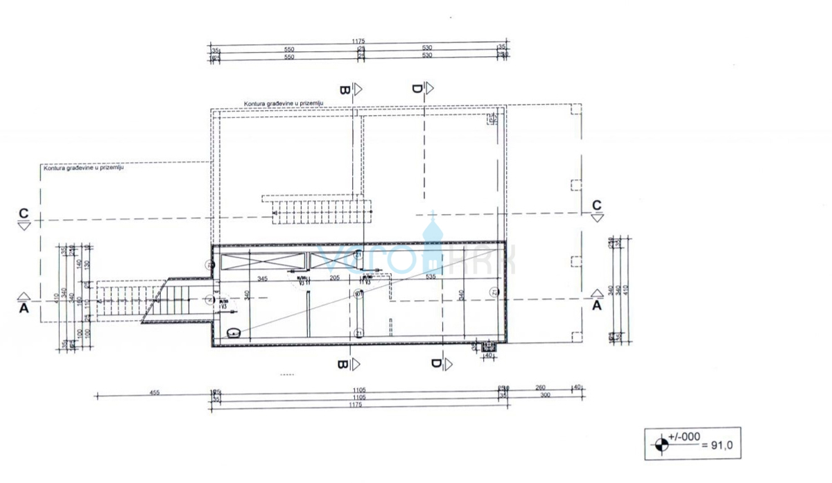
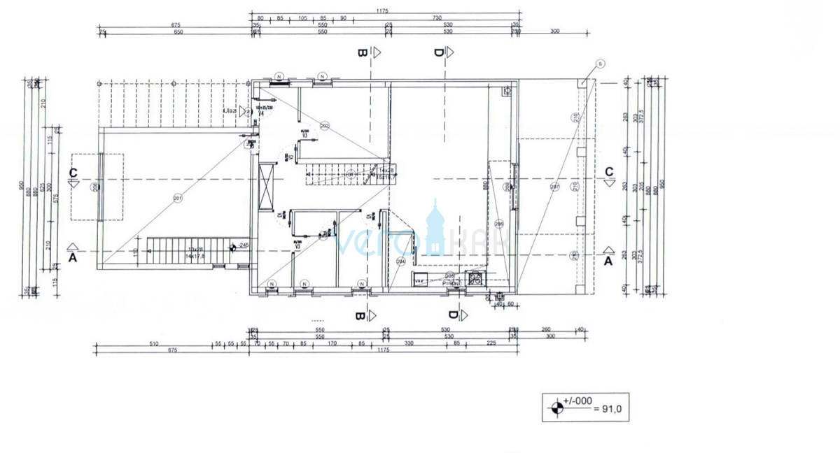
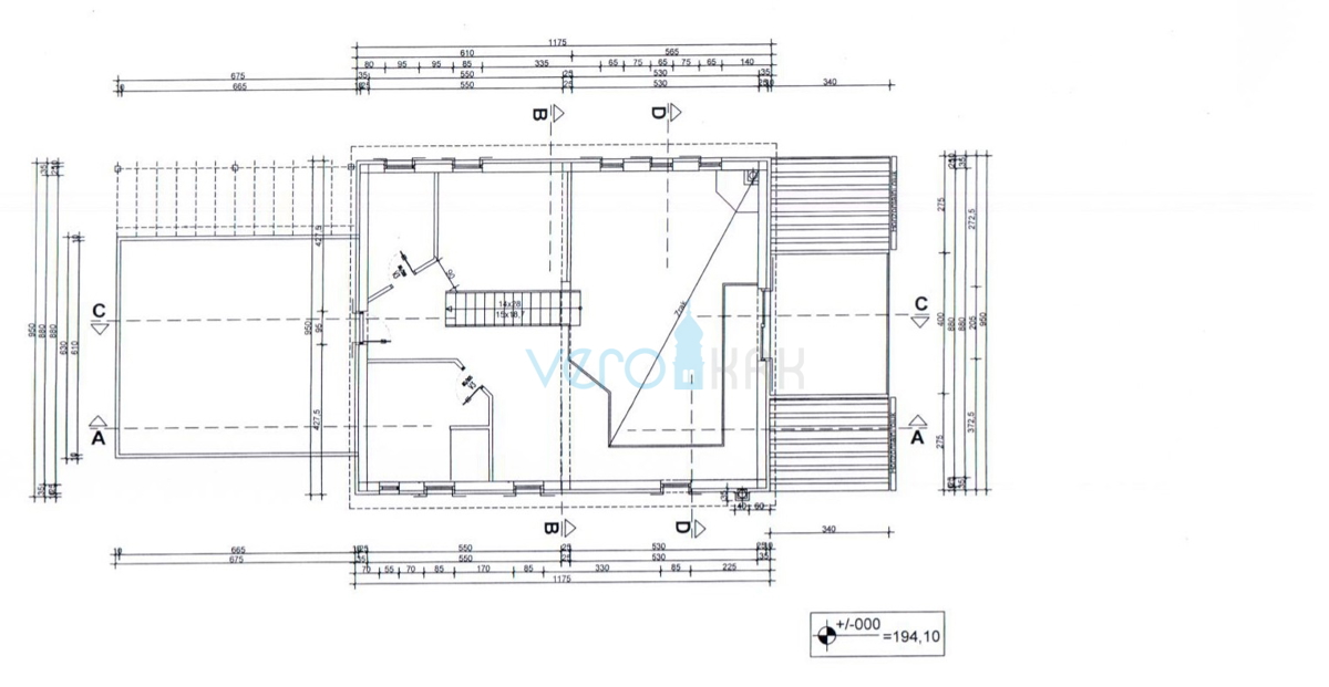
Vrbnik, periferia, terreno edificabile in posizione tranquilla. In vendita terreno edificabile con permesso di costruzione per la costruzione di una villa unifamiliare indipendente, superficie netta totale di 311,40 m2 con garage. (PT+P+P1). Il terreno si trova in una zona tranquilla, circondata dal verde. L'elettricità è presente sul terreno, mentre l'acqua è nelle vicinanze. Il mare e la spiaggia distano 1300 m. Benvenuti alla visita!
ID: 1107037