Appartamento - ZADAR - 280.000 EUR
| Posizione | ZADAR, Zara-Dalmazia-Nord |
| Prezzo € | 280.000 |
| Superficie | 80 m2 |
| Numero di camere | 2 |
| Superficie terrestre | 65 m2 |
| Bagni | 3 |
| Distanza dal mare | 0 m |
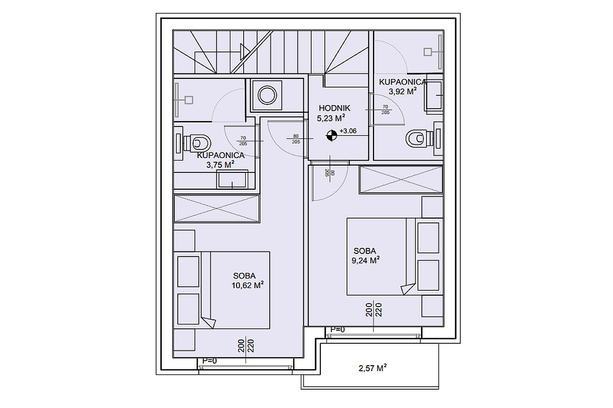
È in vendita un appartamento su due piani, posizionato in posizione privilegiata a soli 150 metri dal mare. L’appartamento è situato in un edificio residenziale più piccolo, con un totale di nove appartamenti, e si estende su due piani. Nel prezzo dell’appartamento sono inclusi un ampio giardino, un posto auto esterno, una terrazza coperta e una loggia. L’ingresso principale conduce al piano terra, dove si trovano aree comuni arredate secondo il concetto di open space e un bagno in comune. Una scala conduce al piano superiore, dove si trovano due camere da letto, una delle quali è dotata di bagno privato. Questo piano comprende anche una seconda camera da letto, un bagno in comune e una loggia con vista sul mare.
ID: 1161161