Appartamento - ZADAR - 342.000 EUR
| Posizione | ZADAR, Zara-Dalmazia-Nord |
| Prezzo € | 342.000 |
| Superficie | 85 m2 |
| Numero di camere | 2 |
| Superficie terrestre | 79 m2 |
| Bagni | 1 |
| Distanza dal mare | 0 m |
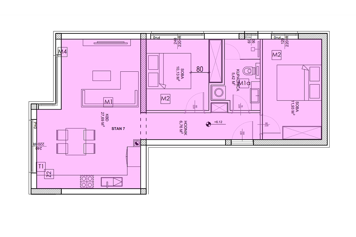
Un moderno appartamento con due camere da letto è in vendita in un edificio di nuova costruzione vicino a Zara. L’edificio con un totale di nove appartamenti si trova su un appezzamento di terreno situato su un terreno elevato con una leggera pendenza verso il mare, quindi quasi ogni appartamento ha una vista sul mare senza interferenze da altre proprietà. L’appartamento contrassegnato S7 si trova al secondo piano dell’edificio residenziale e ha una spaziosa terrazza panoramica e un posto auto esterno incluso nel prezzo. La terrazza dell’appartamento offre una vista sul mare e l’appartamento stesso è composto da due camere da letto, un bagno e un corridoio che collega queste stanze con la cucina, la sala da pranzo e il soggiorno. Una scala in comune conduce a una terrazza panoramica privata di 66 m2 ideale per socializzare con una jacuzzi e un pergolato. Contattaci per altri appartamenti disponibili nell’edificio.
ID: 1165674