Tutti tipi
Case
Appartamenti
Terreni
Uffici
Provincia
...
Istria
Quarnaro
Spalato-Dalmazia-Sud
Ragusa
Sebenico-Dalmazia
Zara-Dalmazia-Nord
Zagabria
Bjelovarsko-bilogorska
Brodsko-posavska
Karlovac
Koprivniško-križevska
Krapinsko-zagorska
Ličko-senjska
Međimurje
Osijek-Baranja
Požeško-slavonska
Sisačko-moslavačka
Varaždinska
Virovitiško-podravska
Vukovarsko-srijemska
Zagabria-Dintorni
Comune
...
ZADAR
PAŠMAN
STANKOVCI
BENKOVAC
BIBINJE
BIOGRAD NA MORU
PAG
DUGI OTOK
POLIČNIK
GRAČAC
SUKOŠAN
POLAČA
SVETI FILIP I JAKOV
PAKOŠTANE
GALOVAC
OBROVAC
JASENICE
RAŽANAC
UGLJAN
NIN
NOVIGRAD
POSEDARJE
PRIVLAKA
STARIGRAD
ZEMUNIK DONJI
ŠKABRNJE
VIR
VRSI
CittÃ
...
BABINDUB
BILI BRIG
BOKANJAC
BORIK
BRGULJE
BRODARICA
CRNO
CRVENE KUĆE
DIKLO
DIKLOVAC
GORNJI BRIG
IST
JAZINE
KOŽINO
MALI IŽ
MASLENICA
MASLINA
MOLAT
OLIB
PETRČANE
PETRIĆI
PLOVANIJA
POLUOTOK
PREMUDA
RAVA
RELJA
ROVANJSKA
SILBA
SMILJEVAC
STANOVI
VELI IŽ
VIDIKOVAC
VIŠNJIK
VOŠTARNICA
ZADAR
ŽMIRIĆ
Tipo
Tutti
Case
Appartamenti
Terreni
Uffici
Prezzo
da
a
Distanza dal mare (m)
da
a
Criterio
Più recenti
Meno recenti
Più costosi
Meno costosi
Cerca
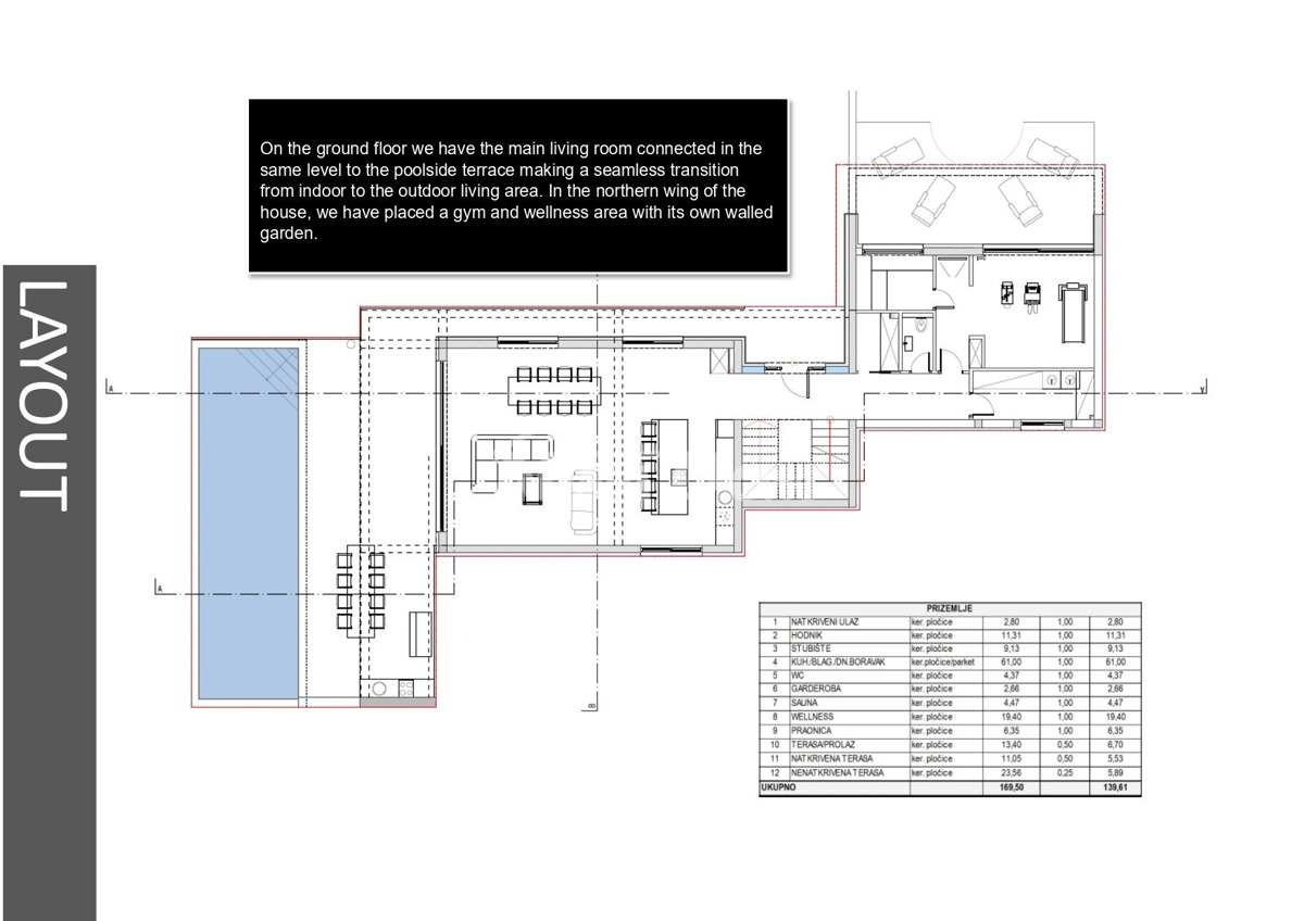
Casa - ZADAR - 2.500.000 EUR
Previous
Next
Posizione
ZADAR, Zara-Dalmazia-Nord
Prezzo €
2.500.000
Superficie
420 m
2
Numero di camere
4
Superficie terrestre
929 m
2
Bagni
4
Distanza dal mare
800 m
ID: 1003577
Invia messaggio
Nome
E-mail
Tel.
5 + 3 =
Messaggio
Invia
Annulla