Appartamenti ZAGREB Zagabria (696)












DONJI GRAD, ZAGREB, Zagabria
283.000 EUR
Appartamento spazioso e luminoso con due camere da letto vicino a Britanac
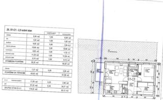
In vendita proponiamo un appartamento molto spazioso e luminoso di 78,19 m², situato al piano rialza...
Dettagli






