Appartamento - ZATON - 1.050.000 EUR
| Posizione | ZATON, NIN, Zara-Dalmazia-Nord |
| Prezzo € | 1.050.000 |
| Superficie | 175 m2 |
| Numero di camere | 4 |
| Bagni | 4 |
| Distanza dal mare | 50 m |
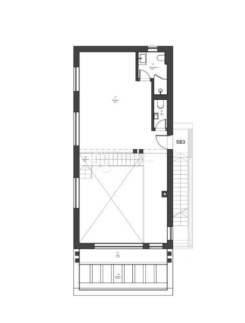
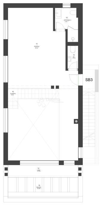
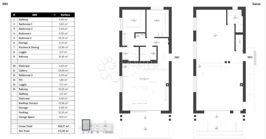
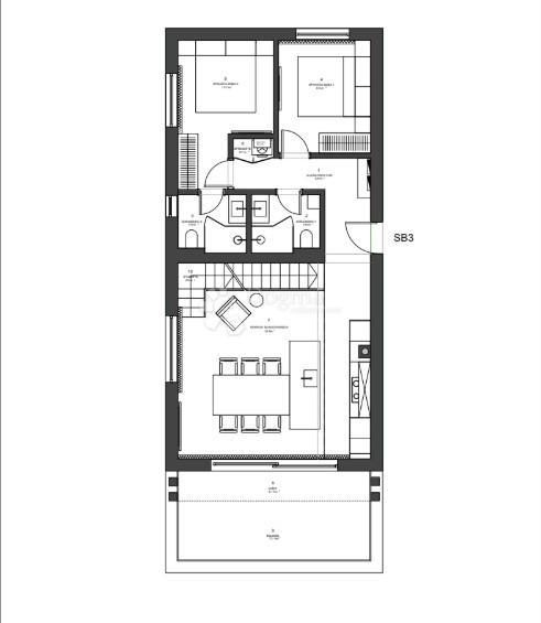
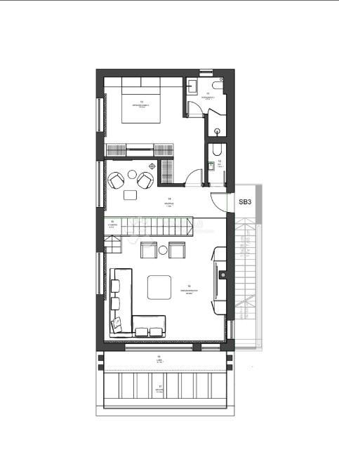
Nella cornice tranquilla di Zaton, questa residenza moderna con nove abitazioni unisce chiarezza architettonica e paesaggio mediterraneo. Ogni unità è progettata per essere luminosa, ariosa e in costante dialogo con l’ambiente circostante. L’attico SB3, disposto su due livelli e con una superficie netta di 175,36 m², offre un’esperienza abitativa unica. L’ampio soggiorno con cucina e zona pranzo (33,80 m²) si apre su una loggia (5,17 m²) e un balcone (10,16 m²). Due camere da letto (9,50 m² e 10,70 m²), tre bagni e un WC aggiuntivo garantiscono il massimo comfort. La galleria (39,90 m²) aggiunge una dimensione extra – perfetta come studio, biblioteca o area lounge. Il punto forte è la splendida terrazza sul tetto di 79,96 m², un palco privato per relax e convivialità sotto il cielo aperto con vista sul mare. Completano la proprietà un ripostiglio (6,08 m²), un posto auto esterno (12,50 m²) e un garage (19,00 m²). La superficie lorda totale è di 268,27 m². L’edificio è già completato e i lavori finali sono in corso. È disponibile anche un’opzione con interni completamente arredati. L’acquirente non paga l’imposta di registro. Il costruttore si riserva il diritto di modificare piani, materiali e specifiche senza preavviso. Tutte le dimensioni sono indicative e soggette a variazioni. Per tutte le informazioni e per fissare una visita, resto a vostra disposizione. Aurelija Kaniški 00385995472989 aurelija.kaniski@dogma-nekretnine.com
ID: 1209794