Appartamento - ZATON - 1.068.000 EUR
| Posizione | ZATON, NIN, Zara-Dalmazia-Nord |
| Prezzo € | 1.068.000 |
| Superficie | 174 m2 |
| Numero di camere | 3 |
| Bagni | 3 |
| Vicino ai trasporti | Si |
| Distanza dal mare | 95 m |
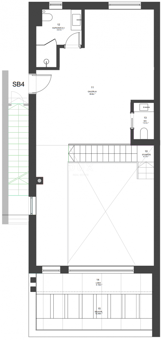
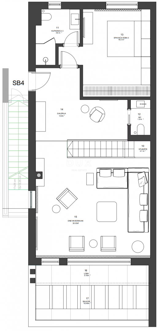
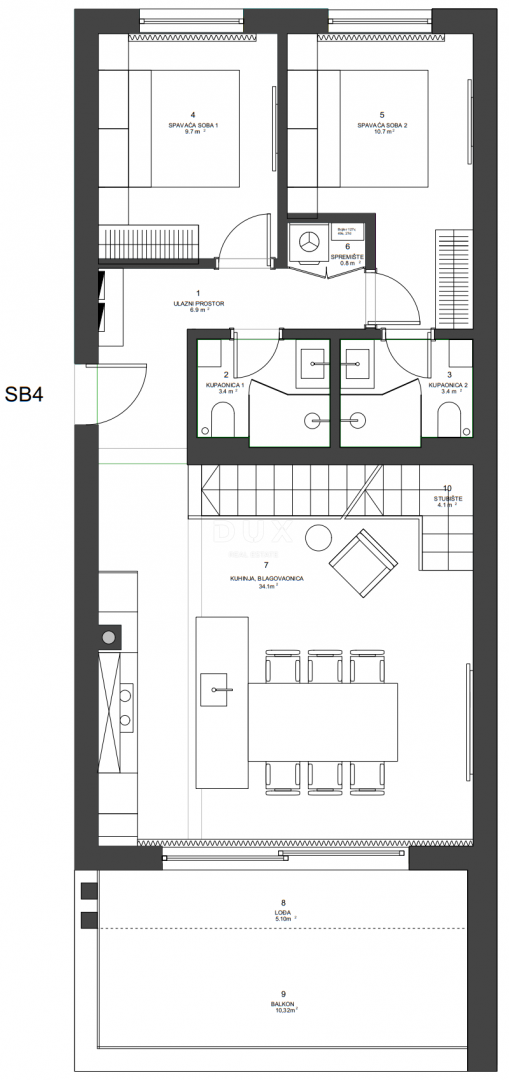
ZARA, ZATON - Attico a due piani con splendida vista a 95 metri dal mare! SB4. A soli 95 metri dal mare, nella tranquilla cittadina di Zaton, è in costruzione un moderno progetto con nove appartamenti di lusso situati in un resort chiuso con una rampa d'ingresso. Il complesso è concepito come un'oasi privata, composta da cinque edifici, dove i residenti godono di completa sicurezza e privacy. Gli appartamenti ai piani superiori dispongono di ampie terrazze sul tetto con una splendida vista sul mare e sulle isole, mentre le unità al piano terra dispongono di giardini privati. C'è anche la possibilità di acquistare appartamenti completamente arredati a un costo aggiuntivo. Particolare attenzione è stata dedicata al design degli interni, alle moderne soluzioni tecnologiche e ai materiali di qualità per rendere la casa funzionale, sicura e confortevole. Il sistema di domotica consente il controllo di illuminazione, aria condizionata e riscaldamento e la costruzione è realizzata con una struttura in cemento armato con isolamento termico di 10 cm. Serramenti in alluminio con tapparelle elettriche, condizionatori multi-split, riscaldamento a pavimento nei bagni e nel soggiorno, videocitofono, telecamere di sorveglianza e porte antifurto e tagliafuoco fanno parte della dotazione standard. Sono stati utilizzati sanitari e pavimenti di prima qualità di rinomati produttori. Il completamento dei lavori è previsto per la fine del 2025. L'attico SB4 su due piani si trova al secondo piano ed è composto da due camere da letto, ben tre bagni, un ripostiglio e un'ampia zona giorno con cucina e sala da pranzo. Il suo valore particolare è la terrazza sul tetto con una splendida vista sul mare e un posto auto in garage. C'è la possibilità di modificare la planimetria e aggiungere un'altra camera da letto, nel qual caso il prezzo sarebbe di 1.254.000 €. Zaton è una tranquilla cittadina dalmata nota per il suo mare cristallino, le spiagge di ciottoli e la rilassata atmosfera mediterranea, mentre Zara si trova nelle vicinanze, una città ricca di storia, attrazioni culturali e ristoranti di alto livello, una destinazione ideale per vivere e trascorrere le vacanze. Il venditore è una persona giuridica e l'acquirente non paga l'imposta sugli immobili. Per ulteriori informazioni e per organizzare una visita, non esitate a contattarci. Gentili clienti, la commissione di agenzia verrà addebitata in conformità con i Termini e Condizioni Generali: www.dux-nekretnine.hr/opci-uvjeti-poslovanja
ID: 1221091