Appartamento - ZATON - 1.135.750 EUR
| Posizione | ZATON, NIN, Zara-Dalmazia-Nord |
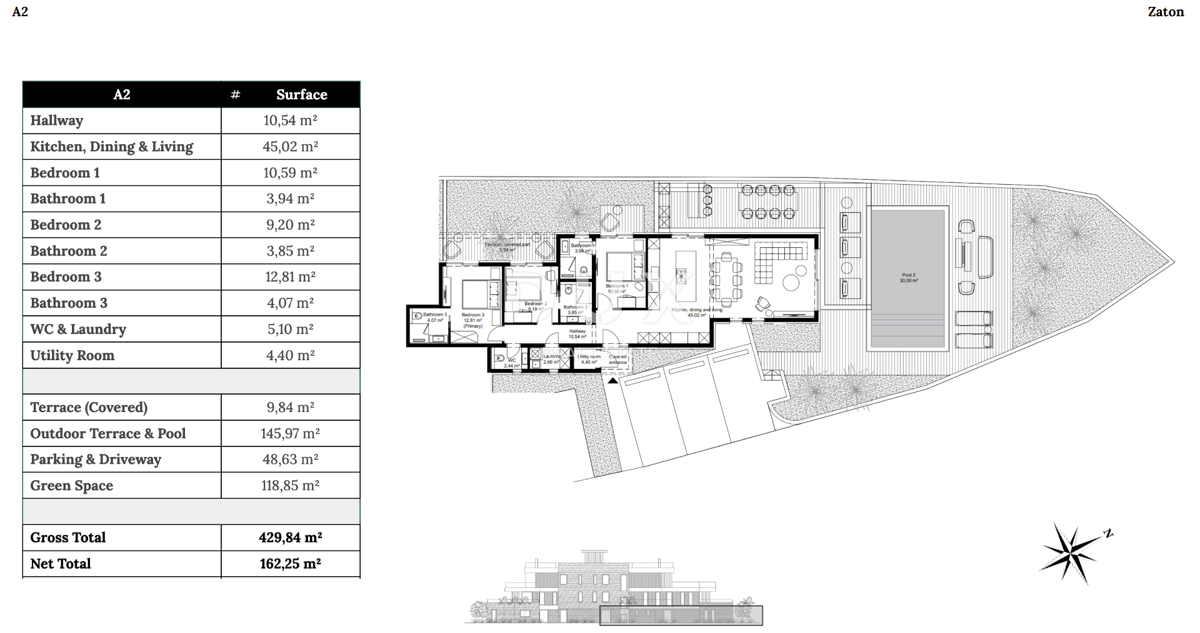
| Prezzo € | 1.135.750 |
| Superficie | 162 m2 |
| Numero di camere | 4 |
| Superficie terrestre | 264 m2 |
| Bagni | 4 |
| Vicino ai trasporti | Si |
| Distanza dal mare | 55 m |
ZARA, ZATON - Appartamenti di lusso completamente arredati a 55 metri dalla spiaggia! A2 Quattro appartamenti di lusso sono in vendita a Zaton, a soli 55 metri dalla spiaggia. Due appartamenti si trovano al piano terra, mentre due sono duplex al secondo piano e dispongono di una terrazza panoramica con una splendida vista sul mare e sulla spiaggia. Gli appartamenti vengono venduti completamente arredati con mobili di lusso di alta qualità. Ogni appartamento dispone di tre camere da letto, ciascuna con il proprio bagno, un bagno aggiuntivo e un bagno per gli ospiti. Inoltre, ogni appartamento dispone di tre posti auto, uno dei quali è chiuso e uno dotato di un caricabatterie per veicoli elettrici. L'edificio è dotato di un ascensore del rinomato produttore Schindler e l'ingresso è protetto da porte di sicurezza, un videocitofono e una telecamera di sorveglianza esterna. Il sistema di gestione intelligente degli appartamenti si basa sul protocollo KNX con componenti ABB e Siemens di alta qualità. Internet è completamente integrato, con la possibilità di connettersi alla rete satellitare Starlink. Le porte d'ingresso sono antieffrazione e antincendio, con un sistema di chiusura multipunto. La struttura dell'edificio è in cemento armato, con isolamento termico e acustico di alta qualità in lana di roccia ed EPS. I pavimenti delle zone giorno e dei corridoi sono rivestiti con grandi piastrelle in gres porcellanato, mentre le camere da letto sono rivestite con parquet in rovere a tre strati. Pareti e soffitti sono rifiniti con legno, pietra e pannelli decorativi, e ogni appartamento è dotato di un camino di design con effetto luce variabile. Le cucine sono realizzate su misura, con illuminazione integrata e piani di lavoro in granito, un'isola con effetto "cascata" ed elettrodomestici Miele di alta gamma: piano cottura a induzione, forno, lavastoviglie, cappa aspirante e cantinetta per vino. I bagni sono lussuosamente attrezzati con sanitari Geberit, rubinetteria Hansgrohe, docce walk-in con vetro temperato e superfici in pietra o quarzo. Gli appartamenti sono dotati di riscaldamento a pavimento in tutti gli ambienti, pompa di calore e caldaia LG, aria condizionata e controllo intelligente dell'illuminazione, tapparelle e impianto audio Sonos in tutti gli ambienti. L'esterno dell'edificio è rivestito con intonaco acrilico e lana di roccia e gli infissi sono a triplo vetro con tapparelle automatiche. Le terrazze esterne sono dotate di sistemi di impermeabilizzazione di alta qualità e rivestite con pannelli resistenti alle intemperie. Ogni appartamento dispone di una cucina estiva privata e gli appartamenti al piano terra dispongono di piscine private con sistemi avanzati di filtrazione ed elettrolisi. Inoltre, le terrazze sul tetto sono dotate di pergole bioclimatiche con possibilità di controllo elettrico. Zaton è una tranquilla località turistica nota per le sue splendide spiagge, il mare cristallino e la vicinanza del famoso complesso turistico Zaton Holiday Resort, raggiungibile in solo un minuto di auto. La città di Zara, con il suo ricco patrimonio culturale, i ristoranti, i negozi e l'aeroporto internazionale, è a soli dieci minuti di distanza. Questa è un'opportunità unica per investire o vivere in una zona lussuosa in riva al mare, con servizi di alta qualità e comfort assoluto. Per ulteriori informazioni e visite guidate, non esitate a contattarci. Gentili clienti, la commissione di agenzia viene addebitata in conformità con i Termini e Condizioni Generali: www.dux-nekretnine.hr/opci-uvjeti-poslovanja
ID: 1213112