Appartamento - ZATON - 1.615.000 EUR
| Posizione | ZATON, NIN, Zara-Dalmazia-Nord |
| Prezzo € | 1.615.000 |
| Superficie | 229 m2 |
| Numero di camere | 4 |
| Superficie terrestre | 87 m2 |
| Bagni | 4 |
| Vicino ai trasporti | Si |
| Distanza dal mare | 10 m |
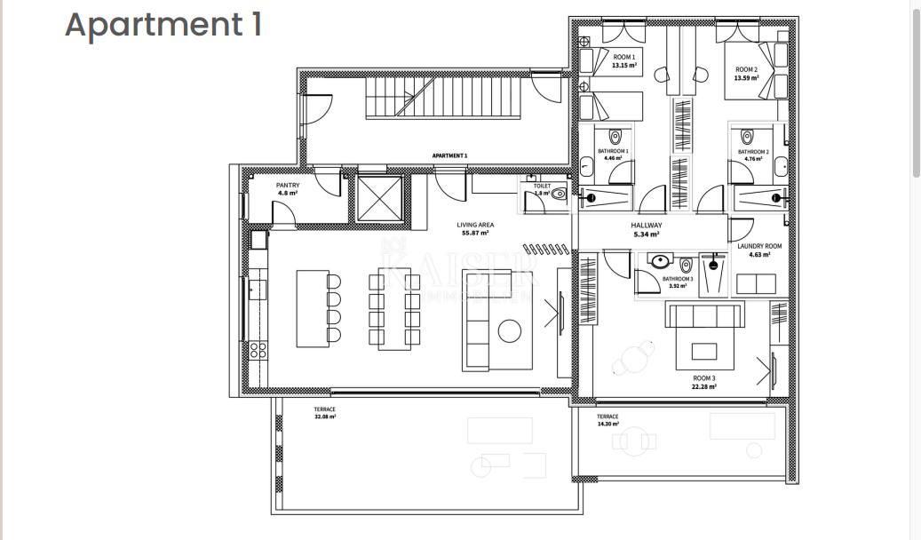
Zara - Zaton | Appartamento al piano terra con piscina privata, doppio giardino e appartamento aggiuntivo - prima fila al mare In una posizione esclusiva nelle immediate vicinanze del mare, in una zona tranquilla ed elegantemente sviluppata di Zaton, si trova un appartamento unico al piano terra dell'edificio A: una casa che offre una rara combinazione di privacy, lusso e molteplici funzionalità. Questa unità residenziale rappresenta due unità in una: l'appartamento principale con tre camere da letto e un appartamento aggiuntivo con ingresso indipendente dal cortile. Con un totale di 364,6 m2 di superficie lorda, o 229,12 m2 di superficie utile, ricchi servizi esterni e alti standard tecnici di costruzione, l'appartamento si distingue tra i nuovi edifici della regione ed è la scelta ideale per vivere tutto l'anno, per le vacanze o per investimento. Moderna organizzazione degli spazi con un'unità abitativa aggiuntiva L'unità abitativa principale si sviluppa su un unico piano ed è composta da un imponente soggiorno con cucina e sala da pranzo (55,87 m2), due camere da letto (13,15 m2 e 13,59 m2), ciascuna con il proprio bagno (4,76 m2 e 3,92 m2), un ulteriore WC (1,8 m2), una lavanderia (4,63 m2) e un funzionale ripostiglio accanto alla cucina (4,8 m2). L'apertura della planimetria, i soffitti alti (268 cm) e un'ampia parete vetrata creano una sensazione di ariosità e di connessione con l'ambiente. La particolarità di questo appartamento risiede nell'appartamento aggiuntivo, un'unità completamente separata all'interno dell'appartamento con una superficie totale di 22,28 m2, con ingresso indipendente dal corridoio interno e direttamente dal giardino anteriore. È composto da un'ampia stanza, un bagno (4,46 m2), un angolo cottura e una zona giorno che può essere utilizzata come zona notte. Questa unità è ideale per ospiti, affitti, membri della famiglia o un ufficio indipendente, pur consentendo allo stesso tempo la privacy senza interrompere l'intero. Esterno privato: piscina, giardini e terrazze coperte Lo spazio esterno dell'appartamento è stato accuratamente progettato per offrire il massimo comfort e privacy. L'appartamento dispone di due terrazze coperte, di 24,1 m2 e 10,07 m2, che proseguono su aree verdi paesaggistiche. Il giardino anteriore copre 15,0 m2, mentre il giardino posteriore è di 14,4 m2, creando il perfetto equilibrio tra intimità e spazio aperto. Un valore speciale è dato dalla piscina privata di 24,0 m2, dall'elegante forma rettangolare, con un bordo a sfioro dritto: un'aggiunta lussuosa che completa lo spazio abitativo esterno. Elevati standard di costruzione e attrezzature L'appartamento è dotato di moderne soluzioni tecniche e materiali di alta qualità, tra cui: Serramenti in alluminio Schüco con vetro solare a triplo strato Porta antieffrazione/tagliafuoco Kolnoa con codice e impronta digitale Porte interne dal pavimento al soffitto, senza telai a vista Veneziane e zanzariere motorizzate Riscaldamento a pavimento, condizionatori Mitsubishi in ogni stanza Pompe di calore (Vaillant/Mitsubishi) Impianto di addolcimento dell'acqua Isolamento acustico e termico aggiuntivo Ascensore OTIS Sanitari di marchi rinomati come Villeroy & Boch, Grohe e Hansgrohe e cabine doccia walk-in con ceramiche di grande formato da 240 × 120 cm e 300 × 120 cm confermano ulteriormente l'attenzione ai dettagli. Parcheggio e servizi aggiuntivi L'appartamento dispone di due posti auto privati (8,9 m2), situati proprio accanto all'edificio. È inoltre presente la predisposizione per la ricarica di veicoli elettrici, il che rende questa proprietà in linea con i requisiti di uno stile di vita moderno. Una combinazione di flessibilità, comfort e posizione Ciò che rende questo appartamento davvero speciale è la sua versatilità: offre contemporaneamente una lussuosa dinamica familiare e la possibilità di un reddito aggiuntivo o di vivere separatamente all'interno della stessa unità. L'appartamento è adatto sia per residenza permanente, vacanze di lusso o investimento nel turismo, senza compromettere estetica, qualità e funzionalità. Zaton: una combinazione di natura, pace ed eleganza Zaton è una pittoresca cittadina dalmata tra Nin e Zara, nota per il suo mare cristallino, le spiagge ben curate e un'atmosfera sicura e familiare. È perfetta per il relax, ma anche per vivere al mare tutto l'anno. Vicinanza ai servizi: Zaton - Nin: 5 km Zaton - Zara: 20 km Zaton - Aeroporto di Zara: 32 km Lubiana: 358 km / Vienna: 651 km / Monaco di Baviera: 764 km / Praga: 925 km La commissione di agenzia per l'acquirente è del 3% + IVA CODICE: 128-63 Tel: +385 95 504 6197 Email: nina@kaiser-immobilien.hr
ID: 1199810