Terreno - ZATON - 2.460.375 EUR
| Posizione | ZATON, NIN, Zara-Dalmazia-Nord |
| Prezzo € | 2.460.375 |
| Superficie | 2187 m2 |
| Distanza dal mare | 50 m |
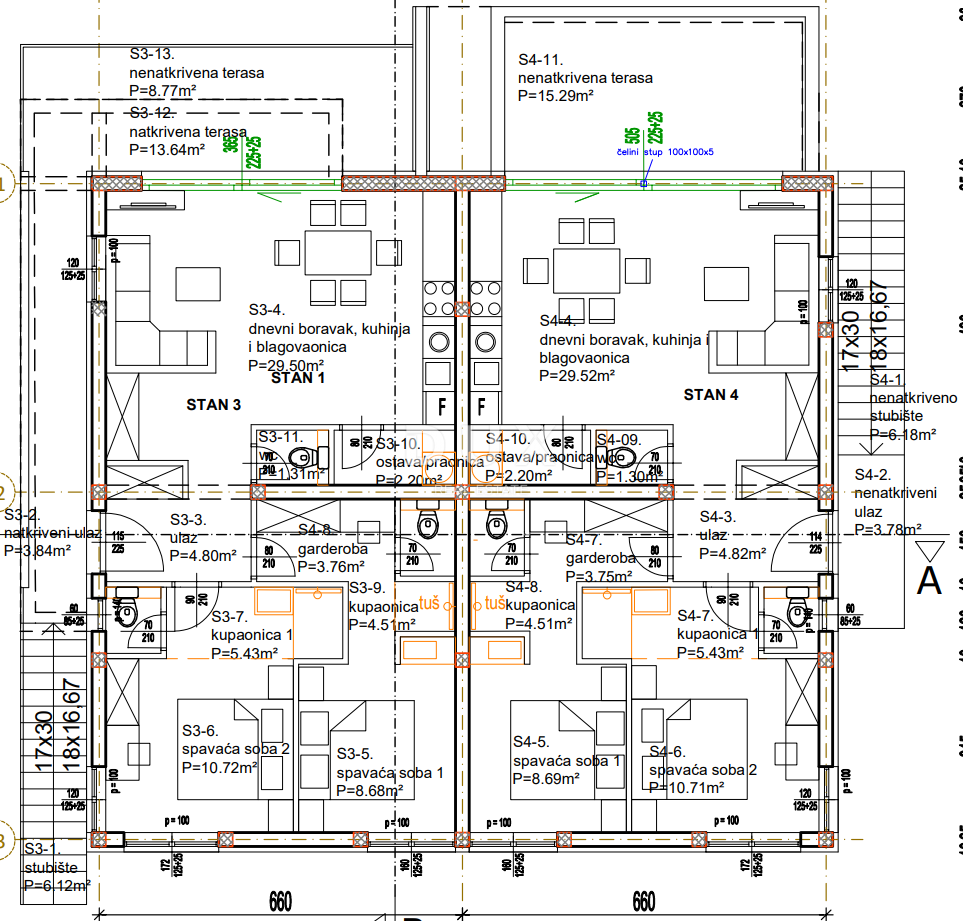
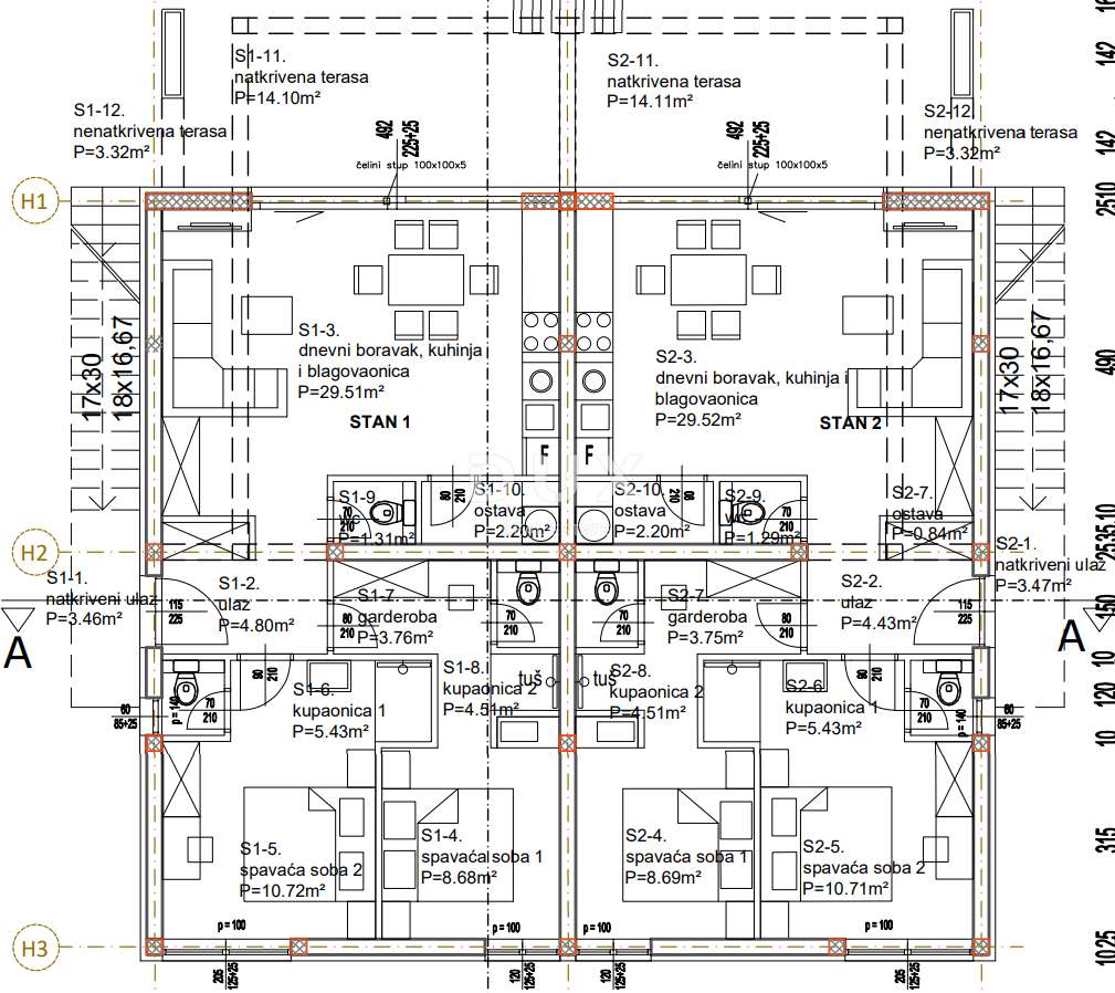
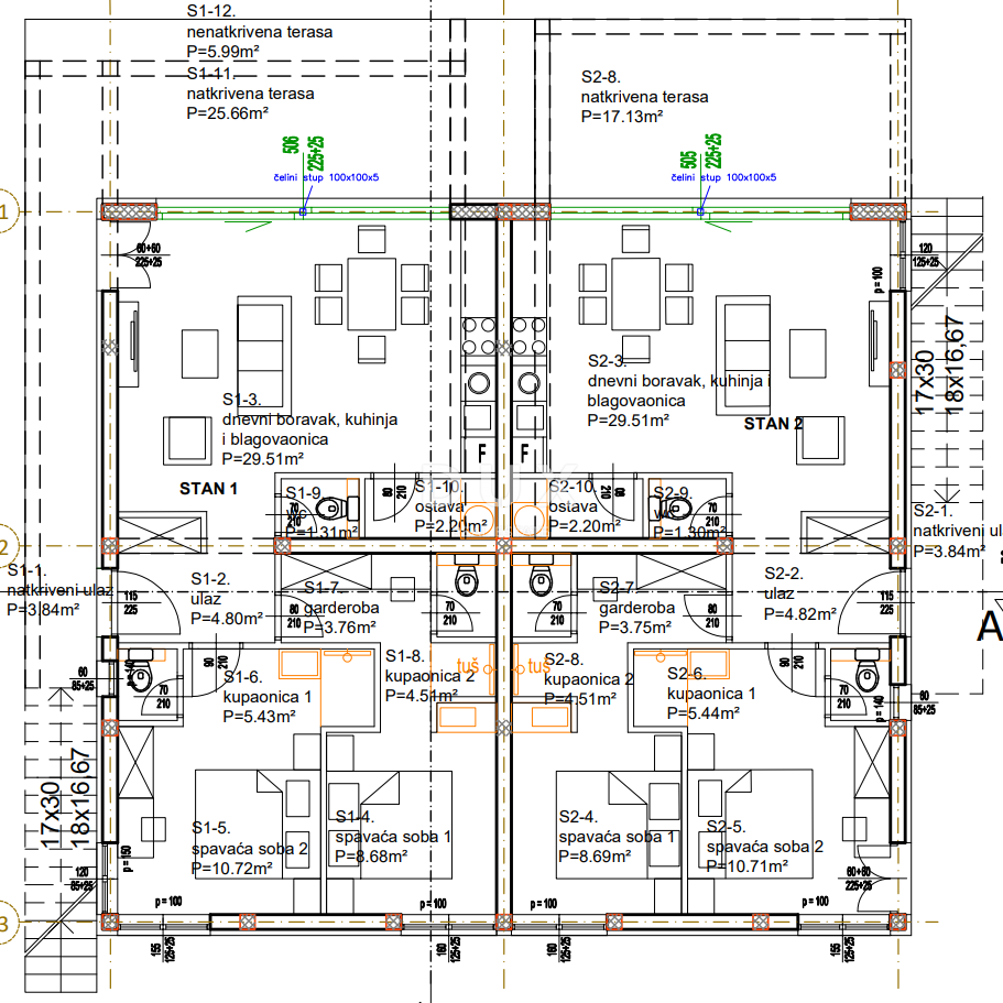
ZARA, ZATON - Progetto 12 appartamenti! Permesso di costruire! Seconda fila al mare! Un progetto di prim'ordine è in vendita nella posizione più ambita di Zaton, Punta Zaton. Ci sono 3 lotti di terreno con 3 edifici da 4 appartamenti ciascuno, per un totale di 12 appartamenti situati in seconda fila al mare, con vista mare già disponibile dal piano terra, mentre ville con piscina sono già state costruite in prima fila. È già stato ottenuto il permesso di costruire per tutti e 3 gli edifici, il che rappresenta un enorme vantaggio perché i lavori possono iniziare immediatamente senza lunghe attese. Secondo il progetto, gli appartamenti sono molto confortevoli, ognuno con 2 camere da letto, ciascuna con il proprio bagno. Il prezzo al m² è di 900 € + IVA. Zaton è una piccola località turistica ideale per un vero relax e per staccare dallo stress della vita quotidiana. Si trova tra due città storiche: Nona (2 km) e Zara (12 km). Le spiagge sabbiose all'ombra di pini secolari sono ideali per famiglie con bambini. Se cercate pace, mare cristallino, fondali marini puliti, ombra di pinete e tramonti indimenticabili, Zaton è il luogo ideale per le vostre vacanze. Gentili clienti, la commissione d'agenzia viene addebitata in conformità con i Termini e Condizioni Generali: www.dux-nekretnine.hr/opci-uvjeti-poslovanja
ID: 1263375